Retour
Disponibilité 1er juillet 2026
À Louer Bureaux 1 999 m² MONTBONNOT SAINT MARTIN (38330)
Ajouter au comparateur
Vous souhaitez faciliter votre recherche ?
Créez un compte
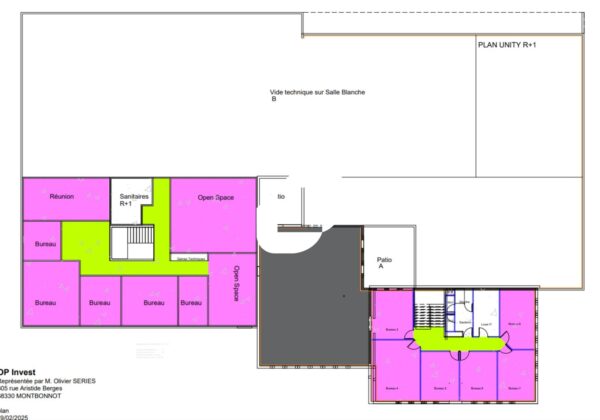
Présentation du bien
Exceptionnel ! IMMPROVE vous propose sur Montbonnot Pré Millet, un bâtiment à usage de bureaux avec salles blanches ISO 7 et salles grises. Nombreux parkings. Disponible en juillet 2026
Surface totale
Nature
Divisibilité
Etat des locaux
1 999 m²
Bureaux
Non
Bon état
Prix & Conditions
Loyer :
130 € /m²/an (HT/HC)
5 059 € /mois (HT/HC)
60 710 € /an (HT/HC)
Impôt foncier :
30994.00
Dépôt de garantie :
1 trimestre HT
Prestations & équipements du bien
Le bâtiment
Bâtiment indépendant
Les espaces de travail
Fibre optique
R.I.E à proximité . Accueil
Espace ouvert
Bureaux cloisonnés
Espace détente
Câblage informatique et téléphonique
Le confort au quotidien
Climatisation réversible
Les accès
Porte sectionnelle de plain-pied : 2
Sécurité du site
Contrôle d'accès
Prestations spécifiques
Tarif jaune
Autres
Accès véhicules de livraison
Salles de réunion
Vestiaires hommes et femmes
Dimension porte : 3 (H) x3 ( L) m
Douches
Sanitaires à chaque niveau
Répartition & surfaces des espaces
Tableau des divisibilités
| Type | Étage | Surface | Loyer (€/m²/an HT HC) |
Charges (€/m²/an HT HC) |
|---|---|---|---|---|
| Bureaux | 467 m² | 130.00 | Prix sur demande | |
| Locaux spécifiques | 1 532 m² | 130.00 | Prix sur demande |
Performance énergétique du bien (DPE)


Informations non contractuelles
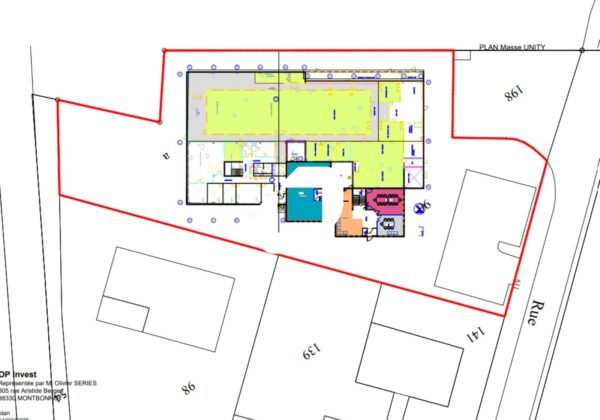
Localisation & accès
Adresses
approximatives
Adresses
précises
Nos nouveaux biens qui pourraient vous intéresser
Bureaux - 5 325m² Divisibles à partir de 358 m²
MONTBONNOT SAINT MARTIN (38330)
MONTBONNOT SAINT MARTIN (38330)
6 533.33€/mois HT HC
Disponibilité : Immédiate
Surface : divisibles à partir de 358 m²
Bureaux - 443.50m²
MONTBONNOT SAINT MARTIN (38330)
MONTBONNOT SAINT MARTIN (38330)
4 625.00€/mois HT HC
Disponibilité : Immédiate
Surface : 443.50 m²
Bureaux - 917.50m²
MONTBONNOT SAINT MARTIN (38330)
MONTBONNOT SAINT MARTIN (38330)
9 562.50€/mois HT HC
Disponibilité : Immédiate
Surface : 917.50 m²
Bureaux - 2 828m² Divisibles à partir de 125 m²
MONTBONNOT SAINT MARTIN (38330)
MONTBONNOT SAINT MARTIN (38330)
1 406.25€/mois HT HC
Disponibilité : Immédiate
Surface : divisibles à partir de 125 m²
Les entrepreneurs ayant consulté cette offre ont aussi consulté celles ci
Bureaux et Locaux Commerciaux - 275.40m²
SAINT HERBLAIN (44800)
SAINT HERBLAIN (44800)
3 994.15€/mois HT HC
Disponibilité : 1er janvier 2027
Surface : 275.40 m²
Bureaux - 1 845m² Divisibles à partir de 285 m²
NANTES (44300)
NANTES (44300)
Prix sur demande
Disponibilité : Immédiate
Surface : divisibles à partir de 285 m²
Bureaux - 120m²
SAINT OUEN L'AUMONE (95310)
SAINT OUEN L'AUMONE (95310)
1 100.00€/mois HT HC
Disponibilité : Immédiate
Surface : 120 m²