Retour
Disponibilité Immédiate
À Louer Bureaux 170 m² LILLE (59000)
Ajouter au comparateur
Vous souhaitez faciliter votre recherche ?
Créez un compte
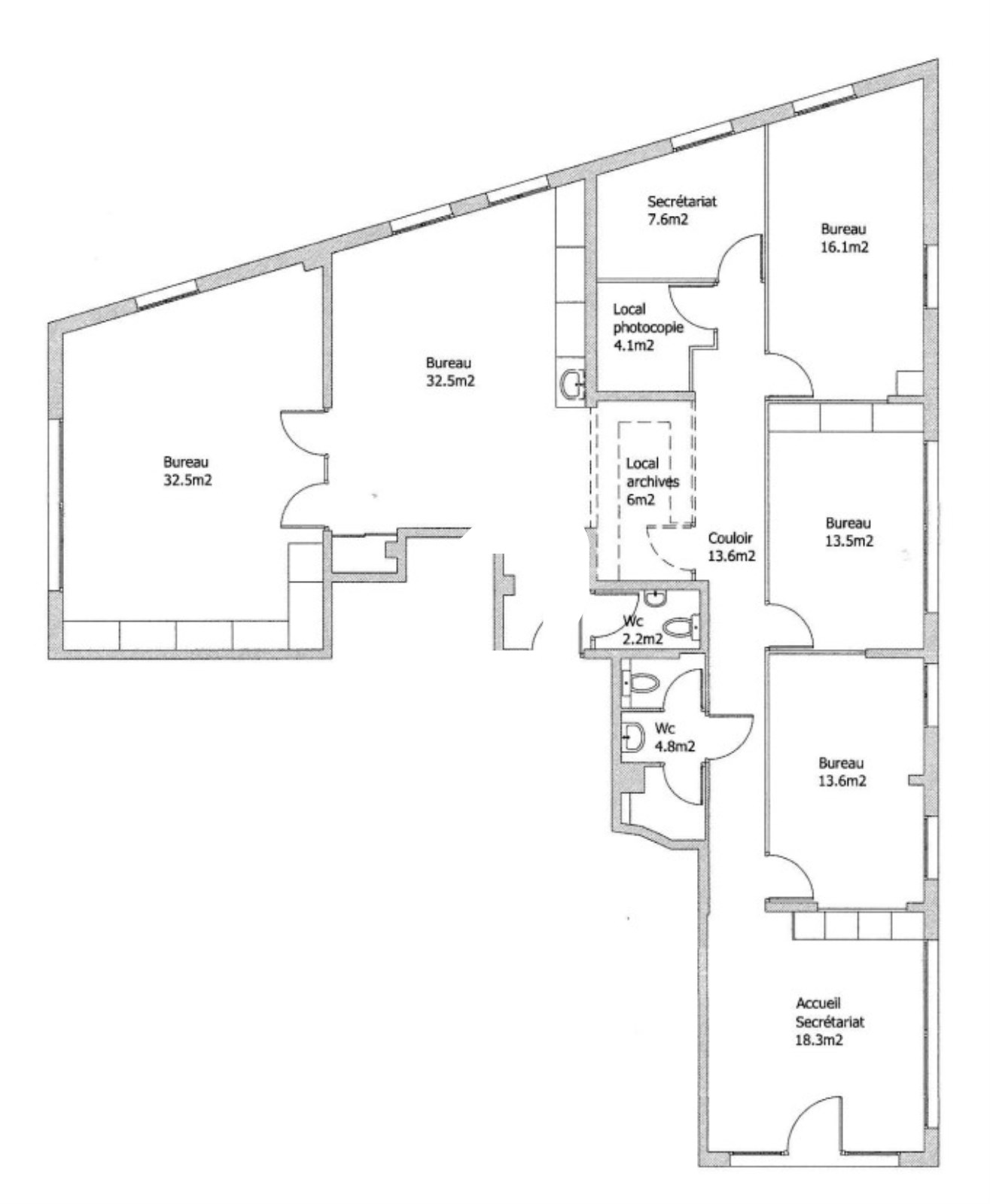
Présentation du bien
Immprove vous propose à la location, une surface de bureaux d’environ 165 m² en plein cœur de Lille. A Proximité immédiate du Palais des Beaux Arts, de toutes les commodités, des transports en communs et des gares. Vous retrouverez 3 grands bureaux et 2 grandes salles de réunion / open space, un accueil, des sanitaires privatifs et un coin cuisine. Vous serez séduit par la surface vitrée et les nombreux rangements dans chaque bureau. 3 places de stationnement en sous sol sont incluses dans le prix. Disponibilité immédiate.
Surface totale
Nature
Divisibilité
Etat des locaux
170 m²
Bureaux
Non
Bon état
Prix & Conditions
Loyer :
220 € /m²/an (HT/HC)
3 116 € /mois (HT/HC)
37 400 € /an (HT/HC)
Impôt foncier :
26.47
Dépôt de garantie :
3 mois de loyer HT HC
Prestations & équipements du bien
Le bâtiment
Parties communes de qualité
Les espaces de travail
Fibre optique
Cour . Accueil
Espace ouvert
Bureaux cloisonnés
Salle de réunion
Espace détente
Local technique
Cuisine
Sanitaires privatifs
Décloisonnement possible
Locaux rationnels et modulables
Archives
Cloisonnement amovible
Cloisons sèches
Plinthes périphériques
Câblage informatique et téléphonique
Prises RJ45
Le confort au quotidien
Locaux traversants et lumineux
Double exposition
Moquette
Les accès
Accès PMR
Sécurité du site
Site clos
Interphone
SAS d'entrée
Autres
Faux-plafonds
Possibilité de normes E.R.P.
Répartition & surfaces des espaces
Tableau des divisibilités
| Type | Étage | Surface | Loyer (€/m²/an HT HC) |
Charges (€/m²/an HT HC) |
|---|---|---|---|---|
| Bureaux | 170 m² | 220.00 | 16.97 |
Performance énergétique du bien (DPE)


Informations non contractuelles
Localisation & accès
Transports en commun à proximité
Gares de Lille à 1 km
200
Adresses
approximatives
Adresses
précises
Nos nouveaux biens qui pourraient vous intéresser
Bureaux - 1 125m² Divisibles à partir de 209 m²
LILLE (59000)
LILLE (59000)
21 736.88€/mois HT HC
Disponibilité : 1er trimestre 2026
Surface : divisibles à partir de 209 m²
Bureaux - 769.10m² Divisibles à partir de 181 m²
LILLE (59800)
LILLE (59800)
3 469.17€/mois HT HC
Disponibilité : En fonction des lots
Surface : divisibles à partir de 181 m²
Les entrepreneurs ayant consulté cette offre ont aussi consulté celles ci
Bureaux - 330.50m²
PARIS (75013)
PARIS (75013)
10 642.50€/mois HT HC
Disponibilité : Immédiate
Surface : 330.50 m²