Retour
Disponibilité Immédiate
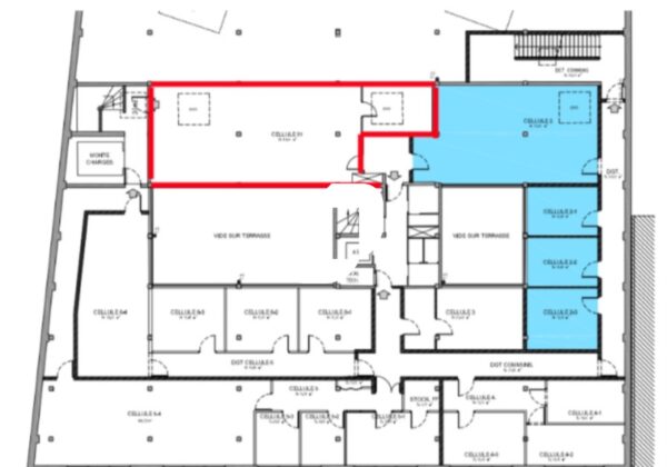
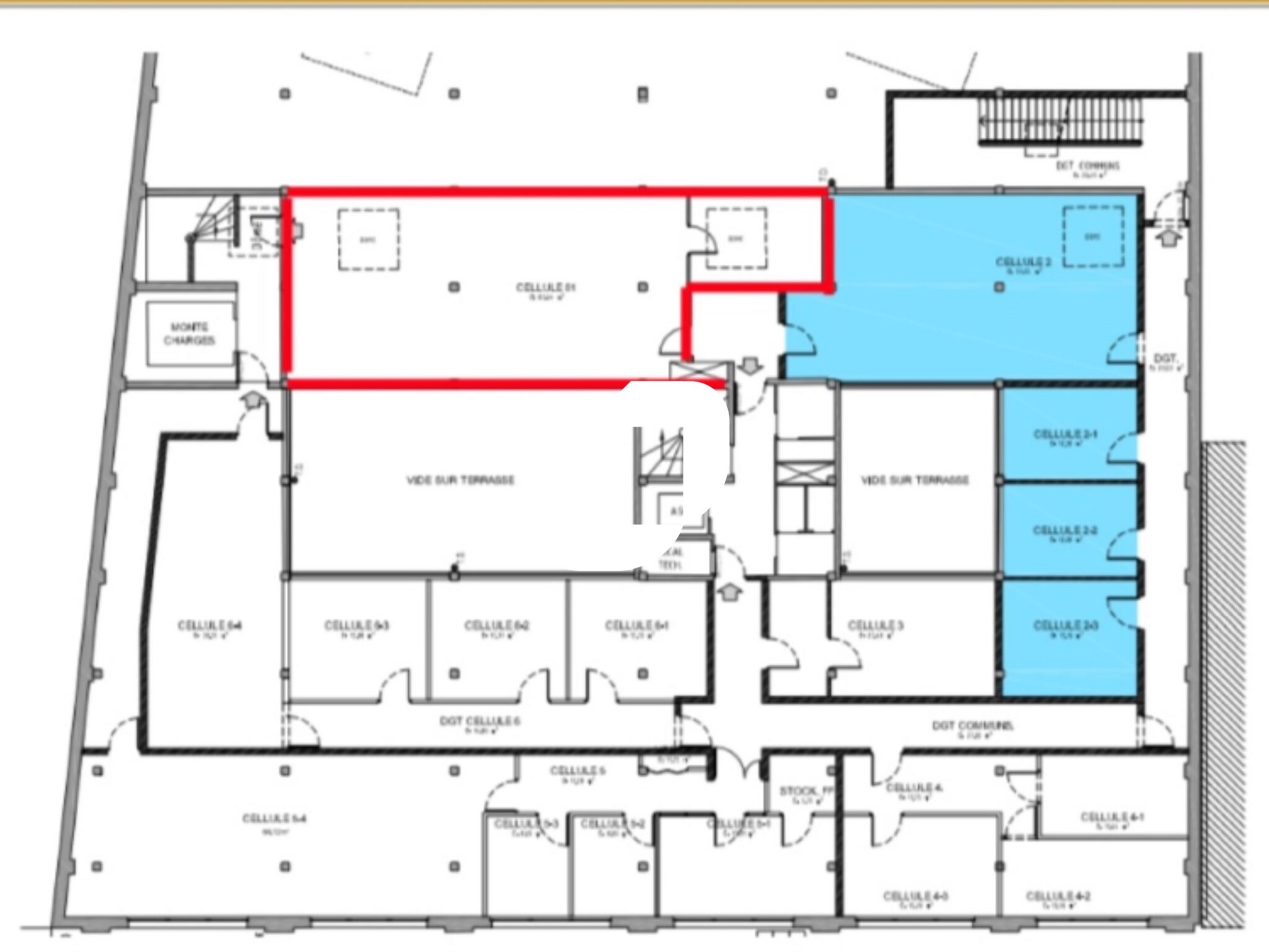
À Louer Bureaux 118 m² RUE DE L'ABBE LEMIRE LA MADELEINE (59110)
Ajouter au comparateur
Vous souhaitez faciliter votre recherche ?
Créez un compte
Présentation du bien
Immprove vous propose à la location, dans une ancienne usine reconvertie en bureaux, une surface idéalement située, à proximité immédiate du tramway et à 10 minutes des Gares Lille Flandres et Lille Europe. Sécurisés et lumineux (cloisons vitrées, puits de lumières, dalles Led..). Baie de brassage et plinthes périphériques dans les locaux. Bâtiment fibré. Disponibilité immédiate. A visiter rapidement
Surface totale
Nature
Divisibilité
Etat des locaux
118 m²
Bureaux
Non
Bon état
Prix & Conditions
Loyer :
128 € /m²/an (HT/HC)
1 248 € /mois (HT/HC)
14 986 € /an (HT/HC)
Dépôt de garantie :
3 mois de loyer HT HC
Conditions location :
Le loyer indiqué s'entend hors parkings
Prestations & équipements du bien
Les espaces de travail
Fibre optique . Accueil
Espace ouvert
Bureaux cloisonnés
Salle de réunion
Décloisonnement possible
Locaux rationnels et modulables
Cloisonnement amovible
Plinthes périphériques
Le confort au quotidien
Locaux lumineux
Moquette
Les accès
Accès PMR
Sécurité du site
Site clos
Contrôle d'accès par badge
Digicode - Interphone
SAS d'entrée
Prestations spécifiques
Chauffage électrique
Autres
Faux-plafonds
RDC : 3 accès dont 1 sur rue
Le loyer indiqué s'entend hors parkings
Répartition & surfaces des espaces
Tableau des divisibilités
| Type | Étage | Surface | Loyer (€/m²/an HT HC) |
Charges (€/m²/an HT HC) |
|---|---|---|---|---|
| Bureaux | 3ème étage | 118 m² | 127.69 | 58.00 |
Performance énergétique du bien (DPE)


Informations non contractuelles
Localisation & accès
Transports en commun à proximité
SNCF gare de à 5 min en voiture et 10 min en transports en commun
à 3 minutes
à 3 minutes
Accès routier
Boulevard Périphérique à 3 minutes
Adresses
approximatives
Adresses
précises
Nos nouveaux biens qui pourraient vous intéresser
Bureaux - 570m²
LA MADELEINE (59110)
LA MADELEINE (59110)
7 505.00€/mois HT HC
Disponibilité : 31 Janvier 2027
Surface : 570 m²
Bureaux - 1 714m² Divisibles à partir de 267 m²
LA MADELEINE (59110)
LA MADELEINE (59110)
2 810.40€/mois HT HC
Disponibilité : Immédiate
Surface : divisibles à partir de 267 m²
Bureaux - 250.80m²
LA MADELEINE (59110)
LA MADELEINE (59110)
6 672.00€/mois HT HC
Disponibilité : Immédiate
Surface : 250.80 m²
Les entrepreneurs ayant consulté cette offre ont aussi consulté celles ci
Bureaux - 105m²
SAINT JEAN DE VEDAS (34430)
SAINT JEAN DE VEDAS (34430)
1 458.36€/mois HT HC
Disponibilité : Immédiate
Surface : 105 m²
Bureaux - 330.50m²
PARIS (75013)
PARIS (75013)
10 642.50€/mois HT HC
Disponibilité : Immédiate
Surface : 330.50 m²