Retour
Disponibilité Immédiate
À Louer Bureaux 300 m² SAINGHIN EN MELANTOIS (59262)
Ajouter au comparateur
Vous souhaitez faciliter votre recherche ?
Créez un compte
Présentation du bien
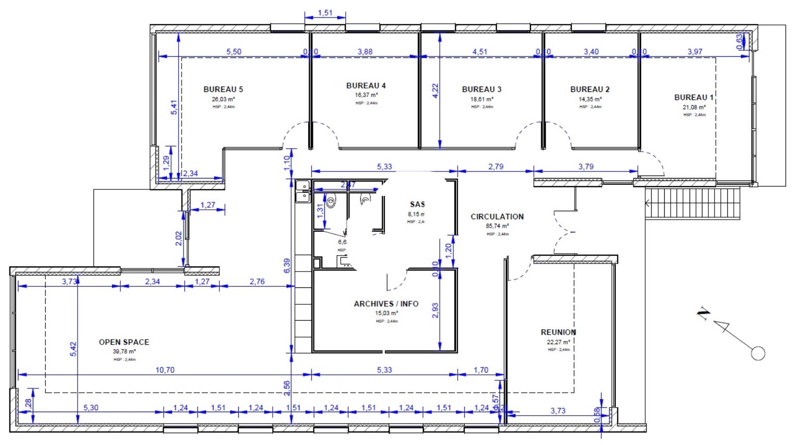
Immprove vous propose des bureaux situés dans le Parc de la Haute borne à Villeneuve d'Ascq, Parc Scientifique Haute Qualité Environnementale, à proximité du campus de l’Université de Lille Villeneuve-d’Ascq. Plateau de bureaux à louer au 1er étage d’un bâtiment indépendant, 300 m² de bureaux cloisonnés en 5 bureaux et une salle de réunion. Belles prestations dans un espace sécurisé. 15 emplacements de parking. Vous disposerez également de 2 terrasses privatives. Disponibilité : juillet 2024.
Surface totale
Nature
Divisibilité
Etat des locaux
300 m²
Bureaux
Non
Restructuré
Prix & Conditions
Loyer :
150 € /m²/an (HT/HC)
3 750 € /mois (HT/HC)
45 000 € /an (HT/HC)
Impôt foncier :
10574.00
Dépôt de garantie :
3 mois de loyer HT HC
Prestations & équipements du bien
Le bâtiment
Façade en bardage
Les espaces de travail
Terrasses privatives . Accueil
Espace ouvert
Bureaux cloisonnés
Salle de réunion
Espace détente
Local technique
Cuisine
Sanitaires privatifs
Décloisonnement possible
Locaux rationnels et modulables
Plinthes périphériques
Le confort au quotidien
Climatisation réversible
Belle hauteur sous plafond
Locaux traversants et lumineux
Double exposition
Terrasse privative
Balcon
Moquette
Les accès
Portail d'accès
Sécurité du site
Digicode - Interphone
Site clos
Accès sécurisé par badge
SAS d'entrée
Autres
Fibre optique
Faux-plafonds acoustiques
Répartition & surfaces des espaces
Tableau des divisibilités
| Type | Étage | Surface | Loyer (€/m²/an HT HC) |
Charges (€/m²/an HT HC) |
|---|---|---|---|---|
| Parkings | 400.00 | Prix sur demande | ||
| Bureaux | 1er étage | 300 m² | 150.00 | 8.52 |
Performance énergétique du bien (DPE)


Informations non contractuelles
Localisation & accès
Transports en commun à proximité
Gare de Lille à 15 minutes en voiture
66
72
Accès routier
Proximité A1, A22 et A23
Proximité D955
Adresses
approximatives
Adresses
précises
Nos nouveaux biens qui pourraient vous intéresser
Bureaux - 300m²
SAINGHIN EN MELANTOIS (59262)
SAINGHIN EN MELANTOIS (59262)
3 500.00€/mois HT HC
Disponibilité : Immédiate
Surface : 300 m²
Bureaux - 351m²
SAINGHIN EN MELANTOIS (59262)
SAINGHIN EN MELANTOIS (59262)
3 948.75€/mois HT HC
Disponibilité : Immédiate
Surface : 351 m²
Les entrepreneurs ayant consulté cette offre ont aussi consulté celles ci
Bureaux - 348.02m²
BIEVRES (91570)
BIEVRES (91570)
3 480.00€/mois HT HC
Disponibilité : 1er juillet 2026
Surface : 348.02 m²
Bureaux - 288.28m²
BIEVRES (91570)
BIEVRES (91570)
2 880.00€/mois HT HC
Disponibilité : 1er juillet 2026
Surface : 288.28 m²
Bureaux et Activités - 4 645.22m² Divisibles à partir de 249.90 m²
VILLIERS SUR MARNE (94350)
VILLIERS SUR MARNE (94350)
9 870.00€/mois HT HC
Disponibilité : Immédiate
Surface : divisibles à partir de 249.90 m²
Bureaux - 447m²
MOUSSY LE NEUF (77230)
MOUSSY LE NEUF (77230)
4 097.50€/mois HT HC
Disponibilité : Immédiate
Surface : 447 m²