Retour
Bureaux - 100m² à Louer
. Accès véhicules légers
. Accès PMR
. Accès privatif sur rue
. Portail d'accès
. Accès sécurisé par badge
. Interphone
. Climatisation réversible
. Fibre optique
. Jardin paysager . Accueil
. Espace ouvert
. Bureaux cloisonnés
. Salle de réunion
. Espace détente
. Local technique
. Cuisine
. Sanitaires privatifs
. Locaux traversants et lumineux
. Double exposition
. Locaux rationnels et modulables
. Archives
. Faux-plafonds
. Parquet
. Plinthes périphériques
. Câblage informatique et téléphonique
. Prises RJ45
. Possibilité de normes E.R.P.
Bureaux - 100m² à Louer
VILLENEUVE D'ASCQ (59650)
DESCRIPTION
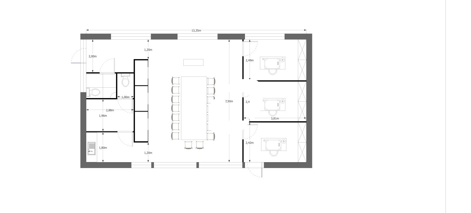
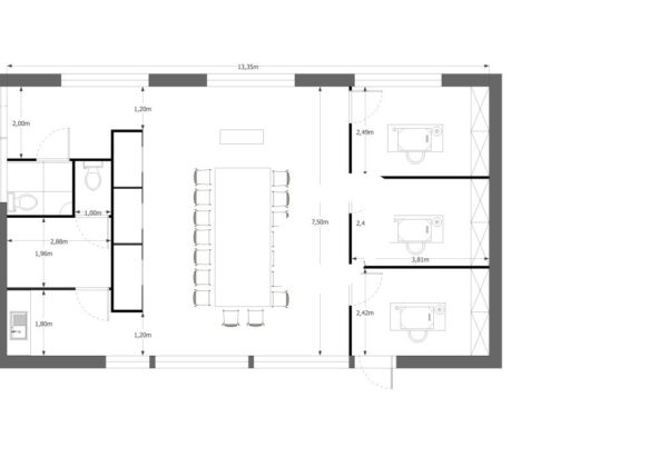
Immprove vous propose à la location un plateau de bureaux de 100 m², en rez-de-chaussée avec accès PMR, conçu en ossature bois et offrant une excellente qualité de confort grâce à ses menuiseries extérieures en triple vitrage, son système de climatisation réversible et sa ventilation double flux. L’espace se compose d’un grand plateau ouvert de 3 bureaux individuels fermés, une cuisine, un espace de stockage ainsi que deux sanitaires, dont l’un est accessible aux personnes à mobilité réduite. Jardin commun agréable. 4 places de stationnement privatives. Accès sécurisé au site. Disponibilité immédiate.
En savoir plus
. Site clos. Accès véhicules légers
. Accès PMR
. Accès privatif sur rue
. Portail d'accès
. Accès sécurisé par badge
. Interphone
. Climatisation réversible
. Fibre optique
. Jardin paysager . Accueil
. Espace ouvert
. Bureaux cloisonnés
. Salle de réunion
. Espace détente
. Local technique
. Cuisine
. Sanitaires privatifs
. Locaux traversants et lumineux
. Double exposition
. Locaux rationnels et modulables
. Archives
. Faux-plafonds
. Parquet
. Plinthes périphériques
. Câblage informatique et téléphonique
. Prises RJ45
. Possibilité de normes E.R.P.
Consommations énergétiques


Informations non contractuelles
Tableau des divisibilités
| Type | Étage | Surface | Loyer (€/m²/an HT HC) |
Charges (€/m²/an HT HC) |
|---|---|---|---|---|
| Bureaux | Rez-de-Chaussée | 100 m² | 165.00 | 7.80 |
Caractéristiques
- Surface 100 m²
- Etat des locaux Neuf
- Interphone oui
Adresses
approximatives
Adresses
précises
Nos nouveaux biens qui pourraient vous intéresser
Bureaux - 3 700m² Divisibles à partir de 105 m²
à Louer
VILLENEUVE D'ASCQ (59650)
Voir le bien
47 150.00€/mois HT HC
Bureaux - 670m² Divisibles à partir de 96 m²
à Louer
VILLENEUVE D'ASCQ (59650)
Voir le bien
8 375.00€/mois HT HC
Les entrepreneurs ayant consulté cette offre ont aussi consulté celles ci
Les services Immprove
Une gamme complète de services qui facilitent vos démarches et destinée à satisfaire vos attentes