Retour
Disponibilité Immédiate
À Louer Bureaux 219 m² divisibles à partir de 25 m² 2 AVENUE DE L ENERGIE BISCHHEIM (67800)
Ajouter au comparateur
Vous souhaitez faciliter votre recherche ?
Créez un compte
Présentation du bien
IMMPROVE vous propose à la location des bureaux au sein du parc de l’Énergie à Bischheim, dans le bâtiment A. Plusieurs lots de 25 à 50 m² sont disponibles, certains cloisonnés d'autres en open space. En complément de cette offre, il est également possible de bénéficier d'un espace de stockage sécurisé, toujours situé dans le parc.
Surface totale
Nature
Divisibilité
Etat des locaux
219 m²
Bureaux
Oui à partir de 25 m²
Bon état
Prix & Conditions
Loyer :
144 € /m²/an (HT/HC)
300 € /mois (HT/HC)
3 600 € /an (HT/HC)
Divisibles à partir de 25 m²
Dépôt de garantie :
3 mois de loyer HT HC
Prestations & équipements du bien
Les espaces de travail
Eclairage LED
Faux plafonds avec luminaires encastrés
Eclairage LED / néons
Fibre optique
Le confort au quotidien
Climatisation réversible
Sol PVC
Les accès
1 porte sectionnelle de plain-pied / lot
Prestations spécifiques
Hauteur libre 6 m
Autres
Ossature métallique
Toiture bac acier isolé
Murs bardage double peau
Sol béton
Skydome
Prises triphasées
Bureaux ouverts ou cloisonnés
Fenêtres double vitrage
Prises RJ 45 + baie de brassage
Sanitaires communs
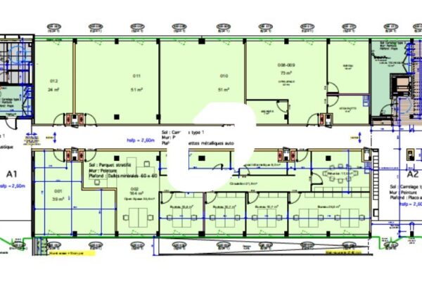
Répartition & surfaces des espaces
Tableau des divisibilités
| Type | Étage | Surface | Loyer (€/m²/an HT HC) |
Charges (€/m²/an HT HC) |
|---|---|---|---|---|
| Bureaux | Rez-de-Chaussée | 39 m² | 144.00 | 27.60 |
| Bureaux | Rez-de-Chaussée | 30 m² | 144.00 | 27.60 |
| Bureaux | 2ème étage | 25 m² | 144.00 | 27.60 |
| Bureaux | 2ème étage | 50 m² | 144.00 | 27.60 |
| Bureaux | 2ème étage | 25 m² | 144.00 | 27.60 |
| Bureaux | 2ème étage | 50 m² | 144.00 | 27.60 |
Performance énergétique du bien (DPE)


Informations non contractuelles
Localisation & accès
Transports en commun à proximité
Gare de reichstett
Accès routier
A4 - Sortie Souffelweyersheim - Reichstett
Ligne B
Adresses
approximatives
Adresses
précises
Nos nouveaux biens qui pourraient vous intéresser
Bureaux - 606m² Divisibles à partir de 24 m²
BISCHHEIM (67800)
BISCHHEIM (67800)
574.00€/mois HT HC
Disponibilité : Immédiate
Surface : divisibles à partir de 24 m²
Les entrepreneurs ayant consulté cette offre ont aussi consulté celles ci
Bureaux - 348.02m²
BIEVRES (91570)
BIEVRES (91570)
3 480.00€/mois HT HC
Disponibilité : 1er juillet 2026
Surface : 348.02 m²
Bureaux - 288.28m²
BIEVRES (91570)
BIEVRES (91570)
2 880.00€/mois HT HC
Disponibilité : 1er juillet 2026
Surface : 288.28 m²
Bureaux et Activités - 4 645.22m² Divisibles à partir de 249.90 m²
VILLIERS SUR MARNE (94350)
VILLIERS SUR MARNE (94350)
54 180.00€/mois HT HC
Disponibilité : Immédiate
Surface : divisibles à partir de 249.90 m²
Bureaux - 447m²
MOUSSY LE NEUF (77230)
MOUSSY LE NEUF (77230)
4 097.50€/mois HT HC
Disponibilité : Immédiate
Surface : 447 m²