Retour
Disponibilité Se référer au tableau des surfaces
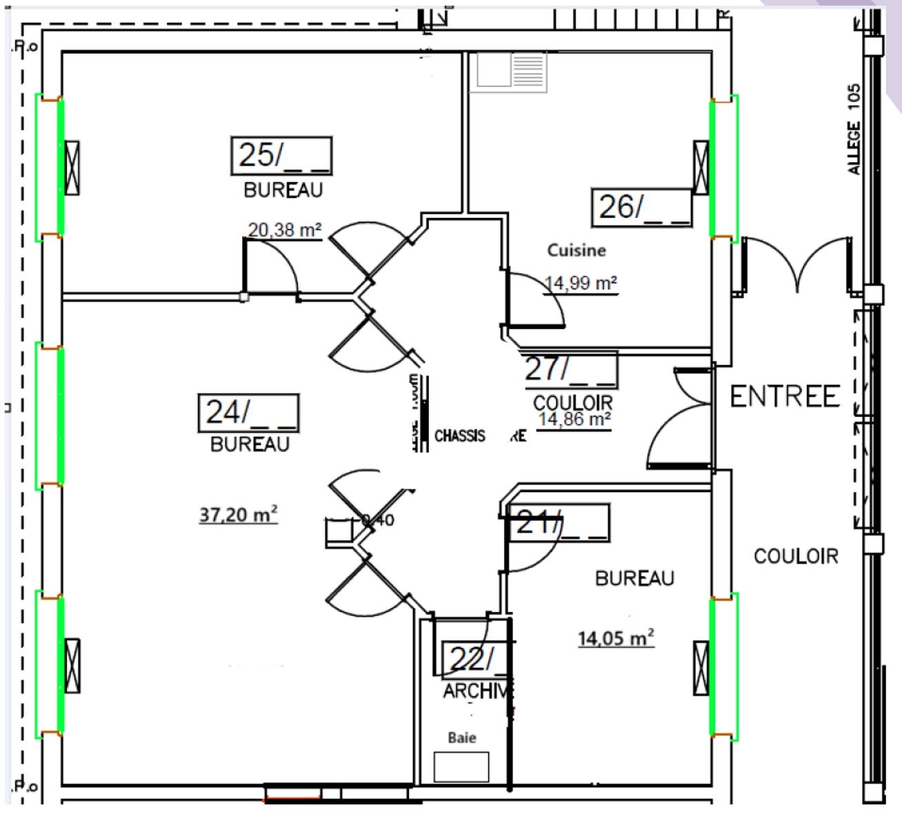
À Louer Bureaux 784.79 m² divisibles à partir de 28.79 m² LOUIS BLERIOT RUE CONSTELLATION ENTZHEIM (67960)
Ajouter au comparateur
Vous souhaitez faciliter votre recherche ?
Créez un compte
Présentation du bien
IMMPROVE vous propose à la location différentes solutions de bureaux au Skyparc, zone d'activité de l'Aéroport de Strasbourg Entzheim. Différents solutions sont possibles à partir de 30 m² de bureaux
Surface totale
Nature
Divisibilité
Etat des locaux
784.79 m²
Bureaux
Oui à partir de 28.79 m²
Etat d’usage
Prix & Conditions
Loyer :
103 € /m²/an (HT/HC)
244 € /mois (HT/HC)
2 936 € /an (HT/HC)
Divisibles à partir de 28.79 m²
Dépôt de garantie :
3 mois de loyer HT HC
Conditions location :
Chauffage et électricité inclus (hors taxe foncière)
Stationnement personnel : 20,83 € HT / place / mois
Stationnement personnel : 20,83 € HT / place / mois
Prestations & équipements du bien
Les espaces de travail
Faux plafond avec luminaires encastrés
Le confort au quotidien
Sols moquettes, lino ou carrelage
Prestations spécifiques
Chauffage par radiateurs
Extérieur
Parking visiteurs
Autres
Murs peints
Sanitaires communs
Chauffage et électricité inclus (hors taxe foncière)
Stationnement personnel : 20,83 € HT / place / mois
Répartition & surfaces des espaces
Tableau des divisibilités
| Type | Étage | Surface | Loyer (€/m²/an HT HC) |
Charges (€/m²/an HT HC) |
|---|---|---|---|---|
| Bureaux | Rez-de-Chaussée | 38 m² | 102.60 | 63.83 |
| Bureaux | Rez-de-Chaussée | 29 m² | 91.20 | 63.83 |
| Bureaux | 1er étage | 99 m² | 102.60 | 43.20 |
| Bureaux | 1er étage | 203 m² | 102.60 | 43.20 |
| Bureaux | 1er étage | 104 m² | 102.60 | 43.20 |
| Bureaux | 1er étage | 312 m² | 91.20 | 63.83 |
Performance énergétique du bien (DPE)


Informations non contractuelles
Localisation & accès
Transports en commun à proximité
SNCF gare de Strasbourg en 9 mn
2 arrêts Flex' hop
Accès routier
Strasbourg
M35
Rocade Sud direction Allemagne
Adresses
approximatives
Adresses
précises
Nos nouveaux biens qui pourraient vous intéresser
Bureaux - 533.64m² Divisibles à partir de 24.84 m²
ENTZHEIM (67960)
ENTZHEIM (67960)
384.75€/mois HT HC
Disponibilité : Immédiate
Surface : divisibles à partir de 24.84 m²
Les entrepreneurs ayant consulté cette offre ont aussi consulté celles ci
Bureaux - 348.02m²
BIEVRES (91570)
BIEVRES (91570)
3 480.00€/mois HT HC
Disponibilité : 1er juillet 2026
Surface : 348.02 m²
Bureaux - 288.28m²
BIEVRES (91570)
BIEVRES (91570)
2 880.00€/mois HT HC
Disponibilité : 1er juillet 2026
Surface : 288.28 m²
Bureaux et Activités - 4 645.22m² Divisibles à partir de 249.90 m²
VILLIERS SUR MARNE (94350)
VILLIERS SUR MARNE (94350)
54 180.00€/mois HT HC
Disponibilité : Immédiate
Surface : divisibles à partir de 249.90 m²
Bureaux - 447m²
MOUSSY LE NEUF (77230)
MOUSSY LE NEUF (77230)
4 097.50€/mois HT HC
Disponibilité : Immédiate
Surface : 447 m²