Retour
Disponibilité Immédiate
À Louer Bureaux privatifs 100 m² | 18 postes LE CREQUI RUE CREQUI LYON (69003)
Ajouter au comparateur
Vous souhaitez faciliter votre recherche ?
Créez un compte
Présentation du bien
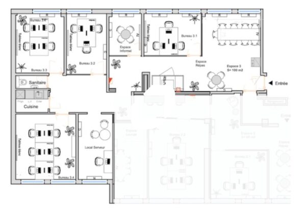
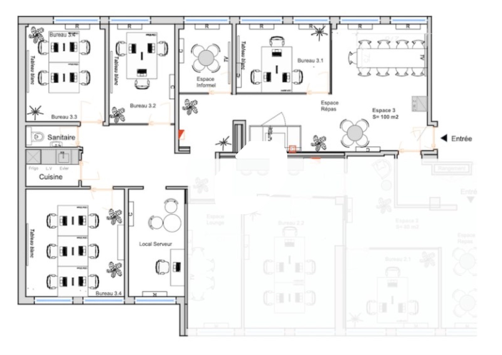
Immprove vous propose des bureaux tout inclus au sein de la Part-Dieu. Espace modulable divisé en plusieurs zones privatives garantissant une confidentialité optimale.
Localisation idéale pour bénéficier d'une vie de quartier dynamique en dehors des bureaux.
Surface totale
Nature
Divisibilité
Nombre de postes
Etat des locaux
100 m²
Bureaux
Non
18
Bon état
Prix & Conditions
Loyer :
390 € /m²/an (HT/HC)
3 250 € /mois (HT/HC)
39 000 € /an (HT/HC)
Conditions location :
Assurances, taxes et charges incluses dans le loyer
Prestations & équipements du bien
Les espaces de travail
1 salle de réunion
1 cuisine
Autres
Espace entièrement meublé
Accès à un réseau internet haut-débit inclus
Entretien et ménage inclus
Maintenance de l'espace avec plateforme de ticketing incluse
5 bureaux privatifs
1 espace informel
Assurances, taxes et charges incluses dans le loyer
Répartition & surfaces des espaces
Tableau des divisibilités
| Type | Étage | Surface | Loyer (€/m²/an HT HC) |
Charges (€/m²/an HT HC) |
|---|---|---|---|---|
| Bureaux | 100 m² | 390.00 | Prix sur demande |
Performance énergétique du bien (DPE)


Informations non contractuelles
Localisation & accès
Transports en commun à proximité
SNCF gare de Part Dieu à moins de 15 min
Ligne B, station "Place Guichard
Ligne D, station "Guillotière - Gabriel Péri" à 10 min à pied
27
38
Accès routier
Ligne T1 : arrêt "Palais Justice - Mairie 3ème"
Station Vélo'V : Bourse du travail
Adresses
approximatives
Adresses
précises
Nos nouveaux biens qui pourraient vous intéresser
Bureaux - 456m² Divisibles à partir de 110 m²
LYON (69007)
LYON (69007)
4 901.67€/mois HT HC
Disponibilité : Immédiate
Surface : divisibles à partir de 110 m²
Les entrepreneurs ayant consulté cette offre ont aussi consulté celles ci
Bureaux - 75m²
MONTPELLIER (34000)
MONTPELLIER (34000)
1 423.31€/mois HT HC
Disponibilité : octobre 2026
Surface : 75 m²
Bureaux - 240m²
LEVALLOIS PERRET (92300)
LEVALLOIS PERRET (92300)
6 400.00€/mois HT HC
Disponibilité : Immédiate
Surface : 240 m²
Activités et Bureaux - 949m²
GENNEVILLIERS (92230)
GENNEVILLIERS (92230)
11 071.67€/mois HT HC
Disponibilité : Nous consulter
Surface : 949 m²