Retour
Bureaux - 798m² à Louer
. Façade mur rideau
. Accès véhicules légers et poids lourds
. Accès PMR
. Contrôle d'accès
. Climatisation réversible
. Fibre optique
. Cour
. Bon état
. Accueil
. Espace ouvert
. Bureaux cloisonnés
. Salle de réunion
. Espace détente
. Local technique
. Cuisine
. Sanitaires privatifs
. Belle hauteur sous plafond
. Locaux traversants et lumineux
. Décloisonnement possible
. Locaux rationnels et modulables
. Faux plafonds acoustiques
. Moquette, parquet et sol PVC
. Plinthes périphériques
. Câblage et pré-câblage informatique et téléphonique
. Prises RJ45
. Alarme
. Douche
. Réfectoire / Cafétéria
. Vestiaire
Bureaux - 798m² à Louer
RUE FRANCIS DE PRESSENSE VILLEURBANNE (69100)
DESCRIPTION
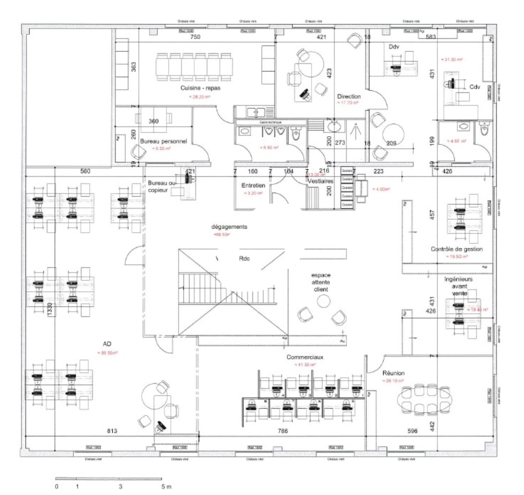
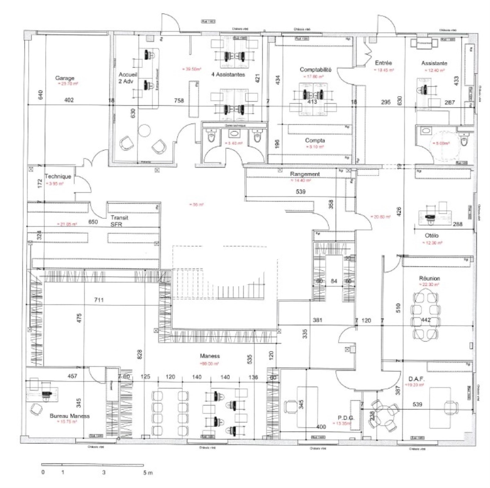
Immprove Lyon est ravi de vous présenter cette rare opportunité de louer un magnifique plateau de bureaux indépendant de 800 m² à proximité du métro à Villeurbanne.
En savoir plus
. Immeuble restructuré. Façade mur rideau
. Accès véhicules légers et poids lourds
. Accès PMR
. Contrôle d'accès
. Climatisation réversible
. Fibre optique
. Cour
. Bon état
. Accueil
. Espace ouvert
. Bureaux cloisonnés
. Salle de réunion
. Espace détente
. Local technique
. Cuisine
. Sanitaires privatifs
. Belle hauteur sous plafond
. Locaux traversants et lumineux
. Décloisonnement possible
. Locaux rationnels et modulables
. Faux plafonds acoustiques
. Moquette, parquet et sol PVC
. Plinthes périphériques
. Câblage et pré-câblage informatique et téléphonique
. Prises RJ45
. Alarme
. Douche
. Réfectoire / Cafétéria
. Vestiaire
Consommations énergétiques


Informations non contractuelles
Tableau des divisibilités
| Type | Étage | Surface | Loyer (€/m²/an HT HC) |
Charges (€/m²/an HT HC) |
|---|---|---|---|---|
| Bureaux | RDC / R+1 | 798 m² | 135.00 | 18.80 |
Caractéristiques
8 places de parking extérieures incluses dans le loyer des bureaux
- Surface 798 m²
- Etat des locaux Bon état
Adresses
approximatives
Adresses
précises
Nos nouveaux biens qui pourraient vous intéresser
Les entrepreneurs ayant consulté cette offre ont aussi consulté celles ci
Les services Immprove
Une gamme complète de services qui facilitent vos démarches et destinée à satisfaire vos attentes