Retour
Bureaux - 3 311.66m² à Louer
. Structure façade porteuse et dalles en béton armé
. Hauteur libre sou faux plafonds : 2,70 mètres
. Faux plafonds démontables
. Eclairage bureaux : mâts sur détection de présence et gradation en fonction de la luminosité ambiante
.Sol : Dalles de moquette au sol ou carrelage grès cérame (pour hall commun et sanitaires)
. Peinture aux murs
. Chauffage : pompe à chaleur réversible à détente directe / Système DRV (Débit de Réfrigérant Variable)
. Ventilation double flux avec échangeur de chaleur
. Terrasse végétalisée en attique
. 2 ascenseurs et 1 monte charge
. Sécurité : contrôle d'accès par badge et visiophone / alarme et détection incendie
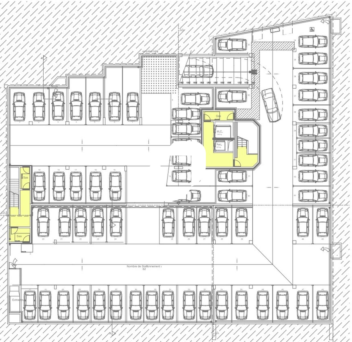
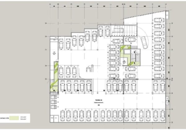
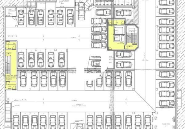
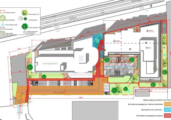
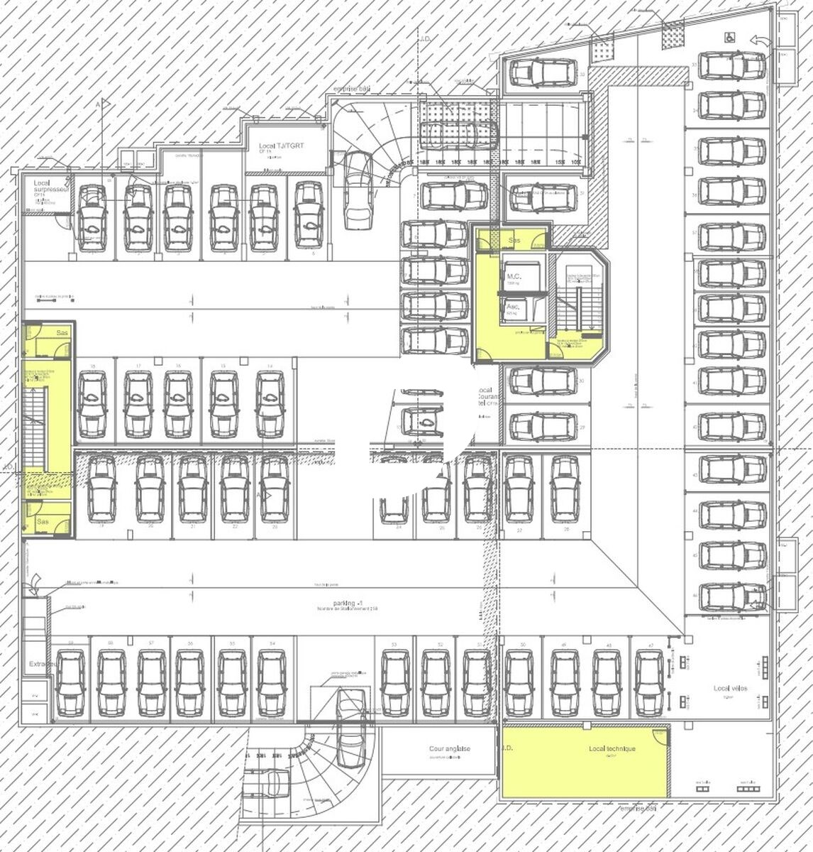
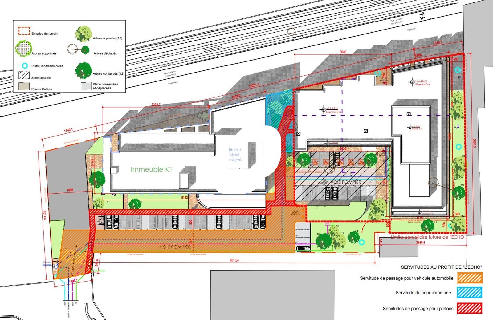
Stationnements : 50 emplacements en sous-sol
• 20 emplacements pour le R+3
• 30 emplacements pour le R+2
Bureaux - 3 311.66m² à Louer
L'ECHO - AVENUE PAUL KRUGER VILLEURBANNE (69100)
DESCRIPTION
IMMPROVE vous propose au cœur de Villeurbanne : des bureaux modernes à louer au sein de l'immeuble L'ECHO, offrant une surface totale de 3 311 m², modulables à partir de 191 m². Conçus pour répondre aux normes techniques et environnementales les plus récentes, ces espaces sont certifiés OXYGEN et conformes à la réglementation RT 2012, garantissant un cadre de travail durable et innovant.
En savoir plus
. Bâtiment ERP 5ème catégorie en W / effectif 877 personnes. Structure façade porteuse et dalles en béton armé
. Hauteur libre sou faux plafonds : 2,70 mètres
. Faux plafonds démontables
. Eclairage bureaux : mâts sur détection de présence et gradation en fonction de la luminosité ambiante
.Sol : Dalles de moquette au sol ou carrelage grès cérame (pour hall commun et sanitaires)
. Peinture aux murs
. Chauffage : pompe à chaleur réversible à détente directe / Système DRV (Débit de Réfrigérant Variable)
. Ventilation double flux avec échangeur de chaleur
. Terrasse végétalisée en attique
. 2 ascenseurs et 1 monte charge
. Sécurité : contrôle d'accès par badge et visiophone / alarme et détection incendie
Stationnements : 50 emplacements en sous-sol
• 20 emplacements pour le R+3
• 30 emplacements pour le R+2
Consommations énergétiques


Informations non contractuelles
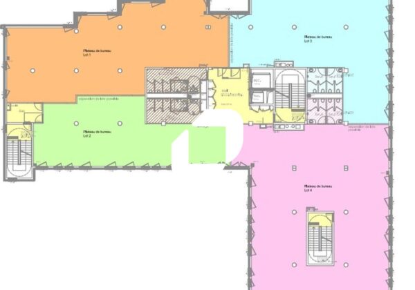
Tableau des divisibilités
| Type | Étage | Surface | Loyer (€/m²/an HT HC) |
Charges (€/m²/an HT HC) |
|---|---|---|---|---|
| Parkings | 1 300.00 | Prix sur demande | ||
| Bureaux | Rez-de-Chaussée | 337 m² | 150.00 | 33.00 |
| Bureaux | Rez-de-Chaussée | 477 m² | 150.00 | 33.00 |
| Bureaux | 2ème étage | 530 m² | 150.00 | 33.00 |
| Bureaux | 2ème étage | 335 m² | 150.00 | 33.00 |
| Bureaux | 2ème étage | 290 m² | 150.00 | 33.00 |
| Bureaux | 3ème étage | 528 m² | 150.00 | 33.00 |
| Bureaux | 3ème étage | 335 m² | 150.00 | 33.00 |
| Bureaux | 3ème étage | 289 m² | 150.00 | 33.00 |
| Bureaux | 3ème étage | 191 m² | 150.00 | 33.00 |
Caractéristiques
Assurance immeuble et honoraires de gestion à la charge du preneur à prévoir.
- Surface 3 311.66 m²
- Etat des locaux Bon état
- Nbre Parking 50
Adresses
approximatives
Adresses
précises
Nos nouveaux biens qui pourraient vous intéresser
Bureaux - 796.70m² Divisibles à partir de 152 m²
à Louer
VILLEURBANNE (69100)
Voir le bien
1 900.00€/mois HT HC
Bureaux - 904m² Divisibles à partir de 146 m²
à Louer
VILLEURBANNE (69100)
Voir le bien
3 345.42€/mois HT HC
Les entrepreneurs ayant consulté cette offre ont aussi consulté celles ci
Les services Immprove
Une gamme complète de services qui facilitent vos démarches et destinée à satisfaire vos attentes