Retour
Bureaux - 649.60m² à Louer
. Ascenseur
. Interphone
. Lot rénové
Bureaux - 649.60m² à Louer
ECULLY (69130)
DESCRIPTION
Immprove vous propose à la location des bureaux en plein coeur du pôle économique de la Techlid, dans un immeuble entièrement restructuré bénéficiant d'une excellente visibilité.
En savoir plus
. Parties communes rénovées récemment. Ascenseur
. Interphone
. Lot rénové
Consommations énergétiques


Informations non contractuelles
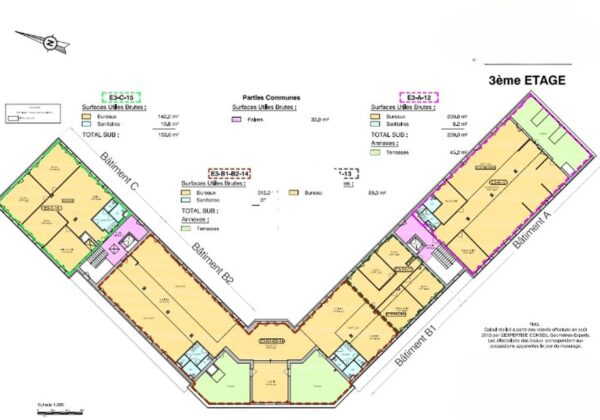
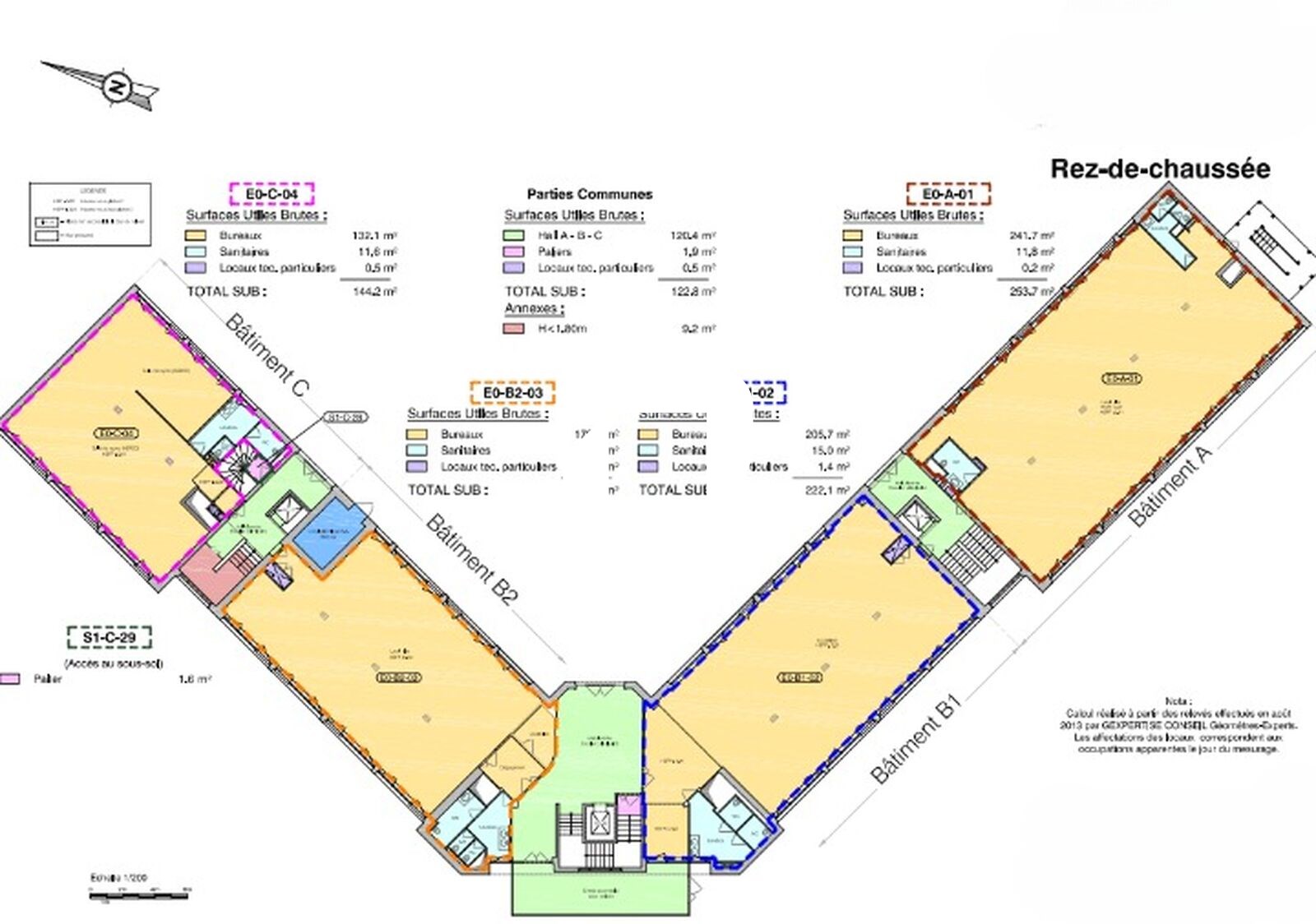
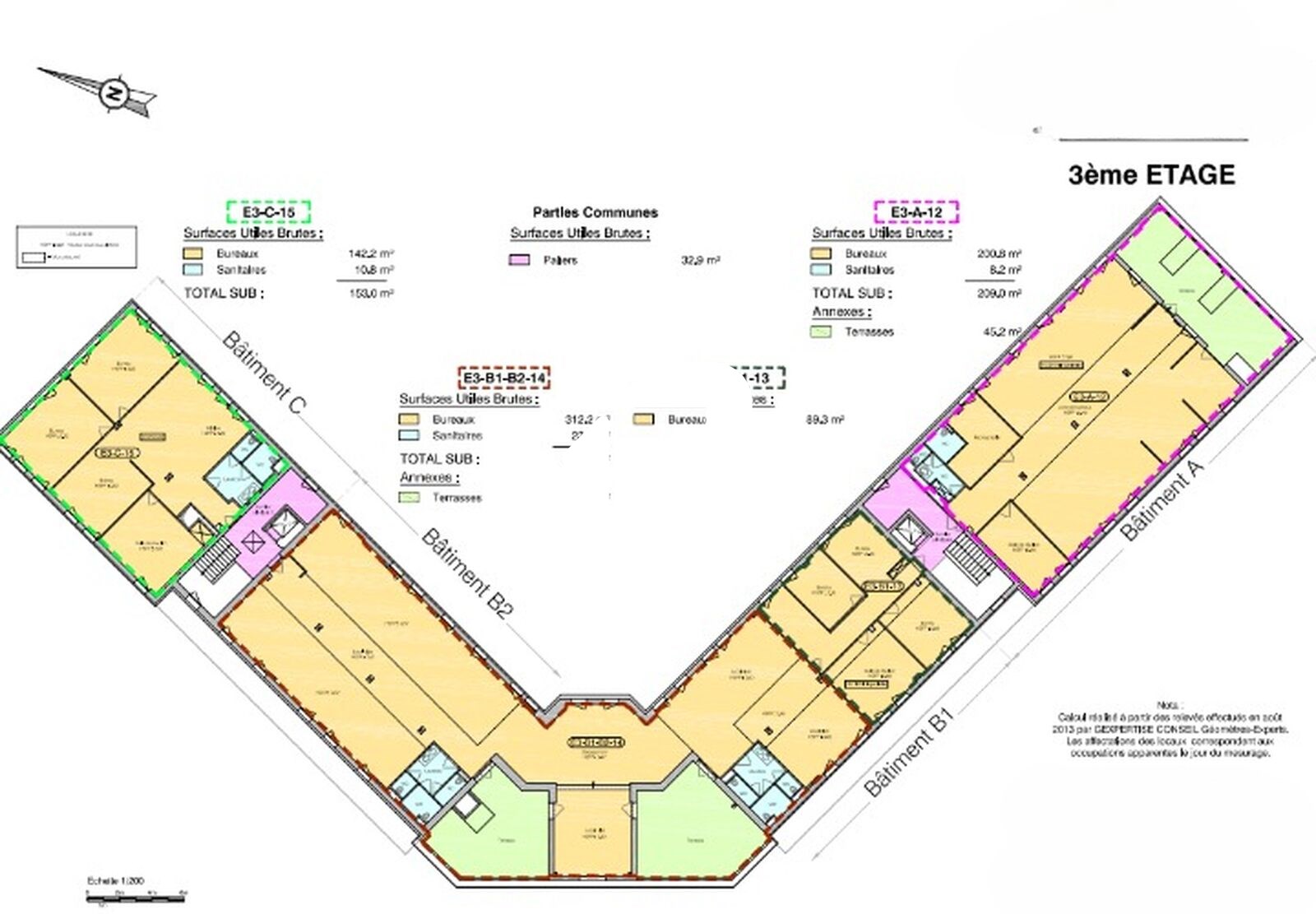
Tableau des divisibilités
| Type | Étage | Surface | Loyer (€/m²/an HT HC) |
Charges (€/m²/an HT HC) |
|---|---|---|---|---|
| Bureaux | 2ème étage | 175 m² | 140.24 | 61.36 |
| Bureaux | 3ème étage | 175 m² | 133.16 | 64.96 |
| Bureaux | 1er étage | 300 m² | 140.00 | 35.09 |
Caractéristiques
. Parking inclus au loyer
. Inclus dans les charges : charges courantes immeuble et chauffage
. Possibilité de parkings supplémentaires pour le lot E1-05 (500 € / an / U)
Impôt foncier RDC compris dans les charges
- Surface 649.60 m²
- Etat des locaux Rénové
Adresses
approximatives
Adresses
précises
Nos nouveaux biens qui pourraient vous intéresser
Bureaux - 900.61m² Divisibles à partir de 187.42 m²
à Louer
ECULLY (69130)
Voir le bien
1 870.00€/mois HT HC
Bureaux - 899m² Divisibles à partir de 215 m²
à Louer
ECULLY (69130)
Voir le bien
4 885.42€/mois HT HC
Les entrepreneurs ayant consulté cette offre ont aussi consulté celles ci
Les services Immprove
Une gamme complète de services qui facilitent vos démarches et destinée à satisfaire vos attentes