Retour
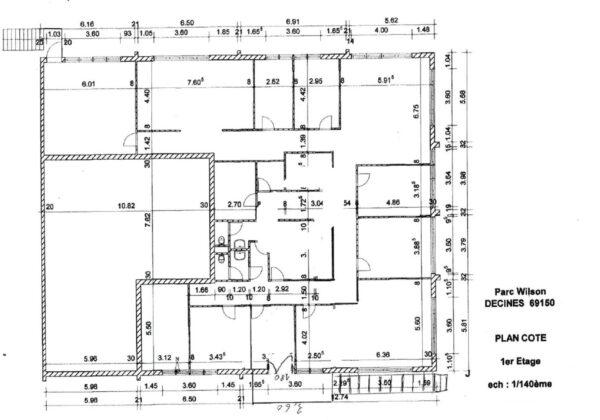
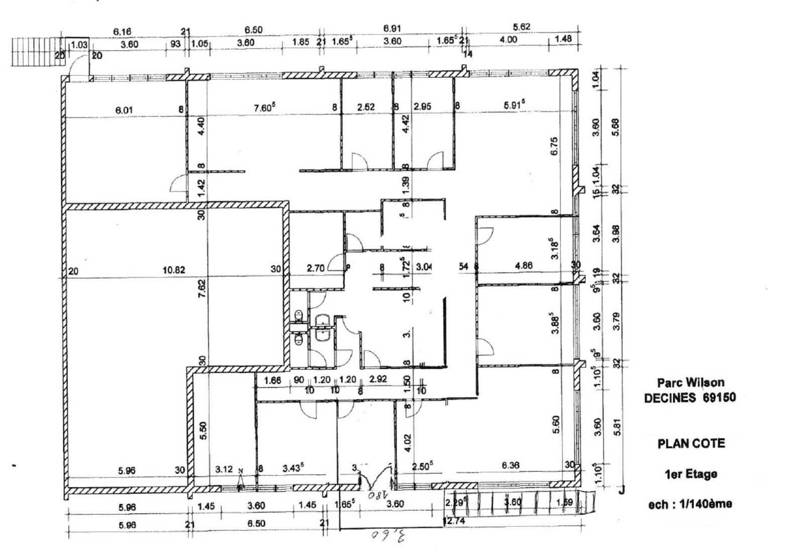
Bureaux - 380m² à Louer
. Parkings à l'aplomb du local
. Bureaux cloisonnés par cloisons amovibles, pleines et semi-vitrées
. Prises RJ 45 - plinthes électriques
. Local serveur climatisé individuellement
. Local baie de brassage
. Bureaux chauffés et climatisés
. Stationnements : 10 places de parking
Bureaux - 380m² à Louer
DECINES CHARPIEU (69150)
DESCRIPTION
Sur la commune de Décines, au sein du Parc d'activités Wilson, Immprove vous propose à la location, des bureaux à l'étage d'une surface totale d'environ 380 m². Bureaux en bon état, cloisonnés et climatisés.
En savoir plus
. 1 portail automatique à l'entrée du site. Parkings à l'aplomb du local
. Bureaux cloisonnés par cloisons amovibles, pleines et semi-vitrées
. Prises RJ 45 - plinthes électriques
. Local serveur climatisé individuellement
. Local baie de brassage
. Bureaux chauffés et climatisés
. Stationnements : 10 places de parking
Consommations énergétiques


Informations non contractuelles
Tableau des divisibilités
| Type | Étage | Surface | Loyer (€/m²/an HT HC) |
Charges (€/m²/an HT HC) |
|---|---|---|---|---|
| Bureaux | R + 1 | 380 m² | 150.00 | 4 446.00 |
Caractéristiques
- Surface 380 m²
- Etat des locaux Bon état
Adresses
approximatives
Adresses
précises
Les entrepreneurs ayant consulté cette offre ont aussi consulté celles ci
Les services Immprove
Une gamme complète de services qui facilitent vos démarches et destinée à satisfaire vos attentes