Retour
Bureaux - 213m² à Louer
. Très belle visibilité
. Parties communes rénovées récemment
. Locaux lumineux
. Faux plafonds
. Moquette
. Climatisation
. Fibre
Bureaux - 213m² à Louer
CHEMIN DE LA ROSETTE TALUYERS (69440)
DESCRIPTION
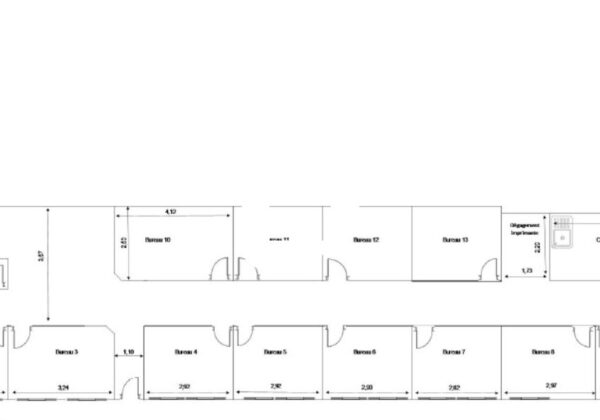
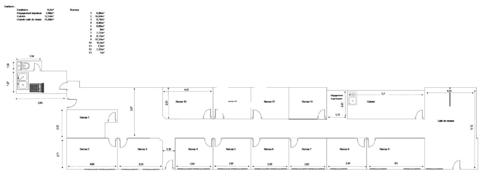
Immprove vous propose à TALUYERS, au bord de la Départementale 342, des bureaux à la location de 213 m² au RDC. Ces bureaux se situent sur un parc verdoyant offrant de nombreuses places de stationnement.
En savoir plus
. Bâtiment indépendant. Très belle visibilité
. Parties communes rénovées récemment
. Locaux lumineux
. Faux plafonds
. Moquette
. Climatisation
. Fibre
Consommations énergétiques


Informations non contractuelles
Tableau des divisibilités
| Type | Étage | Surface | Loyer (€/m²/an HT HC) |
Charges (€/m²/an HT HC) |
|---|---|---|---|---|
| Bureaux | Rez-de-Chaussée | 213 m² | 140.85 | 18.78 |
Caractéristiques
Caution : 7 500 € HT
Grand parking public et gratuit en face des bureaux (nombreuses places)
- Surface 213 m²
- Etat des locaux Rénové
Adresses
approximatives
Adresses
précises
Les entrepreneurs ayant consulté cette offre ont aussi consulté celles ci
Les services Immprove
Une gamme complète de services qui facilitent vos démarches et destinée à satisfaire vos attentes