Retour
Bureaux - 4 192.70m² à Louer
Aménagements en fonction du cahier des charges
RIE
Crèche
Centre d'affaire
Stationnements : emplacements intérieurs et extérieurs
Bureaux - 4 192.70m² à Louer
GENAS (69740)
DESCRIPTION
Genas, au sein du Parc Everest 3, en construction et composé de 7 bâtiments, Immprove vous propose à la location, des bureaux neufs répartis dans 4 bâtiments, divisibles à partir de 262 m².
Cadre de travail verdoyant et prestations de qualité.
En savoir plus
Bureaux livrés soit en plateau nu, soit câblés et cloisonnésAménagements en fonction du cahier des charges
RIE
Crèche
Centre d'affaire
Stationnements : emplacements intérieurs et extérieurs
Consommations énergétiques


Informations non contractuelles
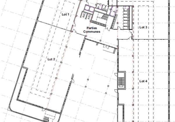
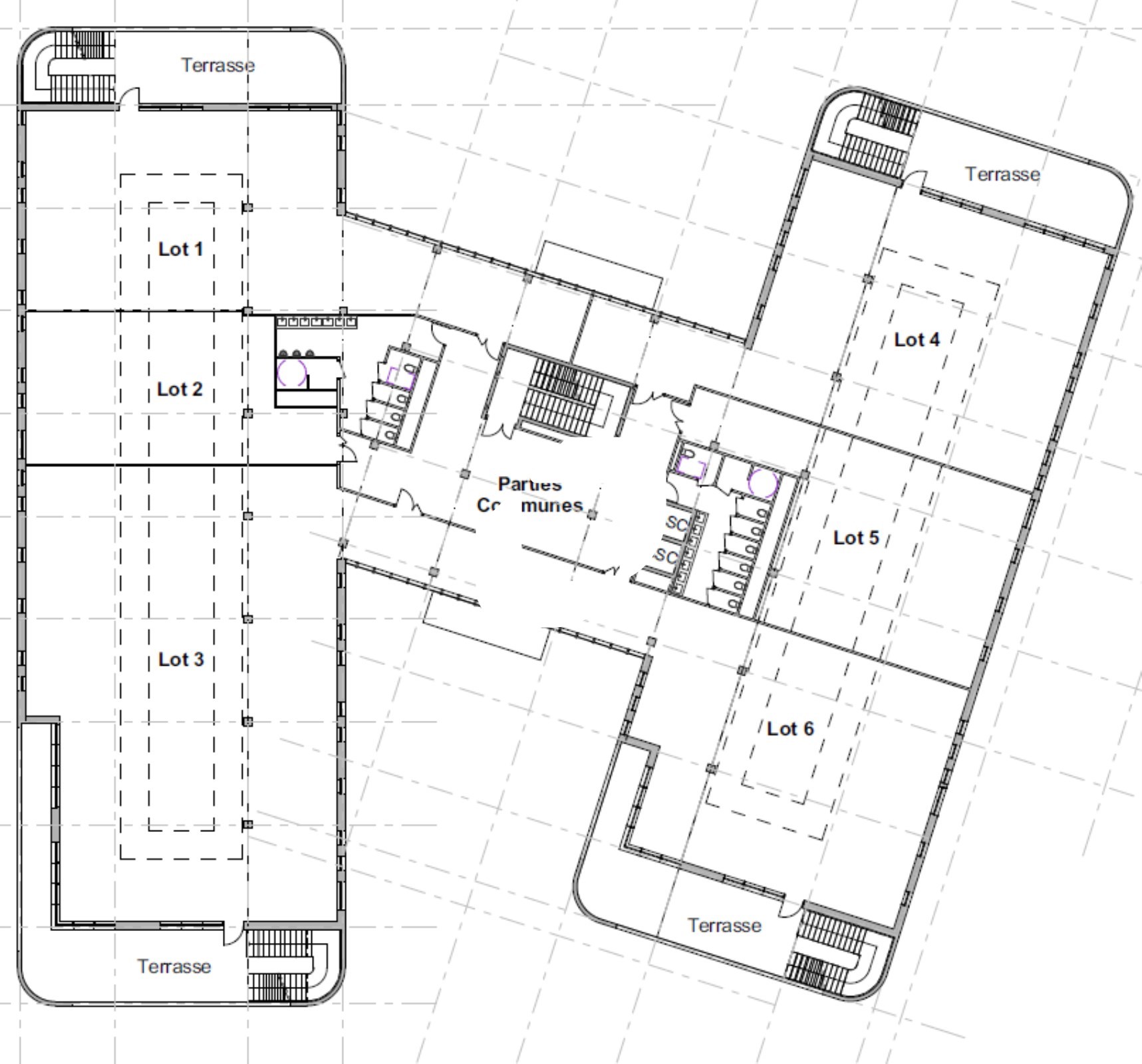
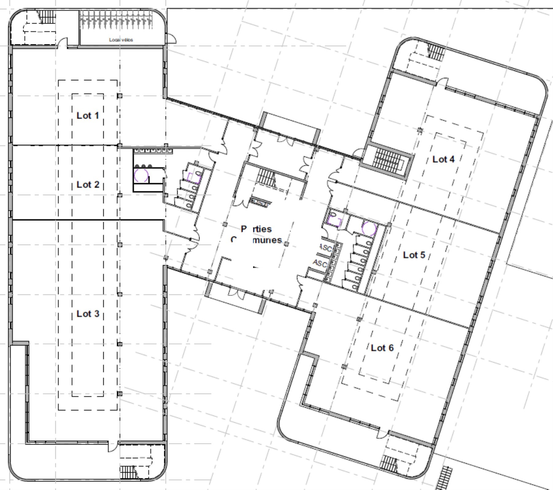
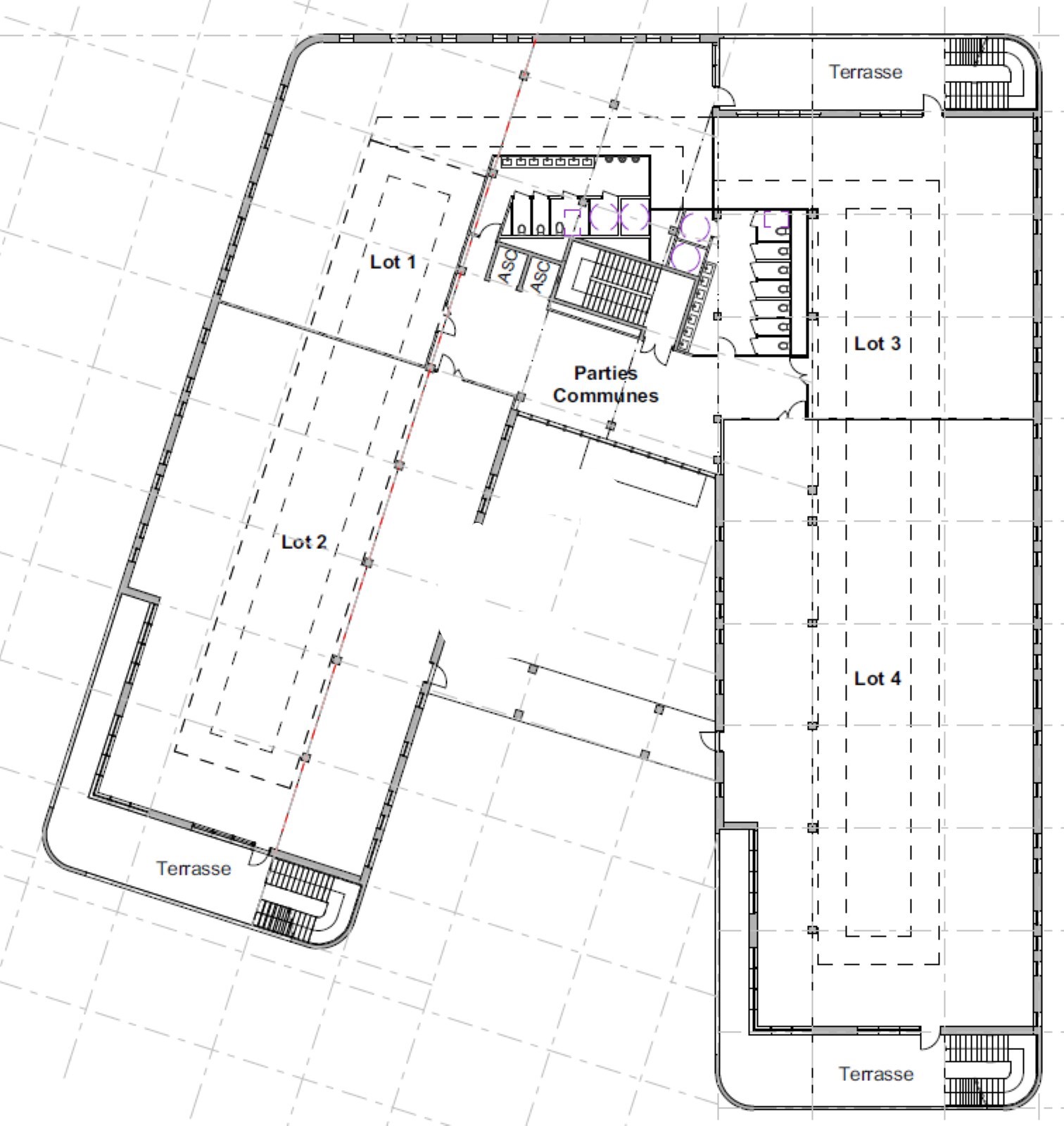
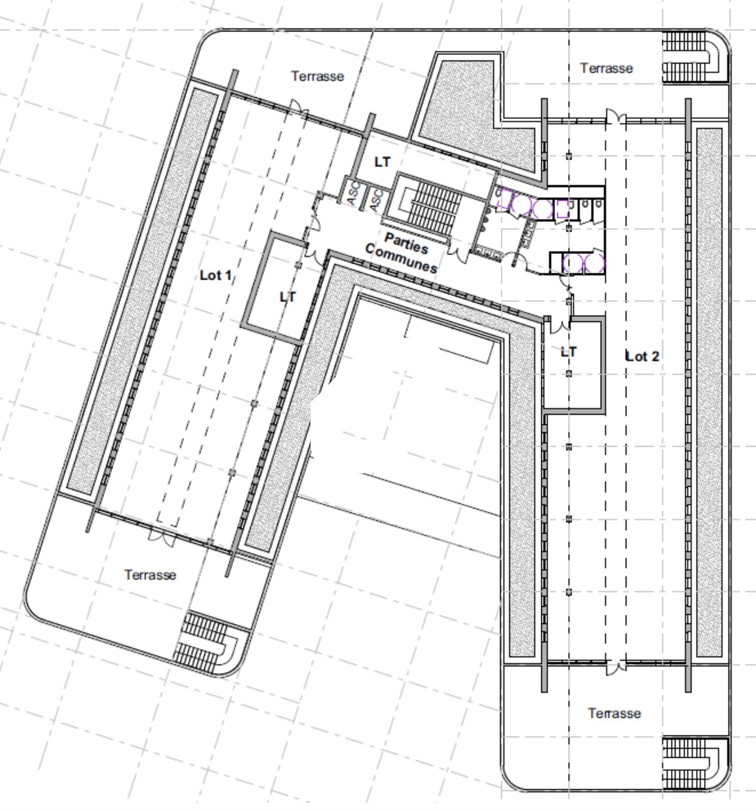
Tableau des divisibilités
| Type | Étage | Surface | Loyer (€/m²/an HT HC) |
Charges (€/m²/an HT HC) |
|---|---|---|---|---|
| Bureaux | RDC | 744 m² | 145.00 | 27.00 |
| Bureaux | RDC | 276 m² | 145.00 | 27.00 |
| Bureaux | RDC | 578 m² | 145.00 | 27.00 |
| Bureaux | 1er étage | 317 m² | 145.00 | 27.00 |
| Bureaux | 1er étage | 511 m² | 145.00 | 27.00 |
| Bureaux | 1er étage | 266 m² | 145.00 | 27.00 |
| Bureaux | 1er étage | 617 m² | 145.00 | 27.00 |
| Bureaux | 3ème étage | 422 m² | 145.00 | 27.00 |
| Bureaux | 1er étage | 463 m² | 145.00 | 27.00 |
Caractéristiques
• Loyer bureaux :
- Câblé et cloisonné : 145 € HT/HC/m²/an
- Plateau nu : 135 € HT/HC/m²/an
• Loyer parkings :
- Extérieurs : 250 € HT/Unité/an
- Intérieurs : 450 € HT/Unité/an (+100 € pour une place avec borne de recharge)
• Provisions pour charges : 27 € HT/m²/an (consommation, fluide, climatisation, chauffage, espaces vert, maintenance parking...)
- Surface 4 192.70 m²
- Etat des locaux Neuf
Adresses
approximatives
Adresses
précises
Nos nouveaux biens qui pourraient vous intéresser
Bureaux - 1 054m² Divisibles à partir de 281 m²
à Louer
GENAS (69740)
Voir le bien
11 418.33€/mois HT HC
Les entrepreneurs ayant consulté cette offre ont aussi consulté celles ci
Les services Immprove
Une gamme complète de services qui facilitent vos démarches et destinée à satisfaire vos attentes