Retour
Disponibilité Immédiate
À Louer Bureaux 843.91 m² divisibles à partir de 93 m² LE SANS SOUCI CHEMIN VERT LIMONEST (69760)
Ajouter au comparateur
Vous souhaitez faciliter votre recherche ?
Créez un compte
Présentation du bien
Découvrez au cœur de la dynamique TECHLID à Limonest, l'ensemble immobilier "LE SANS SOUCI". IMMPROVE vous propose des bureaux à louer, de 843 m² divisibles à partir de 93 m², parfaitement adaptés à vos besoins professionnels. Profitez de stationnements extérieurs pour chaque lot.
Surface totale
Nature
Divisibilité
Etat des locaux
843.91 m²
Bureaux
Oui à partir de 93 m²
Bon état
Prix & Conditions
Loyer :
130 € /m²/an (HT/HC)
1 007 € /mois (HT/HC)
12 090 € /an (HT/HC)
Divisibles à partir de 93 m²
Impôt foncier :
20.88
Dépôt de garantie :
3 mois de loyer HT HC
Conditions location :
Places de stationnement extérieures incluses dans le loyer des bureaux
Prestations & équipements du bien
Le bâtiment
Immeuble ancien
Parties communes de qualité
Les espaces de travail
Bon état
Espace ouvert
Bureaux cloisonnés
Le confort au quotidien
Climatisation réversible
Les accès
Accès véhicules légers
Places de stationnement extérieures incluses dans le loyer des bureaux
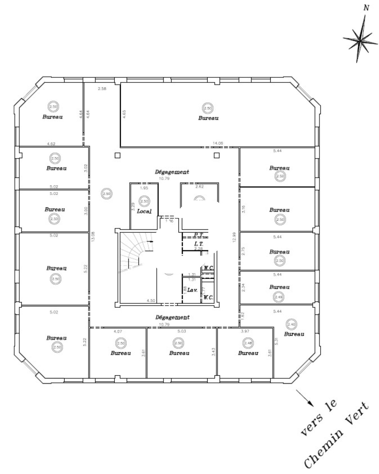
Répartition & surfaces des espaces
Tableau des divisibilités
| Type | Étage | Surface | Loyer (€/m²/an HT HC) |
Charges (€/m²/an HT HC) |
|---|---|---|---|---|
| Bureaux | 1er étage | 456 m² | 130.00 | 28.56 |
| Bureaux | RDC | 93 m² | 130.00 | 28.56 |
| Bureaux | RDC | 132 m² | 130.00 | 30.37 |
| Bureaux | RDC | 163 m² | 130.00 | 30.37 |
Performance énergétique du bien (DPE)


Informations non contractuelles
Localisation & accès
Transports en commun à proximité
10
21
S3
Accès routier
Au coeur de la ZAC Sans-Soucis, dans le pôle économique de TECHLID / Accès immédiat à l'A6 et au Périphérique Nord
Adresses
approximatives
Adresses
précises
Nos nouveaux biens qui pourraient vous intéresser
Bureaux - 232m² Divisibles à partir de 72 m²
LIMONEST (69760)
LIMONEST (69760)
750.00€/mois HT HC
Disponibilité : Immédiate
Surface : divisibles à partir de 72 m²
Les entrepreneurs ayant consulté cette offre ont aussi consulté celles ci
Bureaux - 83.60m²
BUSSY SAINT GEORGES (77600)
BUSSY SAINT GEORGES (77600)
1 288.00€/mois HT HC
Disponibilité : Immédiate
Surface : 83.60 m²
Bureaux - 6 934m² Divisibles à partir de 173 m²
LYON (69009)
LYON (69009)
Prix sur demande
Disponibilité : Selon les lots – nous consulter
Surface : divisibles à partir de 173 m²