Retour
PORTE MAILLOT LIGNE 1
Disponibilité Immédiate
À Sous Louer Bureaux 236 m² SEIZAME AVENUE DE MALAKOFF PARIS (75016)
Ajouter au comparateur
Vous souhaitez faciliter votre recherche ?
Créez un compte
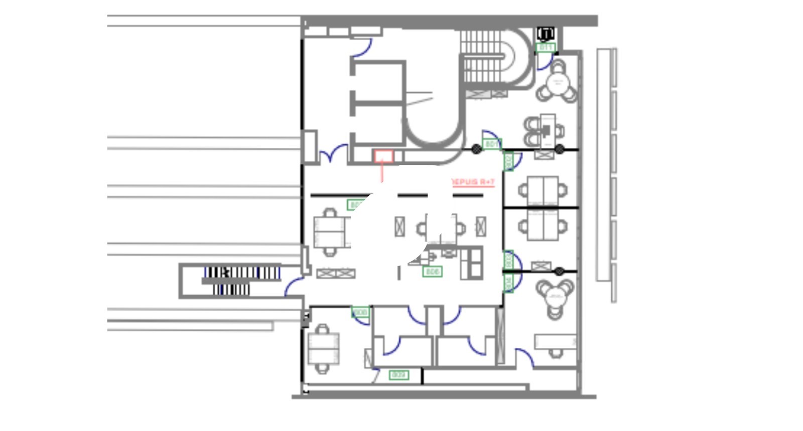
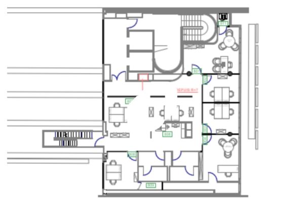
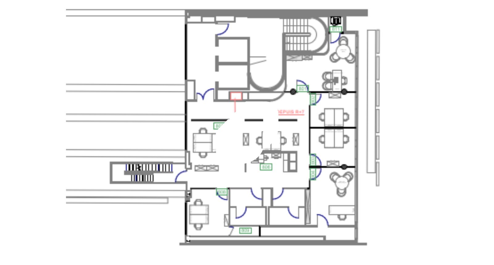
Présentation du bien
A proximité directe de la Place de l'Etoile et de l'Avenue Foch, IMMPROVE vous propose un plateau de bureaux d'environ 236 m² situé au 8ème étage d'un immeuble moderne, en sous location pour une durée maximum de 18 mois.
Surface totale
Nature
Divisibilité
Etat des locaux
236 m²
Bureaux
Non
Bon état
Prix & Conditions
Loyer :
700 € /m²/an (HT/HC)
13 766 € /mois (HT/HC)
165 200 € /an (HT/HC)
Impôt foncier :
38.60
Taxe bureaux :
26.11
Dépôt de garantie :
3 mois de loyer HT HC
Conditions location :
Bail dérogatoire jusqu'au 31 mai 2026
Prestations & équipements du bien
Le bâtiment
Parties communes de qualité
Les espaces de travail
Hôtesse d'accueil
Fibre optique
Bureaux cloisonnés
Salle de réunion
Sanitaires privatifs
Décloisonnement possible
Locaux rationnels et modulables
Le confort au quotidien
Auditorium de 90 places - ERP 5 . Locaux lumineux aménagés en
Les accès
Accès PMR
Sécurité du site
Sas d'entrée
Gardienne
Interphone
Accessibilité
Ascenseur
Monte-charge
Services & espaces partagés
R.I.E. de 180 places assises
Extérieur
Nombreuses terrasses
Parking int. (12)
Parkings motos (5) et vélos (65)
Autres
Restructuration lourde réalisée par l'architecte Franck Hammoutène en 2017
Capacitaire immeuble : 944 personnes
Deux hall double hauteur
Bail dérogatoire jusqu'au 31 mai 2026
Répartition & surfaces des espaces
Tableau des divisibilités
| Type | Étage | Surface | Loyer (€/m²/an HT HC) |
Charges (€/m²/an HT HC) |
|---|---|---|---|---|
| Bureaux | 8ème étage | 236 m² | 700.00 | 125.00 |
Performance énergétique du bien (DPE)


Informations non contractuelles
Localisation & accès
Transports en commun à proximité
82
Adresses
approximatives
Adresses
précises
Nos nouveaux biens qui pourraient vous intéresser
Les entrepreneurs ayant consulté cette offre ont aussi consulté celles ci
Bureaux - 1 114m² Divisibles à partir de 155 m²
PARIS (75002)
PARIS (75002)
Prix sur demande
Disponibilité : 31 juillet 2026
Surface : divisibles à partir de 155 m²