Retour
Disponibilité Immédiate
À Louer Bureaux 823 m² divisibles à partir de 100 m² ROMAINVILLE (93230)
Ajouter au comparateur
Vous souhaitez faciliter votre recherche ?
Créez un compte
Présentation du bien
Au sein d’un immeuble de bureaux, au pied de l’A3 et à 500M de la future station de métro ; IMMPROVE vous propose 3 plateaux de bureau ERP avec des loyers très attractifs. A saisir d’urgence !
Surface totale
Nature
Divisibilité
Etat des locaux
823 m²
Bureaux
Oui à partir de 100 m²
Bon état
Prix & Conditions
Loyer :
110 € /m²/an (HT/HC)
916 € /mois (HT/HC)
11 000 € /an (HT/HC)
Divisibles à partir de 100 m²
Impôt foncier :
36.00
Taxe bureaux :
8
Dépôt de garantie :
2 mois de loyer HT HC
Prestations & équipements du bien
Le bâtiment
Immeuble moderne
Façade mur rideau
Parties communes de bon standing
Les espaces de travail
Interphone . Travaux à prévoir
Espace ouvert
Bureaux cloisonnés
Faux plafonds
Plinthes périphériques
Câblage informatique et téléphonique
Pré-câblage informatique et téléphonique
Prises RJ45
Le confort au quotidien
Moquette
Parquet
Les accès
Accès véhicules légers
Sécurité du site
Contrôle d'accès
Télésurveillance
PC sécurité
Site sécurisé 24h/24h
Accès sécurisé par badge
Digicode
Accessibilité
Ascenseur PMR
Autres
Locaux E.R.P.
Sanitaires
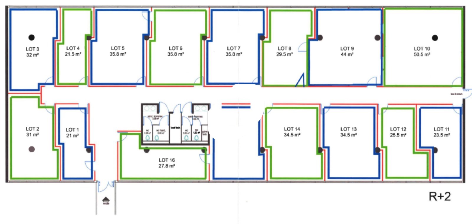
Répartition & surfaces des espaces
Tableau des divisibilités
| Type | Étage | Surface | Loyer (€/m²/an HT HC) |
Charges (€/m²/an HT HC) |
|---|---|---|---|---|
| Bureaux | 2ème étage | 123 m² | 110.00 | 66.00 |
| Bureaux | 3ème étage | 600 m² | 100.00 | 66.00 |
| Bureaux | 4ème étage | 100 m² | 110.00 | 66.00 |
Performance énergétique du bien (DPE)


Informations non contractuelles
Localisation & accès
Transports en commun à proximité
SNCF : Romainville et Rosny
545
Accès routier
A3 / A86
Boulevard Périphérique : Porte de Bagnolet, Porte de Montreuil
Adresses
approximatives
Adresses
précises
Nos nouveaux biens qui pourraient vous intéresser
Bureaux - 2 340.60m² Divisibles à partir de 180 m²
ROMAINVILLE (93230)
ROMAINVILLE (93230)
2 700.00€/mois HT HC
Disponibilité : Immédiate
Surface : divisibles à partir de 180 m²
Bureaux - 38 711m² Divisibles à partir de 10 m²
ROMAINVILLE (93230)
ROMAINVILLE (93230)
4 088.33€/mois HT HC
Disponibilité : Immédiate
Surface : divisibles à partir de 10 m²
Les entrepreneurs ayant consulté cette offre ont aussi consulté celles ci
Bureaux - 83.60m²
BUSSY SAINT GEORGES (77600)
BUSSY SAINT GEORGES (77600)
1 288.00€/mois HT HC
Disponibilité : Immédiate
Surface : 83.60 m²
Bureaux - 6 934m² Divisibles à partir de 173 m²
LYON (69009)
LYON (69009)
Prix sur demande
Disponibilité : Selon les lots – nous consulter
Surface : divisibles à partir de 173 m²