Retour
Disponibilité Immédiate
À Louer Bureaux 685 m² divisibles à partir de 275 m² NEUILLY SUR MARNE (93330)
Ajouter au comparateur
Vous souhaitez faciliter votre recherche ?
Créez un compte
Présentation du bien
Au coeur du Parc de la Maison Blanche à Neuilly sur Marne, IMMPROVE vous propose à la location 685 m² de bureaux divisibles à partir de 275 m² , locaux ERP totalement rénovés a proximité.
Surface totale
Nature
Divisibilité
Etat des locaux
685 m²
Bureaux
Oui à partir de 275 m²
Restructuré
Prix & Conditions
Loyer :
180 € /m²/an (HT/HC)
4 125 € /mois (HT/HC)
49 500 € /an (HT/HC)
Divisibles à partir de 275 m²
Impôt foncier :
18.00
Taxe bureaux :
12.03
Dépôt de garantie :
3 mois de loyer HT HC
Prestations & équipements du bien
Les espaces de travail
Accueil
Espace ouvert
Salle de réunion
Local technique
Cuisine
Sanitaires privatifs
Faux plafonds
Plinthes périphériques
Le confort au quotidien
Parquet
Prestations spécifiques
Tarif bleu
Autres
Locaux E.R.P.
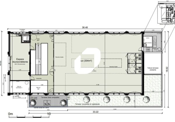
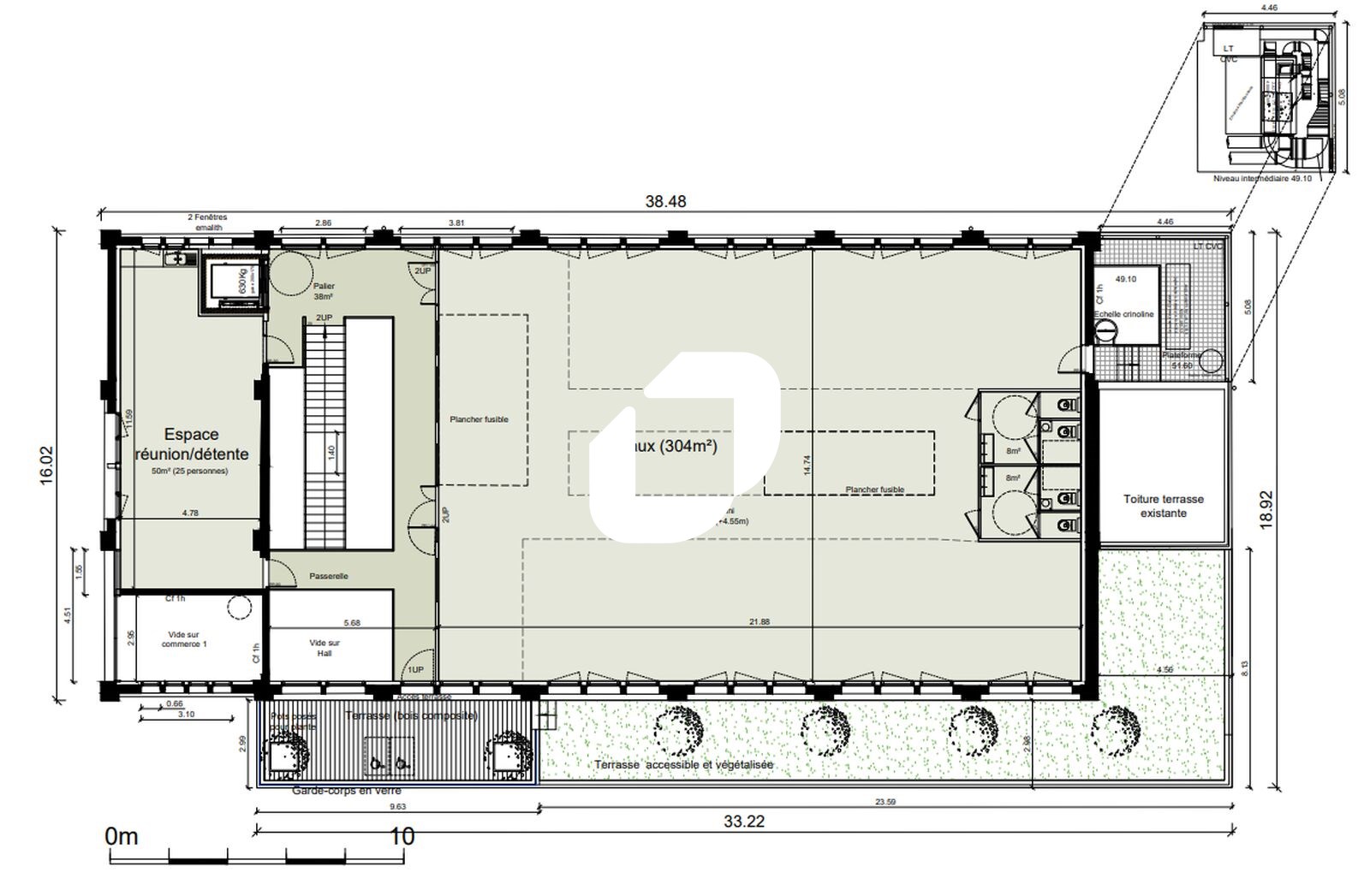
Répartition & surfaces des espaces
Tableau des divisibilités
| Type | Étage | Surface | Loyer (€/m²/an HT HC) |
Charges (€/m²/an HT HC) |
|---|---|---|---|---|
| Parkings | Sous-Sol | 600.00 | Prix sur demande | |
| Bureaux | Rez-de-Chaussée | 275 m² | 180.00 | 20.00 |
| Parkings | Rez-de-Chaussée | 600.00 | Prix sur demande | |
| Bureaux | 1er étage | 410 m² | 180.00 | 20.00 |
Performance énergétique du bien (DPE)


Informations non contractuelles
Localisation & accès
Transports en commun à proximité
643
Adresses
approximatives
Adresses
précises
Nos nouveaux biens qui pourraient vous intéresser
Bureaux - 171m²
NEUILLY SUR MARNE (93330)
NEUILLY SUR MARNE (93330)
Prix sur demande
Disponibilité : Immédiate
Surface : 171 m²
Bureaux - 445m²
NEUILLY SUR MARNE (93330)
NEUILLY SUR MARNE (93330)
3 522.92€/mois HT HC
Disponibilité : Immédiate
Surface : 445 m²
Bureaux - 742m² Divisibles à partir de 23 m²
NEUILLY SUR MARNE (93330)
NEUILLY SUR MARNE (93330)
390.00€/mois HT HC
Disponibilité : Immédiate
Surface : divisibles à partir de 23 m²
Les entrepreneurs ayant consulté cette offre ont aussi consulté celles ci
Bureaux et Locaux Commerciaux - 275.40m²
SAINT HERBLAIN (44800)
SAINT HERBLAIN (44800)
3 994.15€/mois HT HC
Disponibilité : 1er janvier 2027
Surface : 275.40 m²
Bureaux - 1 845m² Divisibles à partir de 285 m²
NANTES (44300)
NANTES (44300)
Prix sur demande
Disponibilité : Immédiate
Surface : divisibles à partir de 285 m²
Bureaux - 120m²
SAINT OUEN L'AUMONE (95310)
SAINT OUEN L'AUMONE (95310)
1 100.00€/mois HT HC
Disponibilité : Immédiate
Surface : 120 m²