À Louer Bureaux 743 m² FONTENAY SOUS BOIS (94120)
Présentation du bien
Prix & Conditions
RIE =15€HT/m² /an
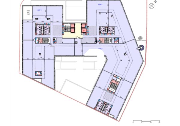
Prestations & équipements du bien
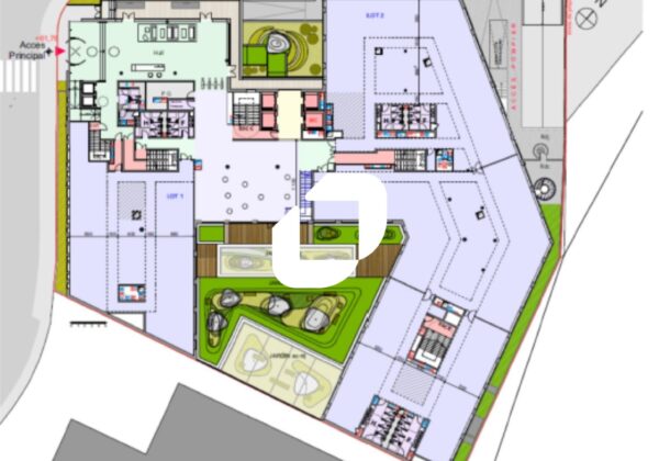
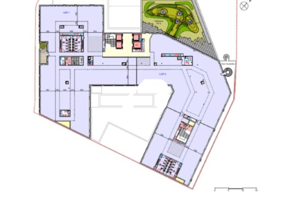
Hall d'accueil avec hôtesses
Jardins et terrasses accessibles . Accueil avec hôtesses
création d'archives et sur l'ensemble
PC sécurité
Contrôle d'accès
Contrôle d'accès
Poste de gardiennage
Ascenseurs
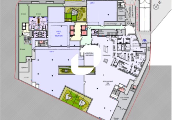
R.I.E et cafétéria
Zone de restauration avec cafétéria et
Hauteur libre de 2,70
Ventilation mécanique double flux
Pôle de réunion en Rez de jardin
Terrasse végétalisée accessible (4è)
Jardin intérieur et jardin sur rue
Parkings motos : 5 emplacements
Immeuble relevant du Code du Travail
Certification HQE Excellent, BREEAM Very Good
Label Effinergie +
Gestion technique du bâtiment
Salles de réunion
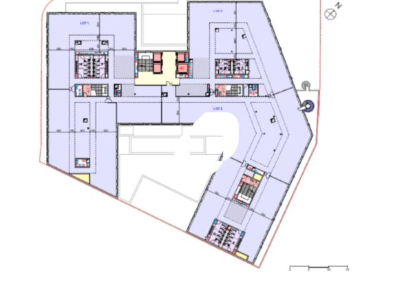
Profondeur des plateaux : 19 m
Trame de 1,35 m en façade
Plénum de 70 mn libre
Surcharge renforcée à 500 kg/m² pour
du RDC et du RdJ
Gestion technique centralisée
Locaux techniques
RIE de 304 places en RdJ (1 074 m²)
Aire de livraison
Local vélo : 231 m²
Certifications :
BREEAM New Construction Very Good
HQE Bâtiment tertiaire Excellent
Effinergie +
Effectif total : 1 217 personnes (1/11 m²)
Répartition & surfaces des espaces
Tableau des divisibilités
| Type | Étage | Surface | Loyer (€/m²/an HT HC) |
Charges (€/m²/an HT HC) |
|---|---|---|---|---|
| Bureaux | Rez-de-Jardin | 743 m² | 250.00 | 49.50 |
Performance énergétique du bien (DPE)


Informations non contractuelles
Localisation & accès
Transports en commun à proximité
Accès routier
Aéroport d'Orly
Aéroport de Roissy - Charles de Gaulle
A86
Adresses
approximatives
Adresses
précises
Nos nouveaux biens qui pourraient vous intéresser
FONTENAY SOUS BOIS (94120)
FONTENAY SOUS BOIS (94120)
Les entrepreneurs ayant consulté cette offre ont aussi consulté celles ci
PARIS (75013)