Retour
Disponibilité Immédiate
À Louer Bureaux 1 596 m² divisibles à partir de 378 m² IVRY SUR SEINE (94200)
Ajouter au comparateur
Vous souhaitez faciliter votre recherche ?
Créez un compte
Présentation du bien
Entre le Métro et le RER Ivry sur Seine, Immprove vous propose des surfaces de bureaux à louer, bénéficiant de terrasses privatives. L'immeuble dispose d'un monte-charge ainsi que la climatisation. Proches des transports en communs. Nous pouvons envisager de rendre les plateaux ERP avec un accès pour les PMR.
Surface totale
Nature
Divisibilité
Etat des locaux
1 596 m²
Bureaux
Oui à partir de 378 m²
Bon état
Prix & Conditions
Loyer :
180 € /m²/an (HT/HC)
5 670 € /mois (HT/HC)
68 040 € /an (HT/HC)
Divisibles à partir de 378 m²
Impôt foncier :
39.82
Taxe bureaux :
5.82
Dépôt de garantie :
3 mois de loyer HT/HC
Prestations & équipements du bien
Le bâtiment
Immeuble moderne
Façade en pierres agrafées
Parties communes de bon standing
Les espaces de travail
Fibre optique
Locaux livrés rénovés
Archives : 88 m²
Sanitaires privatifs
Le confort au quotidien
Climatisation réversible
Jardin paysager commun au RDC
Moquette / Faux plafond
Climatisation réversible
Les accès
Accès PMR
Sécurité du site
Contrôle d'accès
Digicode
Interphone
Accès sécurisé par badge
Accessibilité
Ascenseur PMR
Services & espaces partagés
R.I.E à proximité
Extérieur
2 terrasses
Autres
Façade ravalée
Les deux plateaux du RDC sont ERP PMR
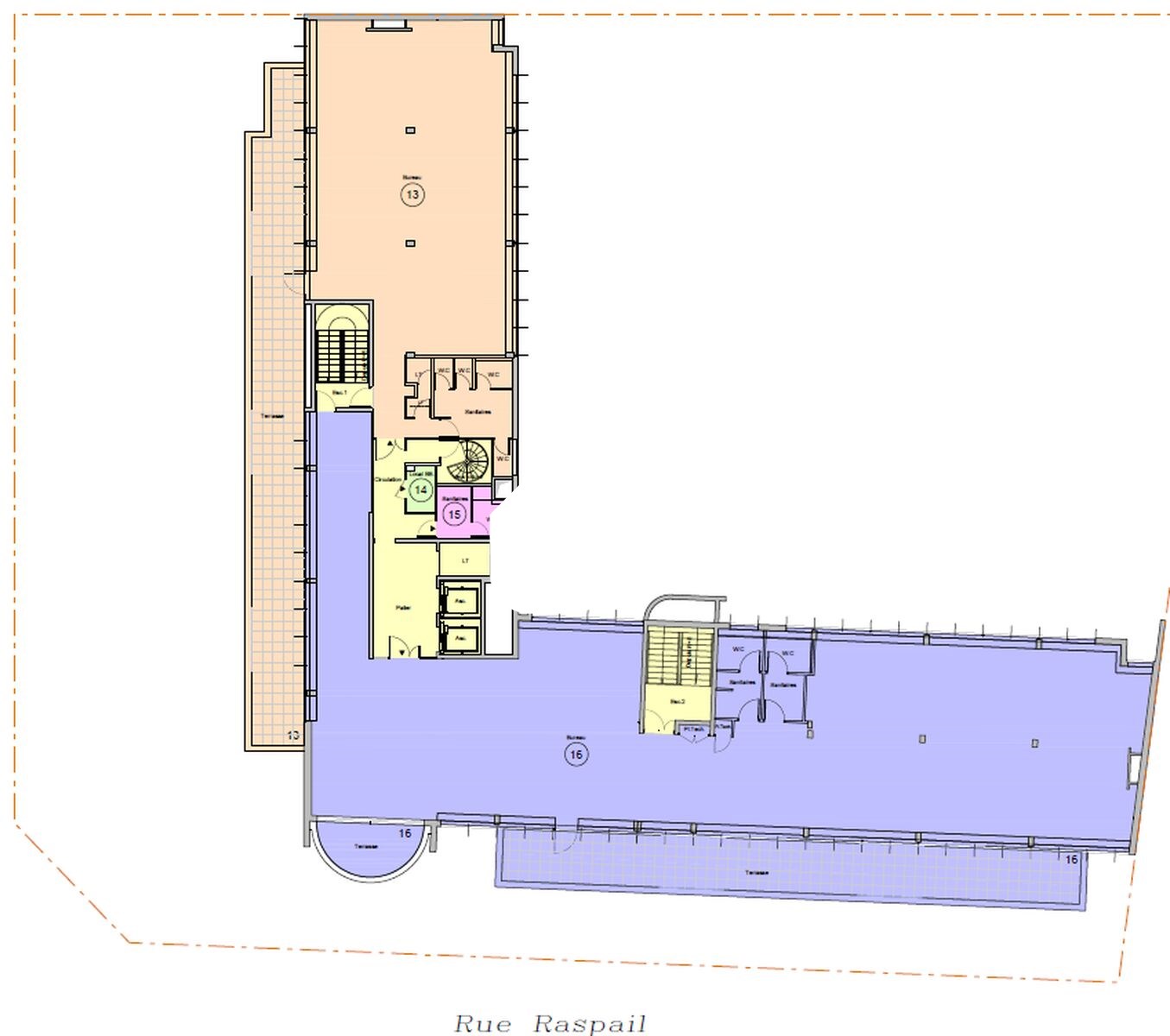
Répartition & surfaces des espaces
Tableau des divisibilités
| Type | Étage | Surface | Loyer (€/m²/an HT HC) |
Charges (€/m²/an HT HC) |
|---|---|---|---|---|
| Parkings | 1 000.00 | Prix sur demande | ||
| Archives | 2ème Sous-Sol | 108 m² | 84.00 | Prix sur demande |
| Archives | 2ème Sous-Sol | 114 m² | 84.00 | Prix sur demande |
| Archives | 2ème Sous-Sol | 49 m² | 84.00 | Prix sur demande |
| Archives | 1er Sous-Sol | 54 m² | 84.00 | Prix sur demande |
| Archives | 1er Sous-Sol | 88 m² | 84.00 | Prix sur demande |
| Bureaux | Rez-de-Chaussée | 415 m² | 180.00 | 49.27 |
| Bureaux | 1er étage | 378 m² | 180.00 | 49.27 |
| Bureaux | 1er étage | 400 m² | 180.00 | 49.27 |
| Bureaux | 3ème étage | 403 m² | 180.00 | 49.27 |
Performance énergétique du bien (DPE)


Informations non contractuelles
Localisation & accès
Transports en commun à proximité
SNCF gare de Ivry-sur-Seine
182
Adresses
approximatives
Adresses
précises
Nos nouveaux biens qui pourraient vous intéresser
Bureaux - 1 169.30m² Divisibles à partir de 334.20 m²
IVRY SUR SEINE (94200)
IVRY SUR SEINE (94200)
9 960.00€/mois HT HC
Disponibilité : Immédiate
Surface : divisibles à partir de 334.20 m²
Bureaux - 6 765.50m² Divisibles à partir de 464.90 m²
IVRY SUR SEINE (94200)
IVRY SUR SEINE (94200)
7 750.00€/mois HT HC
Disponibilité : Immédiate
Surface : divisibles à partir de 464.90 m²
Bureaux - 1 350m² Divisibles à partir de 400 m²
IVRY SUR SEINE (94200)
IVRY SUR SEINE (94200)
5 833.33€/mois HT HC
Disponibilité : Immédiate
Surface : divisibles à partir de 400 m²
Bureaux - 328m²
IVRY SUR SEINE (94200)
IVRY SUR SEINE (94200)
5 466.67€/mois HT HC
Disponibilité : Immédiate
Surface : 328 m²
Les entrepreneurs ayant consulté cette offre ont aussi consulté celles ci
Bureaux - 17.40m²
VELIZY VILLACOUBLAY (78140)
VELIZY VILLACOUBLAY (78140)
879.31€/mois HT HC
Disponibilité : Immédiate
Surface : 17.40 m²
Bureaux - 1 394.10m²
CRETEIL (94000)
CRETEIL (94000)
23 482.50€/mois HT HC
Disponibilité : Septembre 2026
Surface : 1 394.10 m²
Bureaux et Locaux Commerciaux - 275.40m²
SAINT HERBLAIN (44800)
SAINT HERBLAIN (44800)
3 994.15€/mois HT HC
Disponibilité : 1er janvier 2027
Surface : 275.40 m²