Retour
Disponibilité Immédiate
À Louer Bureaux 2 076 m² divisibles à partir de 978 m² 165 AVENUE DU BOIS DE LA PIE ROISSY EN FRANCE (95700)
Ajouter au comparateur
Vous souhaitez faciliter votre recherche ?
Créez un compte
Présentation du bien
Situé au cœur de Paris Nord 2 à Roissy en France, IMMPROVE vous propose à la location un immeuble de bureaux d’une surface de 2 076 m² divisibles à partir de 978 m².
Bel immeuble de standing lumineux présentant un lot de 978 m² au rez-de-chaussée et un lot de 1 098 m² à l’étage sans ascenseur. Les lots sont déjà cloisonnés et un espace cuisine est disponible au RDC.
Surface totale
Nature
Divisibilité
Etat des locaux
2 076 m²
Bureaux
Oui à partir de 978 m²
Rénové
Prix & Conditions
Loyer :
150 € /m²/an (HT/HC)
12 225 € /mois (HT/HC)
146 700 € /an (HT/HC)
Divisibles à partir de 978 m²
Impôt foncier :
21.48
Taxe bureaux :
11.66
Dépôt de garantie :
3 mois de loyer HT HC
Conditions location :
. Division : nous consulter
. Taxe stockage : 1.36 € /m²/an HT
. Taxe stockage : 1.36 € /m²/an HT
Prestations & équipements du bien
Le bâtiment
Immeuble moderne
Façade mur rideau
Parties communes de bon standing
Les espaces de travail
Jardin paysager . Locaux rénovés
Le confort au quotidien
Climatisation réversible
Les accès
Accès véhicules légers
Portail d'accès
Sécurité du site
Interphone
Site clos
Accès sécurisé par badge
. Division : nous consulter
. Taxe stockage : 1.36 € /m²/an HT
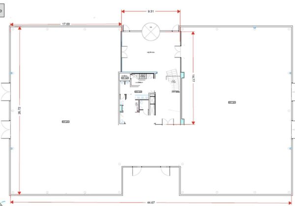
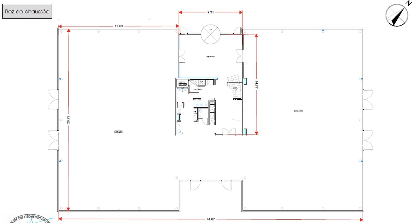
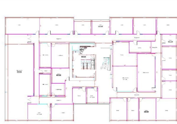
Répartition & surfaces des espaces
Tableau des divisibilités
| Type | Étage | Surface | Loyer (€/m²/an HT HC) |
Charges (€/m²/an HT HC) |
|---|---|---|---|---|
| Bureaux | Rez-de-Chaussée | 978 m² | 150.00 | 21.00 |
| Bureaux | 1er étage | 1 098 m² | 150.00 | 21.00 |
Performance énergétique du bien (DPE)


Informations non contractuelles
Localisation & accès
Transports en commun à proximité
SNCF gare de Parc-des-Expositions
640
39
350
349
Accès routier
A1 / A104 / A3
Adresses
approximatives
Adresses
précises
Nos nouveaux biens qui pourraient vous intéresser
Bureaux - 1 389m² Divisibles à partir de 156 m²
ROISSY EN FRANCE (95700)
ROISSY EN FRANCE (95700)
6 930.00€/mois HT HC
Disponibilité : Immédiate
Surface : divisibles à partir de 156 m²
Bureaux - 82m²
ROISSY EN FRANCE (95700)
ROISSY EN FRANCE (95700)
1 527.66€/mois HT HC
Disponibilité : Immédiate
Surface : 82 m²
Bureaux - 1 588m² Divisibles à partir de 144 m²
ROISSY EN FRANCE (95700)
ROISSY EN FRANCE (95700)
Prix sur demande
Disponibilité : Immédiate
Surface : divisibles à partir de 144 m²
Bureaux - 2 214m² Divisibles à partir de 549 m²
ROISSY EN FRANCE (95700)
ROISSY EN FRANCE (95700)
13 950.00€/mois HT HC
Disponibilité : Immédiate
Surface : divisibles à partir de 549 m²
Les entrepreneurs ayant consulté cette offre ont aussi consulté celles ci
Bureaux - 83.60m²
BUSSY SAINT GEORGES (77600)
BUSSY SAINT GEORGES (77600)
1 288.00€/mois HT HC
Disponibilité : Immédiate
Surface : 83.60 m²
Bureaux - 6 934m² Divisibles à partir de 173 m²
LYON (69009)
LYON (69009)
Prix sur demande
Disponibilité : Selon les lots – nous consulter
Surface : divisibles à partir de 173 m²