Retour
Bureaux et Activités - 686m² à Louer
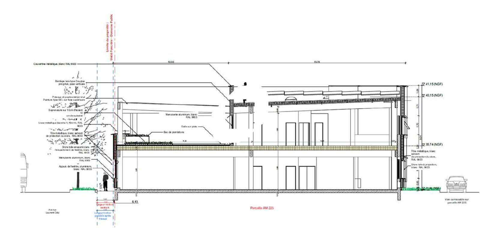
. Façade mur rideau
. Accès véhicules légers
. Accès poids lourds
. Aire de chargement
. Parties communes de qualité
. Chauffage par aérotherme gaz (activités)
. Fibre optique . Espace ouvert et lumineux
. Bureaux cloisonnés
. Belle hauteur sous plafond
. Faux plafonds
. Sol PVC
. Plinthes périphériques
. Chauffage bureaux : convecteurs électriques
. Climatisation réversible (selon lots)
. Sanitaires privatifs
Bureaux et Activités - 686m² à Louer
RUE LOUIS DE BROGLIE LE THILLAY (95500)
DESCRIPTION
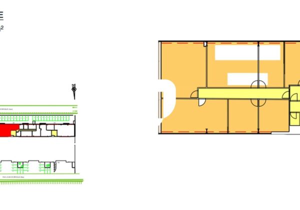
Situés dans la ZAC du THILLAY à proximité immédiate de l'aéroport de ROISSY-CDG et des autoroutes A1 et A3, Immprove vous propose à la location une cellule d’activités et des bureaux d’une surface totale de 686 m² divisibles à partir de 191 m². Le parc est clos avec accès poids lourds.
En savoir plus
. Immeuble récent. Façade mur rideau
. Accès véhicules légers
. Accès poids lourds
. Aire de chargement
. Parties communes de qualité
. Chauffage par aérotherme gaz (activités)
. Fibre optique . Espace ouvert et lumineux
. Bureaux cloisonnés
. Belle hauteur sous plafond
. Faux plafonds
. Sol PVC
. Plinthes périphériques
. Chauffage bureaux : convecteurs électriques
. Climatisation réversible (selon lots)
. Sanitaires privatifs
Consommations énergétiques


Informations non contractuelles
Tableau des divisibilités
| Type | Étage | Surface | Loyer (€/m²/an HT HC) |
Charges (€/m²/an HT HC) |
|---|---|---|---|---|
| Activités | 237 m² | 100.00 | 30.06 | |
| Bureaux | 1er étage | 191 m² | 80.00 | 30.06 |
| Bureaux | 1er étage | 258 m² | 80.00 | 30.06 |
Caractéristiques
- Surface 686 m²
- Etat des locaux Bon état
Les entrepreneurs ayant consulté cette offre ont aussi consulté celles ci
Les services Immprove
Une gamme complète de services qui facilitent vos démarches et destinée à satisfaire vos attentes