À Acheter Locaux d'Activités 1 971 m² TREMBLAY EN FRANCE (93290)
Présentation du bien
Prix & Conditions
Prestations & équipements du bien
Façade en bardage double peau
Bâtiment neuf
Pole de services et restauration sur site . Hall d'accueil carrelé
Open Space
Local technique
Sanitaires privatifs (PMR au rdc)
Faux plafonds
Eclairage Led
Carrelage dans la zone d’accueil
Locaux lumineux
Moquette dans l’espace bureau
Accès véhicules légers et poids lourds
2 Porte sectionnelle de plain-pied
Télésurveillance
Site clos
Chauffage électrique dans la bureaux
Charge au sol : 3 tonnes / m²
Hauteur libre au rdc : 4 mètres
Chauffage par aérotherme gaz dans la zone d’activités
Tarif jaune
Parking extérieurs de 23 places de stationnement
Performances énergétiques des infrastructures
Espaces verts paysagés
Plinthes techniques périphériques
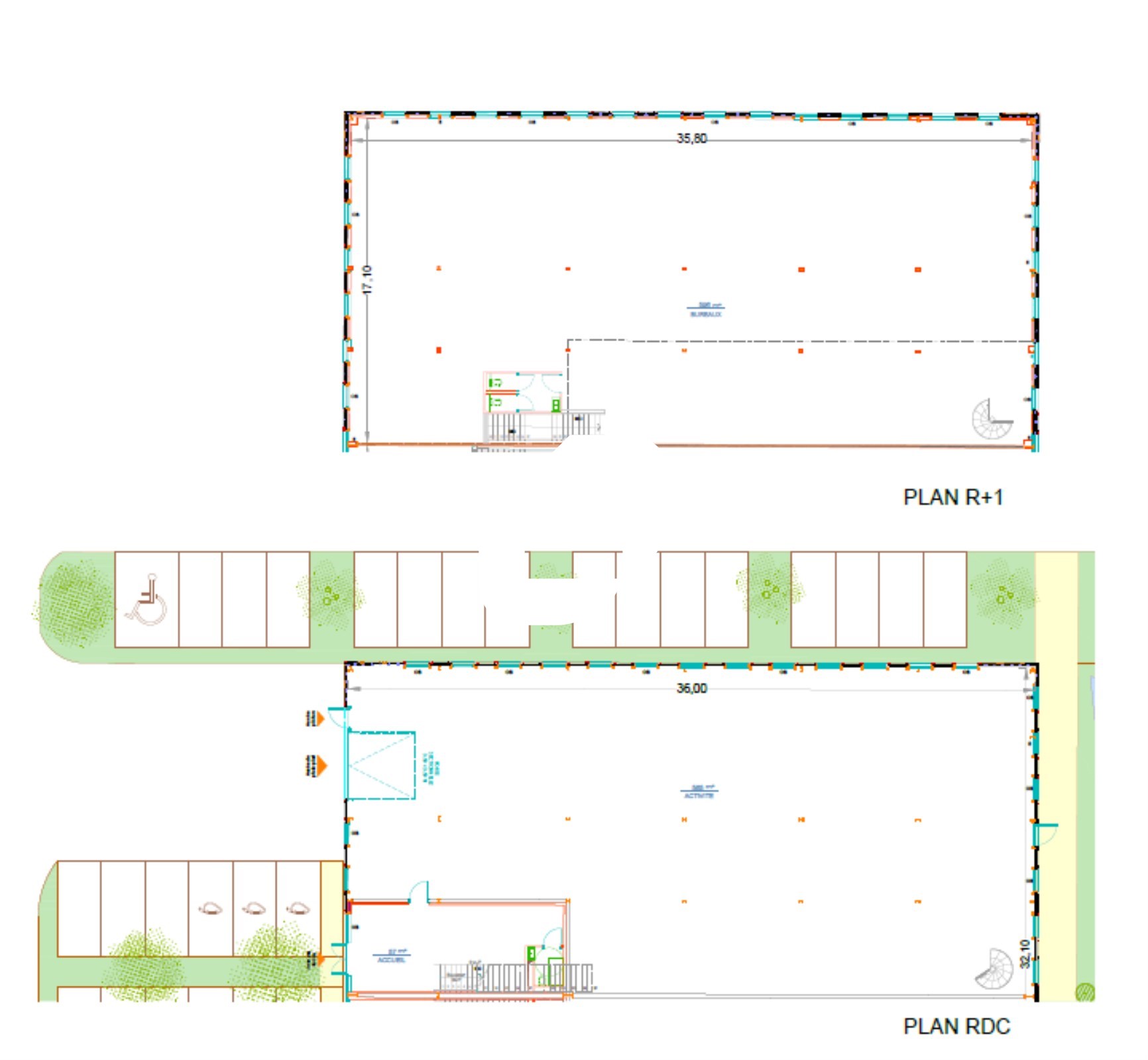
Répartition & surfaces des espaces
Tableau des divisibilités
| Type | Étage | Surface | Prix achat (€/m² HT HC) |
Charges (achat) (€/m² HT HC) |
|---|---|---|---|---|
| Activités | 1 971 m² | 1 600.00 | Prix sur demande |
Performance énergétique du bien (DPE)


Informations non contractuelles
Localisation & accès
Transports en commun à proximité
Liaison gare internationale TGV à 10 minutes en RER
Accès routier
E15 / A1 / A104 / A3 / RD40
Aéroport Charles de Gaule à 10 minutes
Adresses
approximatives
Adresses
précises
Nos nouveaux biens qui pourraient vous intéresser
TREMBLAY EN FRANCE (93290)
Les entrepreneurs ayant consulté cette offre ont aussi consulté celles ci
FLEURIEUX SUR L'ARBRESLE (69210)
CESTAS (33610)
SCHWEIGHOUSE SUR MODER (67590)
SCHWEIGHOUSE SUR MODER (67590)