Retour
Disponibilité Immédiate
À Acheter ou à Louer Locaux d'Activités 1 160 m² divisibles à partir de 380 m² 43 AVENUE PASTEUR GENTILLY (94250)
Ajouter au comparateur
Vous souhaitez faciliter votre recherche ?
Créez un compte
Présentation du bien
IMMPROVE vous propose une opportunité exceptionnelle d'acquérir ou de louer des locaux d'activités à Gentilly, offrant une superficie totale de 1 160 m², divisibles à partir de 380 m². Idéalement situés, ces espaces polyvalents offrent une grande flexibilité d'aménagement pour répondre aux besoins spécifiques de votre entreprise. Bénéficiant d'un emplacement stratégique, ces locaux offrent un accès facile aux principaux axes routiers et transports en commun, facilitant ainsi les échanges commerciaux. Ne manquez pas cette occasion unique de développer votre activité dans un environnement dynamique et en plein essor. Contactez IMMPROVE dès aujourd'hui pour plus d'informations et pour visiter ces locaux d'exception à Gentilly.
Surface totale
Nature
Divisibilité
Etat des locaux
1 160 m²
Locaux d'Activités
Oui à partir de 380 m²
Bon état
Prix & Conditions
Loyer :
130 € /m²/an (HT/HC)
4 116 € /mois (HT/HC)
49 400 € /an (HT/HC)
Divisibles à partir de 380 m²
Vente :
1 034 480 € (HD)
891.79 € /m² (HD)
Divisibles à partir de 380 m²
Impôt foncier :
15.24
Dépôt de garantie :
3 mois de loyer HT HC
Prestations & équipements du bien
Le bâtiment
Façade en bardage
Les espaces de travail
Travaux à prévoir
Les accès
Accès véhicules légers
Accès poids lourds
Accès PMR
Double accès privatif sur rue
Aire de manœuvre
Aire de chargement
Double accès
Portail d'accès
Autres
Bâtiment d'activité
Accès moyen porteur
Rampe d’accès
Accès sous poutre 3m
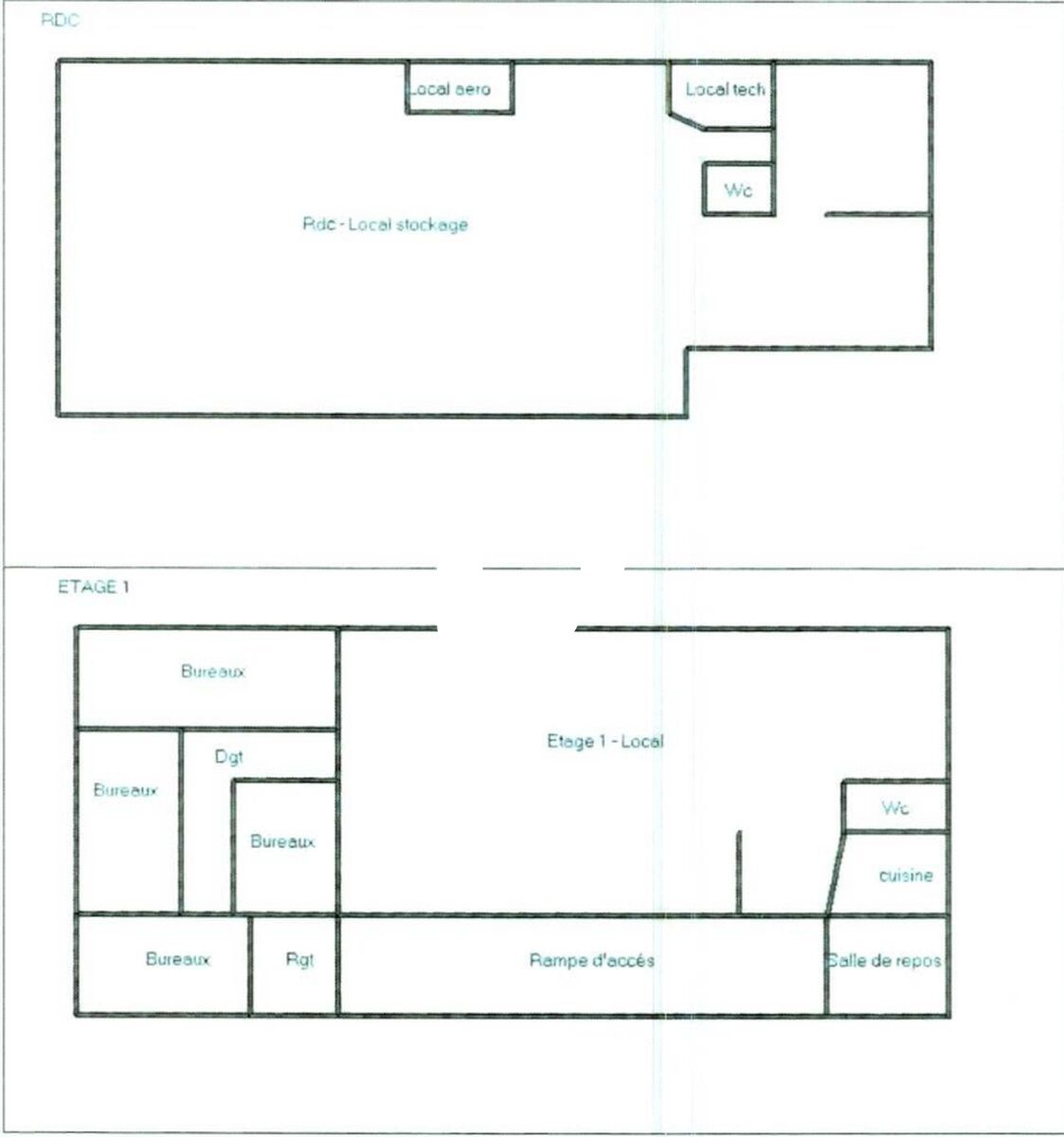
Répartition & surfaces des espaces
Tableau des divisibilités
| Type | Étage | Surface | Loyer (€/m²/an HT HC) |
Charges (€/m²/an HT HC) |
Prix achat (€/m² HT HC) |
Charges (achat) (€/m² HT HC) |
|---|---|---|---|---|---|---|
| Activités | Rez-de-Chaussée | 400 m² | 130.00 | Prix sur demande | 2 586.20 | Prix sur demande |
| Activités | 1er étage | 380 m² | 130.00 | Prix sur demande | 2 586.20 | Prix sur demande |
| Activités | 2ème étage | 380 m² | 130.00 | Prix sur demande | 2 586.20 | Prix sur demande |
Performance énergétique du bien (DPE)


Informations non contractuelles
Localisation & accès
Transports en commun à proximité
Gare TGV Montparnasse
184
57
Accès routier
Boulevard Périphérique: Porte de Gentilly
Nationale 20
A6/A10/A86
Adresses
approximatives
Adresses
précises
Nos nouveaux biens qui pourraient vous intéresser
Locaux d'Activités - 1 794m²
SAINT PRIEST (69800)
SAINT PRIEST (69800)
Prix sur demande
Disponibilité : Octobre 2027
Surface : 1 794 m²
Locaux d'Activités - 1 980m²
FLEURIEUX SUR L'ARBRESLE (69210)
FLEURIEUX SUR L'ARBRESLE (69210)
Prix sur demande
Disponibilité : Immédiate
Surface : 1 980 m²
Locaux d'Activités - 507.70m²
SCHWEIGHOUSE SUR MODER (67590)
SCHWEIGHOUSE SUR MODER (67590)
Prix sur demande
Disponibilité : Immédiate
Surface : 507.70 m²
Locaux d'Activités - 253.85m²
SCHWEIGHOUSE SUR MODER (67590)
SCHWEIGHOUSE SUR MODER (67590)
Prix sur demande
Disponibilité : Immédiate
Surface : 253.85 m²
Les entrepreneurs ayant consulté cette offre ont aussi consulté celles ci
Locaux d'Activités - 1 794m²
SAINT PRIEST (69800)
SAINT PRIEST (69800)
Prix sur demande
Disponibilité : Octobre 2027
Surface : 1 794 m²
Locaux d'Activités - 1 980m²
FLEURIEUX SUR L'ARBRESLE (69210)
FLEURIEUX SUR L'ARBRESLE (69210)
Prix sur demande
Disponibilité : Immédiate
Surface : 1 980 m²
Locaux d'Activités - 507.70m²
SCHWEIGHOUSE SUR MODER (67590)
SCHWEIGHOUSE SUR MODER (67590)
Prix sur demande
Disponibilité : Immédiate
Surface : 507.70 m²
Locaux d'Activités - 253.85m²
SCHWEIGHOUSE SUR MODER (67590)
SCHWEIGHOUSE SUR MODER (67590)
Prix sur demande
Disponibilité : Immédiate
Surface : 253.85 m²