Retour
Locaux d'Activités - 592m² à Louer
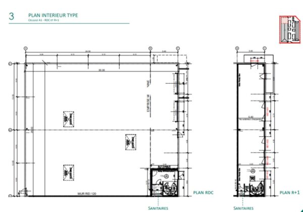
. Hauteur libre de 8m sous poutre
. Hauteur de 4.20m sous la mezzanine
. Compteur individuel électrique: Tarif jaune (54 Kva)
. Dallage béton surfacé quartz (charge de 3T/m²)
. Eclairage par luminaires LED, 250 lux
. Porte sectionnelle de plain-pied de 3,80m x 4m ht.
. Deux cellules avec accès pour porteur
. Chauffage par aérotherme gaz indépendant
. Plancher : 500kg/m2 au RDC et 350kg/m2 au R+1
BUREAUX :
. Faux plafond
. Eclairage en pavé lumineux
. Carrelage au RDC et revêtement PVC au R+1
. Système de chauffage et rafraîchissement VRV.
. Livrés en open space (non-cloisonnés)
. Bat A : 1 WC PMR mixte en RDC et 1 WC mixte en R+1
. Bat B : 1 WC PMR mixte en RDC
Locaux d'Activités - 592m² à Louer
SAINT OUEN L'AUMONE (95310)
DESCRIPTION
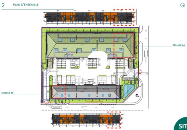
Au cœur du parc d’activité du vert galant à Saint Ouen l’Aumône IMMPORVE vous propose à la location une cellule qualitatives neuve aux dernières normes environnementales d'une surface de 592 m².
En savoir plus
ACTIVITE :. Hauteur libre de 8m sous poutre
. Hauteur de 4.20m sous la mezzanine
. Compteur individuel électrique: Tarif jaune (54 Kva)
. Dallage béton surfacé quartz (charge de 3T/m²)
. Eclairage par luminaires LED, 250 lux
. Porte sectionnelle de plain-pied de 3,80m x 4m ht.
. Deux cellules avec accès pour porteur
. Chauffage par aérotherme gaz indépendant
. Plancher : 500kg/m2 au RDC et 350kg/m2 au R+1
BUREAUX :
. Faux plafond
. Eclairage en pavé lumineux
. Carrelage au RDC et revêtement PVC au R+1
. Système de chauffage et rafraîchissement VRV.
. Livrés en open space (non-cloisonnés)
. Bat A : 1 WC PMR mixte en RDC et 1 WC mixte en R+1
. Bat B : 1 WC PMR mixte en RDC
Consommations énergétiques


Informations non contractuelles
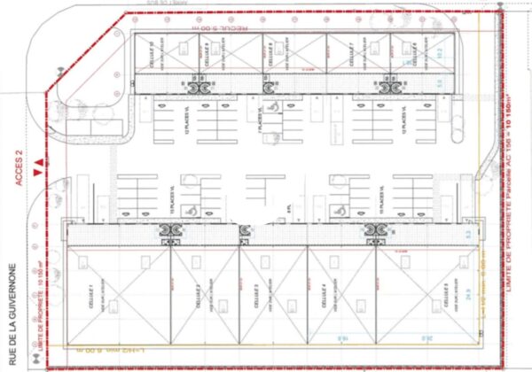
Tableau des divisibilités
| Type | Étage | Surface | Loyer (€/m²/an HT HC) |
Charges (€/m²/an HT HC) |
|---|---|---|---|---|
| Activités | 592 m² | 105.00 | 24.97 |
Caractéristiques
- Surface 592 m²
- Etat des locaux Neuf
Adresses
approximatives
Adresses
précises
Nos nouveaux biens qui pourraient vous intéresser
Locaux d'Activités - 7 950m² Divisibles à partir de 600 m²
à Louer
SAINT OUEN L'AUMONE (95310)
Voir le bien
5 000.00€/mois HT HC
Les entrepreneurs ayant consulté cette offre ont aussi consulté celles ci
Les services Immprove
Une gamme complète de services qui facilitent vos démarches et destinée à satisfaire vos attentes