Retour
Locaux d'Activités - 3 514m² à Louer
. Accès véhicules légers
. Accès poids lourds
. Accès PMR
. Accès privatif sur rue
. Aire de manœuvre
. Aire de chargement
. Portail d'accès
. Parties communes de qualité
. Site clos
. Chauffage immeuble gaz
. Air rafraichi
. Fibre optique
. R.I.E à proximité
. Cour privative
. Dalle béton brute
. Eclairage par projecteurs LED
. Deux locaux déchets en maçonnerie de
parpaings d’épaisseur.
. Espace ouvert
. Locaux lumineux
. Faux plafonds
. Moquette
. Système de télésurveillance
. Alarme
. Possibilité de normes E.R.P.
. Chauffage par l’intermédiaire du système
de chauffage et rafraîchissement de type
«VRV » à détente directe, 2 tubes type
DAIKIN ou équivalent.
. Mise en œuvre d’une VMC double flux
hygroréglable type ALDES ou équivalent
. Chauffage par aérotherme gaz
. Charge au sol : 3 tonnes / m²
. Hauteur libre : 8 m
. Porte sectionnelle de plain-pied
motorisée
. Dimensions porte : 4 (H) x4 (L) m
. Sanitaires privatifs
Locaux d'Activités - 3 514m² à Louer
OSNY (95520)
DESCRIPTION
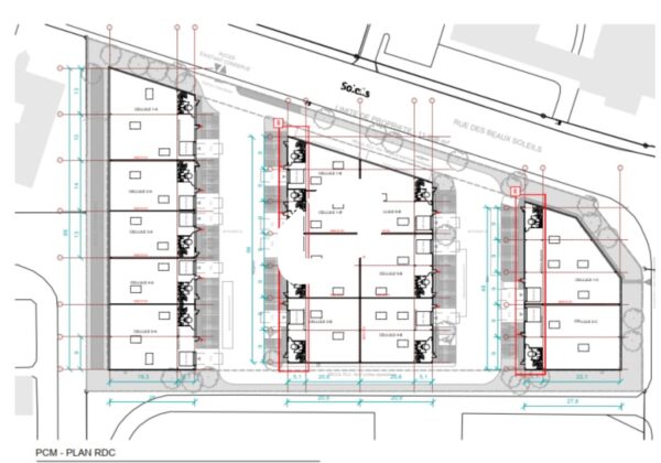
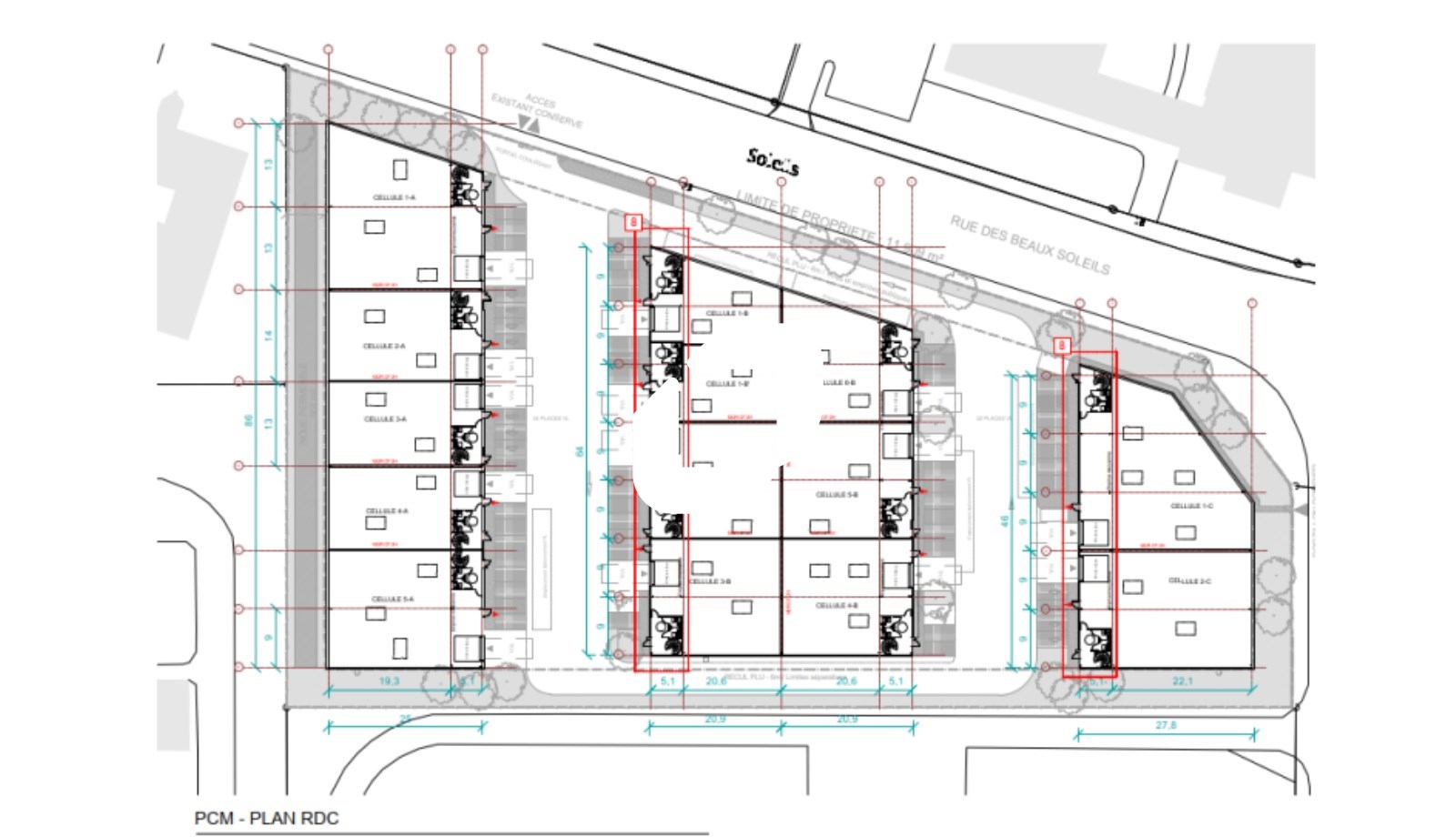
Au cœur de la zone d’activité des beaux soleils à Osny, Immprove est ravi de vous proposer plusieurs cellules d'activités neuves à partir de 314 m². Elles disposent également de bureaux séparés et de sanitaires privatifs. Situées dans une zone industrielle dynamique et bien desservie avec un accès direct à l'A15.
En savoir plus
. Façade mur rideau. Accès véhicules légers
. Accès poids lourds
. Accès PMR
. Accès privatif sur rue
. Aire de manœuvre
. Aire de chargement
. Portail d'accès
. Parties communes de qualité
. Site clos
. Chauffage immeuble gaz
. Air rafraichi
. Fibre optique
. R.I.E à proximité
. Cour privative
. Dalle béton brute
. Eclairage par projecteurs LED
. Deux locaux déchets en maçonnerie de
parpaings d’épaisseur.
. Espace ouvert
. Locaux lumineux
. Faux plafonds
. Moquette
. Système de télésurveillance
. Alarme
. Possibilité de normes E.R.P.
. Chauffage par l’intermédiaire du système
de chauffage et rafraîchissement de type
«VRV » à détente directe, 2 tubes type
DAIKIN ou équivalent.
. Mise en œuvre d’une VMC double flux
hygroréglable type ALDES ou équivalent
. Chauffage par aérotherme gaz
. Charge au sol : 3 tonnes / m²
. Hauteur libre : 8 m
. Porte sectionnelle de plain-pied
motorisée
. Dimensions porte : 4 (H) x4 (L) m
. Sanitaires privatifs
Consommations énergétiques


Informations non contractuelles
Tableau des divisibilités
| Type | Étage | Surface | Loyer (€/m²/an HT HC) |
Charges (€/m²/an HT HC) |
|---|---|---|---|---|
| Activités | 546 m² | 110.00 | 7.48 | |
| Activités | 419 m² | 110.00 | 7.48 | |
| Activités | 385 m² | 110.00 | 7.48 | |
| Activités | 314 m² | 110.00 | 7.48 | |
| Activités | 461 m² | 110.00 | 7.48 | |
| Activités | 464 m² | 110.00 | 7.48 | |
| Activités | 463 m² | 110.00 | 7.48 | |
| Activités | 462 m² | 110.00 | 7.48 |
Caractéristiques
Assurance : 1,35 € m²/an HT
- Surface 3 514 m²
- Etat des locaux Neuf
Adresses
approximatives
Adresses
précises
Les entrepreneurs ayant consulté cette offre ont aussi consulté celles ci
Les services Immprove
Une gamme complète de services qui facilitent vos démarches et destinée à satisfaire vos attentes