À Louer Locaux d'Activités 1 939 m² divisibles à partir de 1 457 m² ZAC DE MONTFRAY FAREINS (01480)
Présentation du bien
Prix & Conditions
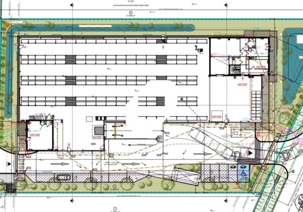
. Possibilité de diviser le bâtiment en deux : il peut être loué dans son intégralité ou uniquement dans sa partie sud, d’une superficie de 1 457 m²
Prestations & équipements du bien
Cuisine équipée
Climatisation réversible
Parcelle close, 2 portails pour sens unique
2 Portes sectionnelles, dont une à quai
Lot Sud tarif jaune : 119 KW
Lot Nord : tarif bleu
Chauffage par Aérothermes électriques
12 à 14 parkings VL
Entrée et sortie rendant les manœuvres PL simples
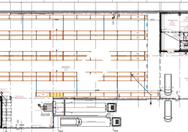
Bâtiment tout équipé en Rack
Toiture bac acier isolé laine de roche 240 mm (R=6,3 m².K/W)
Charpente métallique
Bardage Panneaux Sandwiches Mousse PE épaisseur 120mm
Dalle béton quartzé, charge 2t/m²
Hauteur Sous Faitage lot Sud : 9.32 m
Hauteur sous Jarret 7.53 m
Hauteur Sous Faitage lot Nord : 7.32 m
Hauteur sous IPN 6.16 m
Mezzanine sur plancher collaborant
Bureaux terminés cloisonnés
Répartition & surfaces des espaces
Tableau des divisibilités
| Type | Étage | Surface | Loyer (€/m²/an HT HC) |
Charges (€/m²/an HT HC) |
|---|---|---|---|---|
| Activités | 482 m² | 92.83 | Prix sur demande | |
| Activités | 1 457 m² | 92.83 | Prix sur demande |
Performance énergétique du bien (DPE)


Informations non contractuelles
Localisation & accès
Transports en commun à proximité
Gare TER de Villefranche à 10 min (liaison gare Part-Dieu)
Accès routier
A6, sortie Villefranche Sud à 7.5kms ( 14mn)
Adresses
approximatives
Adresses
précises
Nos nouveaux biens qui pourraient vous intéresser
BELLEVILLE EN BEAUJOLAIS (69220)
MARIGNANE (13700)
LES MUREAUX (78130)
VENDENHEIM (67550)
Les entrepreneurs ayant consulté cette offre ont aussi consulté celles ci
BELLEVILLE EN BEAUJOLAIS (69220)
LES MUREAUX (78130)
VENDENHEIM (67550)
VENDENHEIM (67550)