Retour
Disponibilité Immédiate
À Louer Locaux d'Activités 1 186 m² divisibles à partir de 520 m² REYRIEUX (01600)
Ajouter au comparateur
Vous souhaitez faciliter votre recherche ?
Créez un compte
Présentation du bien
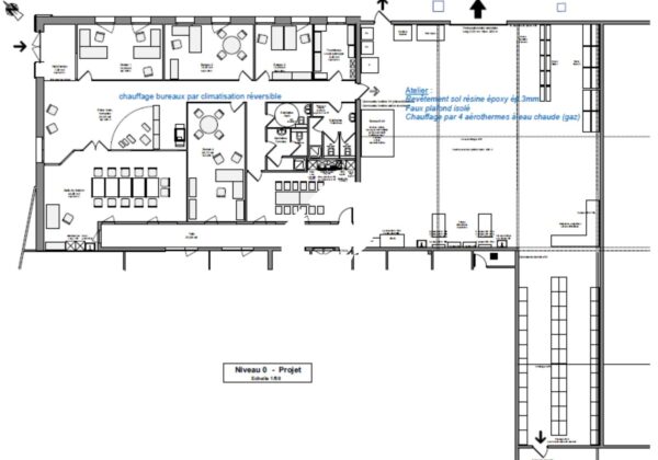
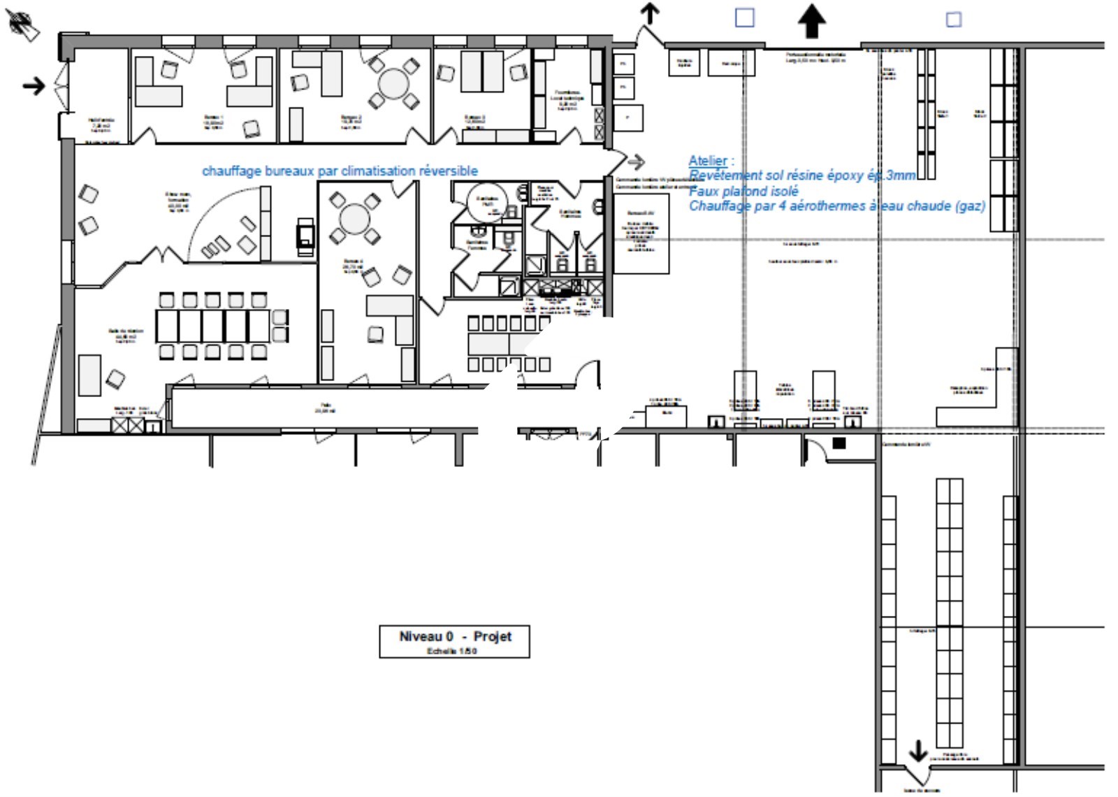
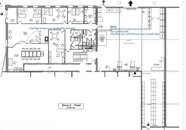
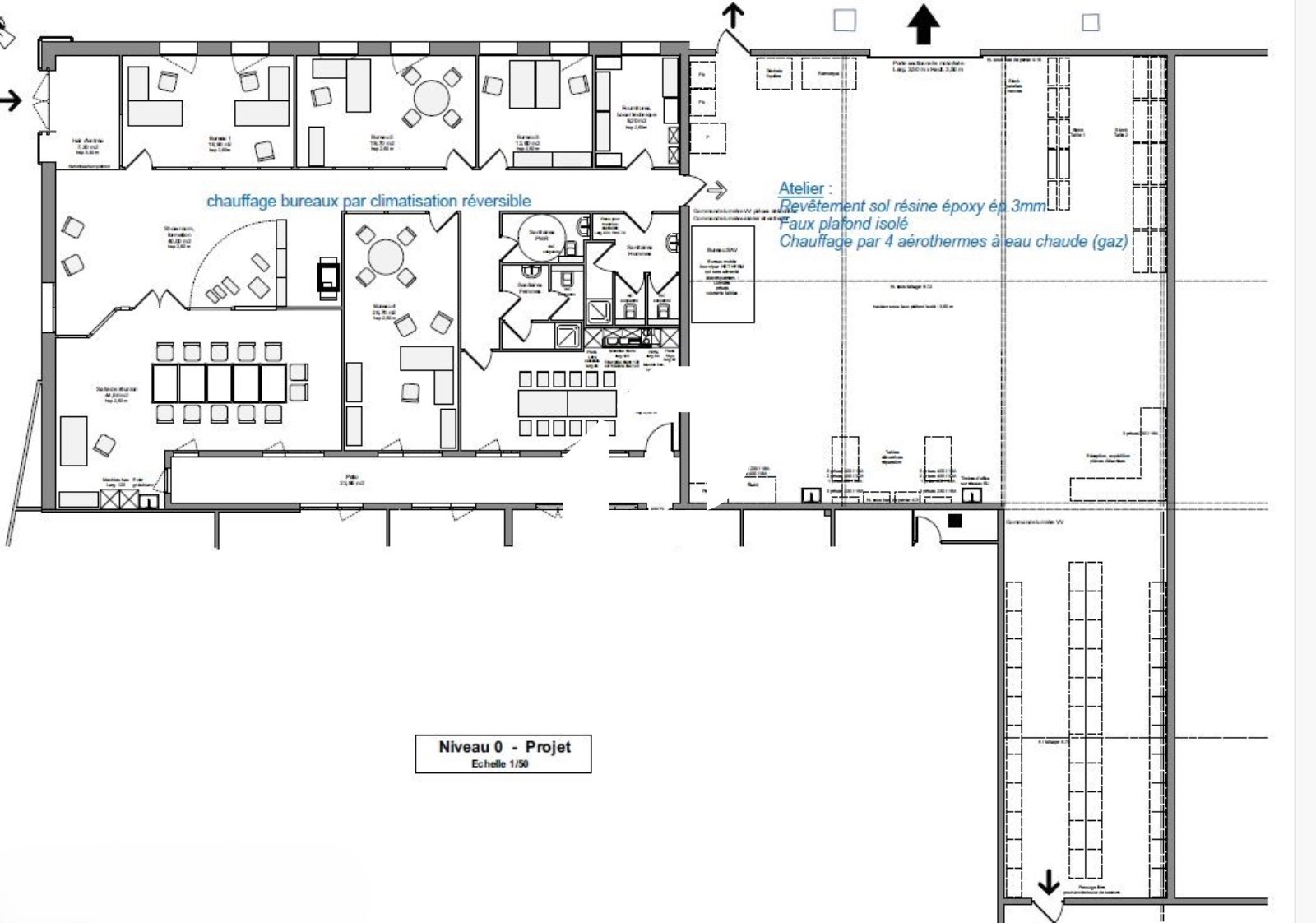
Immprove vous propose à la location sur la Zone Industrielle des communaux à Reyrieux, dans un bâtiment rénové, un lot d’activité et bureaux de 520 m² . Site qualitatif.
ACTIVITE NON AUTORISEE : Garage automobile/Alimentaire…etc.
Surface totale
Nature
Divisibilité
Etat des locaux
1 186 m²
Locaux d'Activités
Oui à partir de 520 m²
Bon état
Prix & Conditions
Loyer :
53 € /m²/an (HT/HC)
2 253 € /mois (HT/HC)
27 039 € /an (HT/HC)
Divisibles à partir de 520 m²
Frais de gestion :
Frais de dossier : 150€ HT
Dépôt de garantie :
3 mois de loyer HT HC
Conditions location :
Nombreux parkings extérieurs non attribués
Les charges comprennent : entretien et consommations des parties communes, eau
TAXE FONCIERE (2023) :
lot 1+2 : 2 550 / an
lot 7/8a : 3 200 / an
Les charges comprennent : entretien et consommations des parties communes, eau
TAXE FONCIERE (2023) :
lot 1+2 : 2 550 / an
lot 7/8a : 3 200 / an
Prestations & équipements du bien
Les espaces de travail
LOT 1+2 : Entièrement rénové en 2017
Faux plafond avec luminaires encastrés
Bureaux cloisonnés, vitrés
Faux plafonds
Eclairage led
Salle de repos avec cuisine
Le confort au quotidien
Sol souple ou carrelage
Climatisation réversible
Les accès
Site clos, portail avec horloge
Prestations spécifiques
Chauffage par 4 aérothermes gaz sur chaudière collective avec compteur individuel
Compteur Tarif jaune 48KVA
Autres
Charpente métallique,
Toiture bac acier isolé refaite en 2017
Bardage double peau
Hauteur sous plafond 4.2m
Dalle béton avec revêtement résine époxy 3mm
1 Sectionnelle 3.5 x 3.5m
Compteur d’eau individuel
Accès PL
Sanitaire PMR/femmes/hommes
Fibre
Nombreux parkings extérieurs non attribués
Les charges comprennent : entretien et consommations des parties communes, eau
TAXE FONCIERE (2023) :
lot 1+2 : 2 550 / an
lot 7/8a : 3 200 / an
Répartition & surfaces des espaces
Tableau des divisibilités
| Type | Étage | Surface | Loyer (€/m²/an HT HC) |
Charges (€/m²/an HT HC) |
|---|---|---|---|---|
| Activités | 666 m² | 52.55 | Prix sur demande | |
| Activités | 520 m² | 100.00 | 3 000.00 |
Performance énergétique du bien (DPE)


Informations non contractuelles
Localisation & accès
Transports en commun à proximité
à Haut de Niveau de Service prévu pour 2026 sur ancienne ligne SNCF : Trévoux - Part-Dieu
Accès routier
Accès A46 à 10mn : Sortie 2 Trévoux
Adresses
approximatives
Adresses
précises
Nos nouveaux biens qui pourraient vous intéresser
Locaux d'Activités - 4 000m² Divisibles à partir de 2 000 m²
REYRIEUX (01600)
REYRIEUX (01600)
12 000.00€/mois HT HC
Disponibilité : Immédiate
Surface : divisibles à partir de 2 000 m²
Les entrepreneurs ayant consulté cette offre ont aussi consulté celles ci
Locaux d'Activités - 6 200m²
BELLEVILLE EN BEAUJOLAIS (69220)
BELLEVILLE EN BEAUJOLAIS (69220)
40 000.33€/mois HT HC
Disponibilité : 2ème trimestre 2027
Surface : 6 200 m²
Locaux d'Activités - 8 095m² Divisibles à partir de 1 970 m²
LES MUREAUX (78130)
LES MUREAUX (78130)
19 700.00€/mois HT HC
Disponibilité : Immédiate
Surface : divisibles à partir de 1 970 m²
Locaux d'Activités - 177m²
VENDENHEIM (67550)
VENDENHEIM (67550)
1 100.06€/mois HT HC
Disponibilité : 1er aout 2026
Surface : 177 m²
Locaux d'Activités - 296m²
VENDENHEIM (67550)
VENDENHEIM (67550)
1 799.93€/mois HT HC
Disponibilité : Juin 2026
Surface : 296 m²