Retour
Disponibilité Immédiate
À Louer Locaux d'Activités 515 m² PARC DE FETAN 323 ALLEE DE FETAN TREVOUX (01600)
Ajouter au comparateur
Vous souhaitez faciliter votre recherche ?
Créez un compte
Présentation du bien
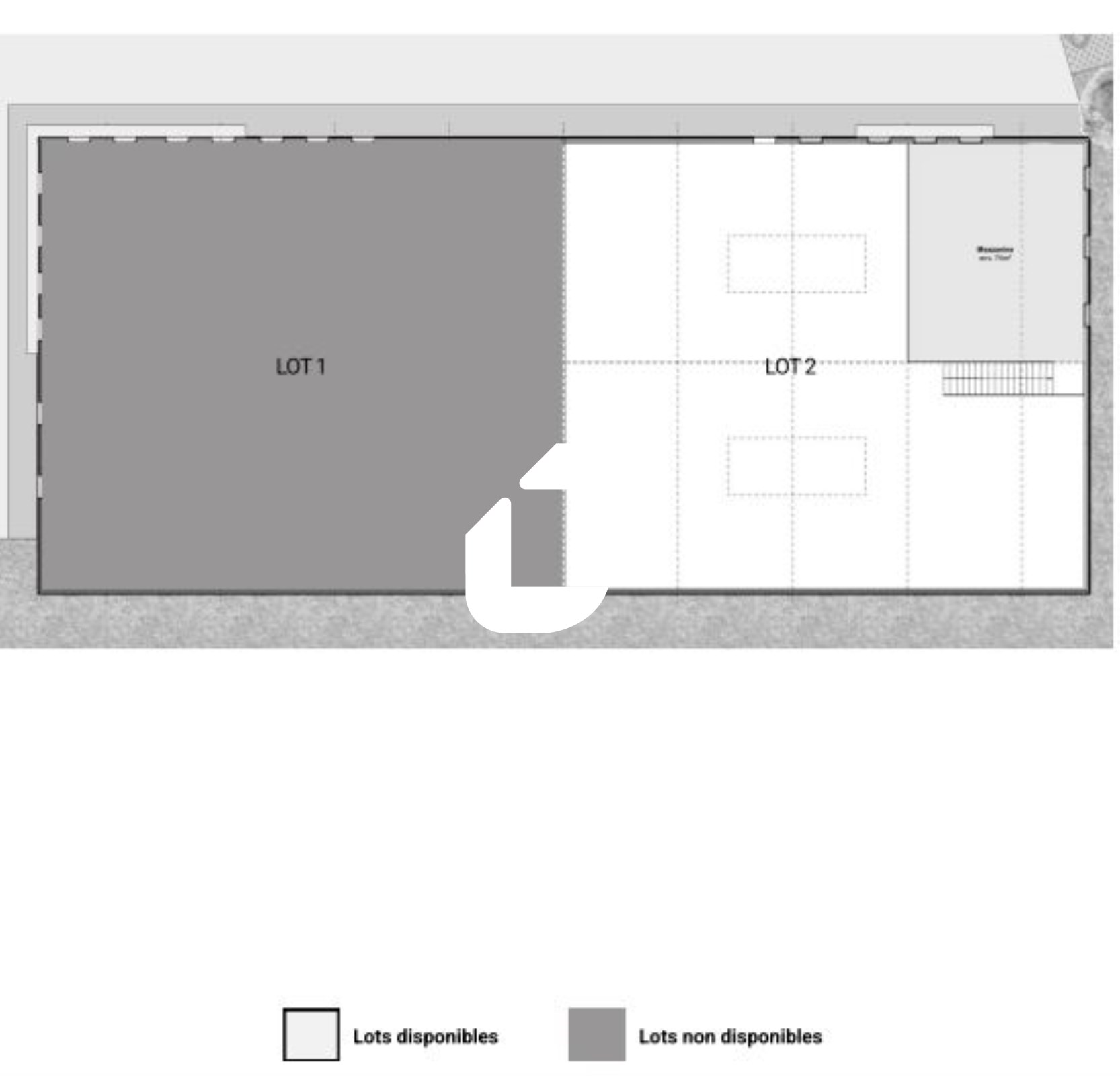
Immprove vous propose, à la location, à 2 kms du centre de Trévoux et 10 mn de l’A6, dans la zone industrielle de Fétan, sur un site clos, un lot d’activité de 513m², dont 70 m² de mezzanine m² aménageable en bureaux. Idéal artisan ou petite industrie.
Surface totale
Nature
Divisibilité
Etat des locaux
515 m²
Locaux d'Activités
Non
Bon état
Prix & Conditions
Loyer :
101 € /m²/an (HT/HC)
4 291 € /mois (HT/HC)
51 500 € /an (HT/HC)
Dépôt de garantie :
3 mois de loyer HT HC
Conditions location :
Parkings extérieurs
Prestations & équipements du bien
Les espaces de travail
• Eclairage LED en façade
Les accès
• Porte sectionnelle 4 m x 4,5 m ht
• Site clos avec portail automatique
Prestations spécifiques
• Hauteur libre sous poutre : 6 mètres
• Dalle béton quartze (charge au sol RDC :
• Puissance électrique : 36 kVA
Autres
• Charpente métallique
Couverture bac acier isolé
, Bardage double peau
2T/m2)
• Murs séparatifs coupe-feu 1h
• Eclairage zénithal
• Mezzanine non aménagée (charge
250kg/m2)
• Livraison fluides en attente
• Menuiseries alu (vitrage retardateur
d'effraction en RDC)
• Fibre
Parkings extérieurs
Répartition & surfaces des espaces
Tableau des divisibilités
| Type | Étage | Surface | Loyer (€/m²/an HT HC) |
Charges (€/m²/an HT HC) |
|---|---|---|---|---|
| Activités | 515 m² | 100.97 | 4.00 |
Performance énergétique du bien (DPE)


Informations non contractuelles
Localisation & accès
Accès routier
A 6 (10 mn)
Adresses
approximatives
Adresses
précises
Nos nouveaux biens qui pourraient vous intéresser
Locaux d'Activités - 400m²
TREVOUX (01600)
TREVOUX (01600)
2 387.67€/mois HT HC
Disponibilité : A convenir
Surface : 400 m²
Les entrepreneurs ayant consulté cette offre ont aussi consulté celles ci
Locaux d'Activités - 6 200m²
BELLEVILLE EN BEAUJOLAIS (69220)
BELLEVILLE EN BEAUJOLAIS (69220)
40 000.33€/mois HT HC
Disponibilité : 2ème trimestre 2027
Surface : 6 200 m²
Locaux d'Activités - 8 095m² Divisibles à partir de 1 970 m²
LES MUREAUX (78130)
LES MUREAUX (78130)
19 700.00€/mois HT HC
Disponibilité : Immédiate
Surface : divisibles à partir de 1 970 m²
Locaux d'Activités - 177m²
VENDENHEIM (67550)
VENDENHEIM (67550)
1 100.06€/mois HT HC
Disponibilité : 1er aout 2026
Surface : 177 m²
Locaux d'Activités - 296m²
VENDENHEIM (67550)
VENDENHEIM (67550)
1 799.93€/mois HT HC
Disponibilité : Juin 2026
Surface : 296 m²