À Louer Locaux d'Activités 979 m² divisibles à partir de 227 m² RUE DENIS MENAGER EPERNON (28230)
Présentation du bien
Prix & Conditions
Prestations & équipements du bien
Aménagement en espace ouvert
Faux plafonds, sol PVC
Accueil en RDC avec sanitaire PMR et chauffe-eau électrique
Accès véhicules légers et poids lourds
Portail motorisé, digicode Zone activité en rez-de-chaussée :
Porte sectionnelle H3xL3.5 m
Charge au sol : 3 tonnes/ m²
Chauffage par aérothermes électriques
Chauffage par convecteurs électriques
Ventilation double-flux bureaux et sanitaire
Alimentation électrique : tarif bleu - 36 Kva
3 parkings extérieurs par cellule
Fondations isolées sous poteaux de structure
Bardage double peau
Dallage en béton quartzé
Charpente métallique
Hauteur sous poutres : 6.5 m
Zone Bureaux en mezzanine :
Arrivé d’eau et évacuation
Sanitaire privatif
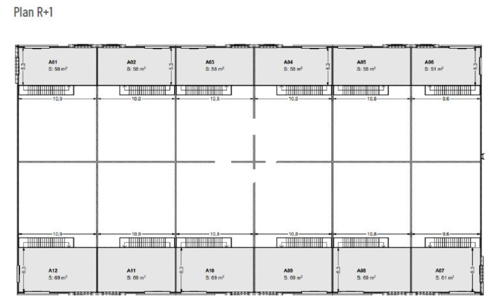
Répartition & surfaces des espaces
Tableau des divisibilités
| Type | Étage | Surface | Loyer (€/m²/an HT HC) |
Charges (€/m²/an HT HC) |
|---|---|---|---|---|
| Activités | 227 m² | 82.00 | 12.70 | |
| Activités | 227 m² | 82.00 | 12.70 | |
| Activités | 262 m² | 82.00 | 12.70 | |
| Activités | 263 m² | 82.00 | 12.70 |
Performance énergétique du bien (DPE)


Informations non contractuelles
Localisation & accès
Transports en commun à proximité
Gare à 2.5km, 45 min de Paris Montparnasse
Accès routier
Autoroute A11, à 15min
Adresses
approximatives
Adresses
précises
Nos nouveaux biens qui pourraient vous intéresser
BELLEVILLE EN BEAUJOLAIS (69220)
MARIGNANE (13700)
LES MUREAUX (78130)
VENDENHEIM (67550)
Les entrepreneurs ayant consulté cette offre ont aussi consulté celles ci
BELLEVILLE EN BEAUJOLAIS (69220)
LES MUREAUX (78130)
VENDENHEIM (67550)
VENDENHEIM (67550)