À Louer Locaux d'Activités 1 466 m² divisibles à partir de 274 m² VEELLAGE 6 RUE DE BRETAGNE SAINT QUENTIN FALLAVIER (38070)
Présentation du bien
Prix & Conditions
Prestations & équipements du bien
Chauffage et climatisation réversible des
Porte sectionnelle isolée motorisée
Tarif bleu
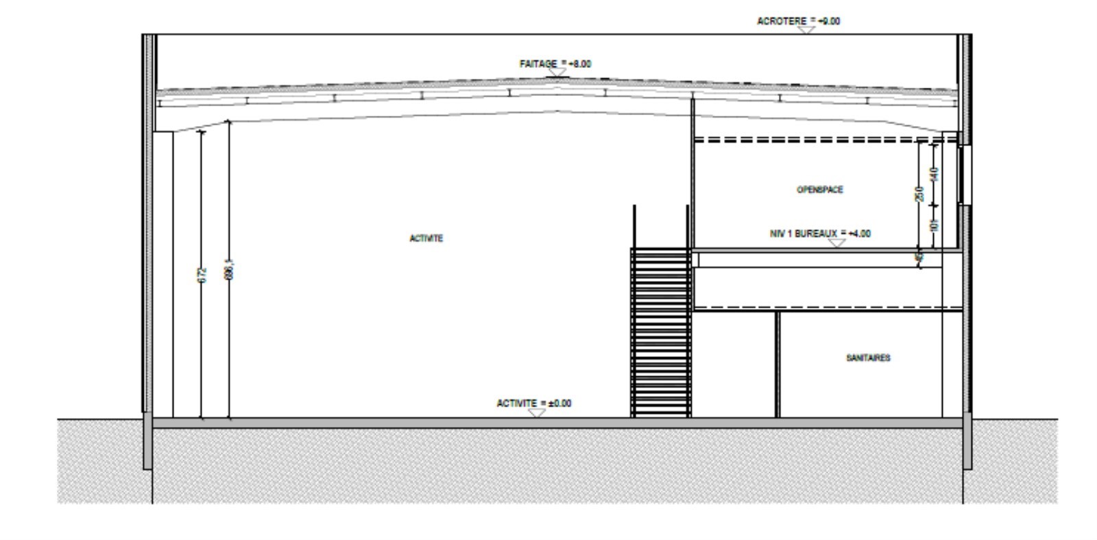
Charge au sol mezzanine : 350 kg / m²
Charpente métallique de toiture
Ossature métallique de façades
Bardage double peau
Dimensions : 3.50 x 3.50 mètres
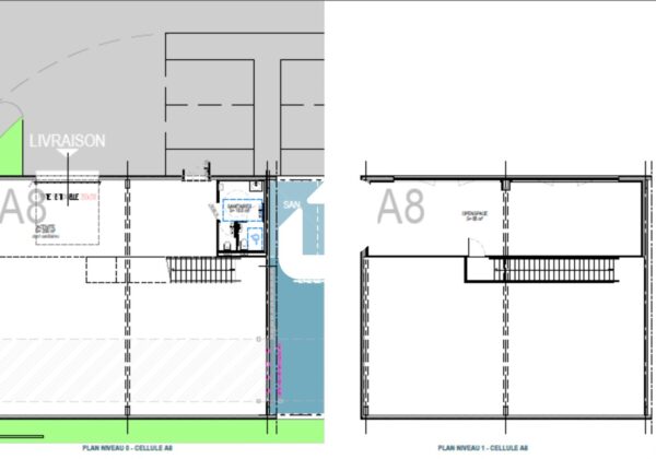
rdc activité et mezzanine activité, bloc
sanitaire, escalier mezzanine et mur séparatif
inclus
Aménagé = bureau mezzanine aménagé,
bloc sanitaire, escalier et mur séparatif inclus
Surcharge d’exploitation admissible de 500
kg/m² au RDC des bureaux
Surcharge d’exploitation admissible de 2
tonnes /m² pour l’activité
Hauteur sous poutre Rdc : 6,5 mètres
Alarme incendie
bureaux
Norme RT 2012
Vitrage anti-effraction PA5
Affaiblissement acoustique des menuiseries
Lanterneau de désenfumage
Mezzanines pouvant être aménagées en
bureaux
Répartition & surfaces des espaces
Tableau des divisibilités
| Type | Étage | Surface | Loyer (€/m²/an HT HC) |
Charges (€/m²/an HT HC) |
|---|---|---|---|---|
| Activités | 298 m² | 89.91 | 12.00 | |
| Activités | 298 m² | 89.91 | 12.00 | |
| Activités | 298 m² | 89.91 | 12.00 | |
| Activités | 298 m² | 86.55 | 12.00 | |
| Activités | 274 m² | 101.10 | 12.00 |
Performance énergétique du bien (DPE)


Informations non contractuelles
Localisation & accès
Accès routier
A43 / A432
Adresses
approximatives
Adresses
précises
Nos nouveaux biens qui pourraient vous intéresser
SAINT QUENTIN FALLAVIER (38070)
Les entrepreneurs ayant consulté cette offre ont aussi consulté celles ci
SCHWEIGHOUSE SUR MODER (67590)
SCHILTIGHEIM (67300)
SCHWEIGHOUSE SUR MODER (67590)
SAINT HERBLAIN (44800)