Retour
Disponibilité 1er avril 2026
À Louer Locaux d'Activités 402 m² 17 RUE DES FRERES LUMIERE ECKBOLSHEIM (67201)
Ajouter au comparateur
Vous souhaitez faciliter votre recherche ?
Créez un compte
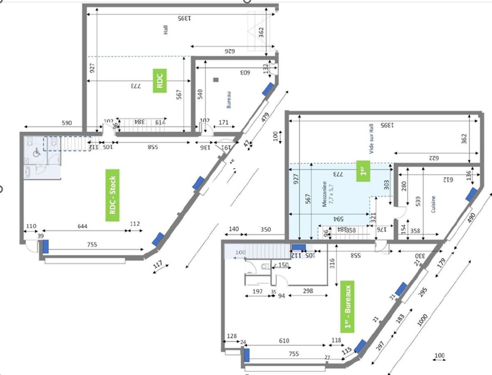
Présentation du bien
IMMPROVE vous propose à la location, au sein de la zone d’activité d’Eckbolsheim, un local d’activité bénéficiant d’une belle visibilité depuis la nouvelle ligne de tram. Le rez-de-chaussée permet la création d’un showroom d’environ 100 m². De nombreux stationnements complètent cette offre.
Surface totale
Nature
Divisibilité
Etat des locaux
402 m²
Locaux d'Activités
Non
Bon état
Prix & Conditions
Loyer :
89 € /m²/an (HT/HC)
2 948 € /mois (HT/HC)
35 376 € /an (HT/HC)
Impôt foncier :
19.40
Dépôt de garantie :
3 mois de loyer HT HC
Prestations & équipements du bien
Les espaces de travail
Eclairage LED
Faux plafond avec dalle LED
1 cuisine
Le confort au quotidien
Sol Parquet PVC
Les accès
1 porte sectionnelle 3x3,5m
Autres
Ossature métallique
Toiture bac acier isolée
Murs bardage double peau
Sol béton
2 portes piéton
Bureaux cloisonnées
Sanitaires
Répartition & surfaces des espaces
Tableau des divisibilités
| Type | Étage | Surface | Loyer (€/m²/an HT HC) |
Charges (€/m²/an HT HC) |
|---|---|---|---|---|
| Activités | 402 m² | 88.96 | 13.43 |
Performance énergétique du bien (DPE)


Informations non contractuelles
Localisation & accès
Transports en commun à proximité
Ligne 70 - Arrêts "Jean Perrin" ou "Bugatti" ou "Eckbolsheim Parc d'Activités
Accès routier
A351 - Sortie 4 "Centre commercial"
Ligne D ou F - Arrêt "Poterie"
Adresses
approximatives
Adresses
précises
Nos nouveaux biens qui pourraient vous intéresser
Locaux d'Activités - 150m²
ECKBOLSHEIM (67201)
ECKBOLSHEIM (67201)
1 505.00€/mois HT HC
Disponibilité : Immédiate
Surface : 150 m²
Locaux d'Activités - 165m²
ECKBOLSHEIM (67201)
ECKBOLSHEIM (67201)
1 608.20€/mois HT HC
Disponibilité : 1er mai 2026
Surface : 165 m²
Locaux d'Activités - 958m²
ECKBOLSHEIM (67201)
ECKBOLSHEIM (67201)
4 949.67€/mois HT HC
Disponibilité : Immédiate
Surface : 958 m²
Locaux d'Activités - 258m²
ECKBOLSHEIM (67201)
ECKBOLSHEIM (67201)
1 799.98€/mois HT HC
Disponibilité : Immédiate
Surface : 258 m²
Les entrepreneurs ayant consulté cette offre ont aussi consulté celles ci
Locaux d'Activités - 172m²
MARTILLAC (33650)
MARTILLAC (33650)
1 900.03€/mois HT HC
Disponibilité : Immédiate
Surface : 172 m²
Locaux d'Activités - 1 940m² Divisibles à partir de 403 m²
MEYZIEU (69330)
MEYZIEU (69330)
12 249.89€/mois HT HC
Disponibilité : Selon les lots
Surface : divisibles à partir de 403 m²
Locaux d'Activités - 5 112m² Divisibles à partir de 150 m²
BERNOLSHEIM (67170)
BERNOLSHEIM (67170)
2 918.70€/mois HT HC
Disponibilité : Novembre 2026
Surface : divisibles à partir de 150 m²
Locaux d'Activités - 154m²
SAINT HERBLAIN (44800)
SAINT HERBLAIN (44800)
1 600.06€/mois HT HC
Disponibilité : 1er juin 2026
Surface : 154 m²