Retour
Disponibilité Immédiate
À Louer Locaux d'Activités 108.50 m² 13 RUE DU CHEMIN DE FER LAMPERTHEIM (67450)
Ajouter au comparateur
Vous souhaitez faciliter votre recherche ?
Créez un compte
Présentation du bien
IMMPROVE vous propose à la location des locaux d’activité de 108 m² récent et en bon état, idéalement situés à Lampertheim, à proximité immédiate de la zone commerciale de Mundolsheim. Cette surface de locaux professionnels offre un cadre fonctionnel avec 2 places de stationnement, parfaitement adapté à une activité artisanale ou de stockage. Bénéficiant d’un accès rapide aux axes autoroutiers, ce bien en immobilier d’entreprise allie praticité et accessibilité.
Surface totale
Nature
Divisibilité
Etat des locaux
108.50 m²
Locaux d'Activités
Non
Bon état
Prix & Conditions
Loyer :
127 € /m²/an (HT/HC)
1 153 € /mois (HT/HC)
13 843 € /an (HT/HC)
Impôt foncier :
650.00
Dépôt de garantie :
3 mois de loyer HT HC
Prestations & équipements du bien
Les espaces de travail
Eclairages Leds
2 Bureaux cloisonnés sur mezzanine
Faux plafonds avec spots encastrés
Le confort au quotidien
Sol carrelage
Prestations spécifiques
Hauteur libre : 6 m environ
Chauffage électrique
Autres
Ossature métallique
Toiture bac acier isolée
Murs bardage double peau
Sol béton
Murs peints
1 douche
1 sanitaires en RDC
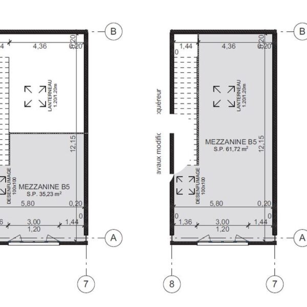
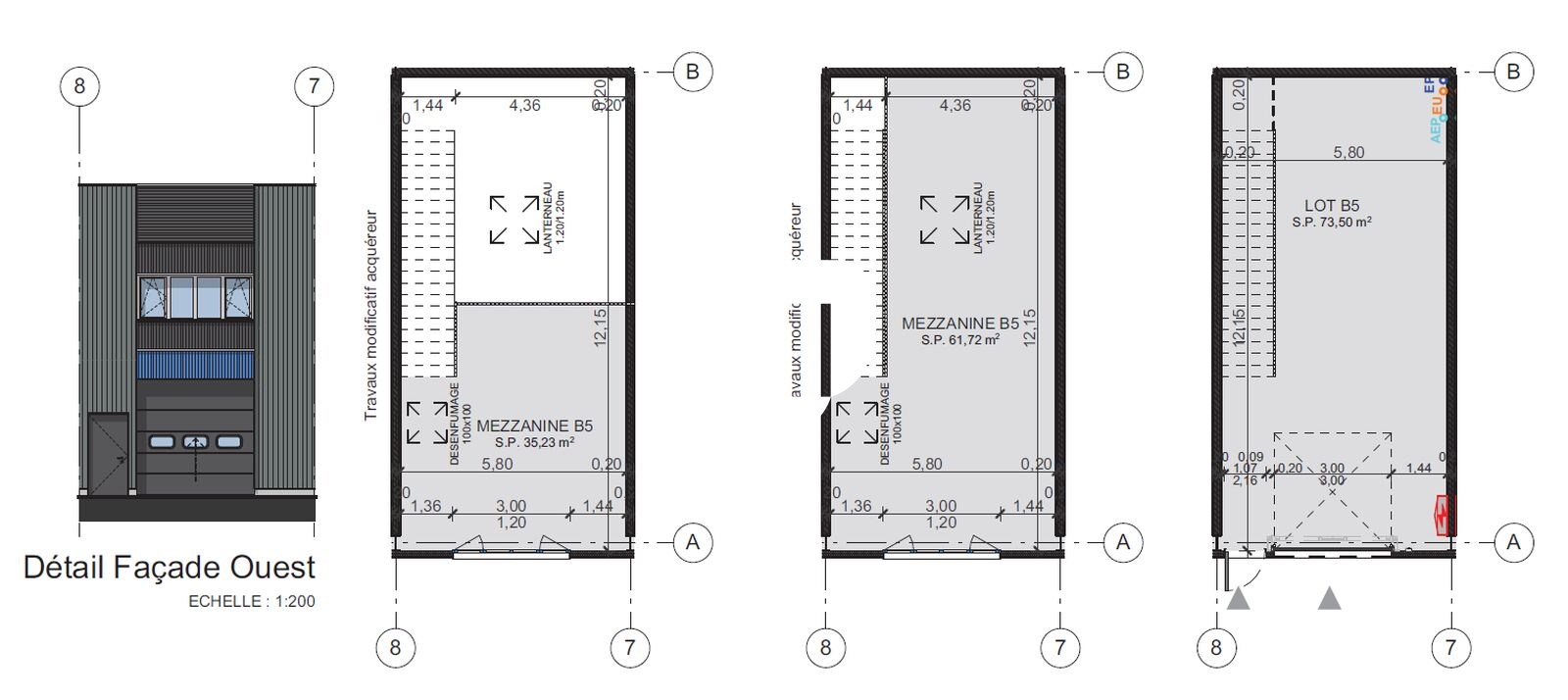
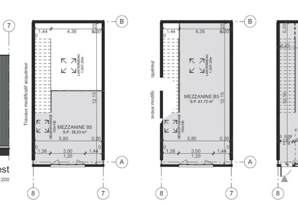
Répartition & surfaces des espaces
Tableau des divisibilités
| Type | Étage | Surface | Loyer (€/m²/an HT HC) |
Charges (€/m²/an HT HC) |
|---|---|---|---|---|
| Activités | 109 m² | 127.19 | 1 200.00 |
Performance énergétique du bien (DPE)


Informations non contractuelles
Localisation & accès
Adresses
approximatives
Adresses
précises
Nos nouveaux biens qui pourraient vous intéresser
Locaux d'Activités - 220m²
TREILLIERES (44119)
TREILLIERES (44119)
1 558.33€/mois HT HC
Disponibilité : 1er janvier 2027
Surface : 220 m²
Locaux d'Activités - 200m²
ROUBAIX (59100)
ROUBAIX (59100)
900.00€/mois HT HC
Disponibilité : Immédiate
Surface : 200 m²
Locaux d'Activités - 288m²
SAINT JEAN DE VEDAS (34430)
SAINT JEAN DE VEDAS (34430)
2 448.00€/mois HT HC
Disponibilité : Immédiate
Surface : 288 m²
Locaux d'Activités - 110.82m²
SAINT GEORGES D'ORQUES (34680)
SAINT GEORGES D'ORQUES (34680)
1 017.50€/mois HT HC
Disponibilité : 8 mai 2026
Surface : 110.82 m²
Les entrepreneurs ayant consulté cette offre ont aussi consulté celles ci
Locaux d'Activités - 220m²
TREILLIERES (44119)
TREILLIERES (44119)
1 558.33€/mois HT HC
Disponibilité : 1er janvier 2027
Surface : 220 m²
Locaux d'Activités - 200m²
ROUBAIX (59100)
ROUBAIX (59100)
900.00€/mois HT HC
Disponibilité : Immédiate
Surface : 200 m²
Locaux d'Activités - 288m²
SAINT JEAN DE VEDAS (34430)
SAINT JEAN DE VEDAS (34430)
2 448.00€/mois HT HC
Disponibilité : Immédiate
Surface : 288 m²
Locaux d'Activités - 110.82m²
SAINT GEORGES D'ORQUES (34680)
SAINT GEORGES D'ORQUES (34680)
1 017.50€/mois HT HC
Disponibilité : 8 mai 2026
Surface : 110.82 m²