Retour
Locaux d'Activités - 6 426m² à Louer
. Labellisé HQE
. Stationnements VL perméables
. Site clôturé
. Terrasse en R+1
. Parc paysagé arboré
. Restaurant
. Eau potable: Distribution commune avec compteur privatif
. Électricité: Distribution par compteur privatif
. Internet: Raccordement fibre . Labellisé HQE
. Voirie lourde pour les aires de manœuvre.
. Stationnements VL perméables
. Site clôturé
. Terrasse en R+1
. Parc paysagé arboré
. Restaurant
. Eau potable: Distribution commune avec compteur privatif
. Électricité: Distribution par compteur privatif
. Raccordement fibre
- ACTIVITES -
. Hauteurs libres: 7,50 m libre
. Hauteur libre sous mezzanine : 4,70 m
. Sol surcharge: Dallage industriel béton 3T/m²
. Façades: Bardage Béton
. Structure, charpente: Structure métallique
. Toiture: Multicouches sur bac acier
. Portes de plain-pied: Portes de 3,90 x 3,90 m
. Eclairage: Luminaires industriels LED
. Chauffage : Aérothermes électriques
- BUREAUX -
. Hauteurs sous faux plafond: 2,70 m libre
. Sols: moquette et carrelage
. Sanitaires: Sol carrelage et revêtement mural en faïence toute hauteur
. Chauffage: Climatisation par système réversible de type VRV
Locaux d'Activités - 6 426m² à Louer
ECOPARC DU GRIFFON - RUE PAUL BERT DECINES CHARPIEU (69150)
DESCRIPTION
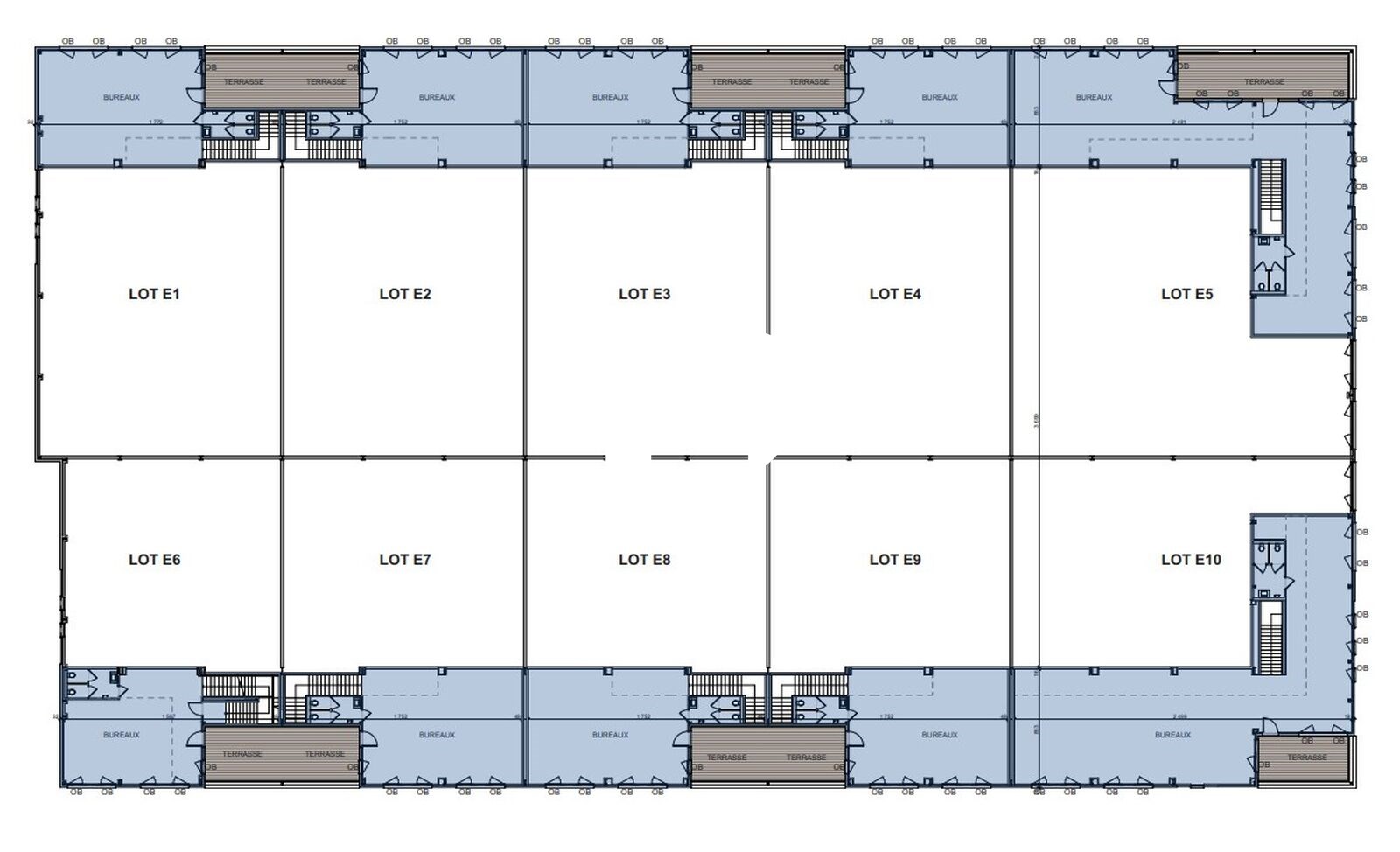
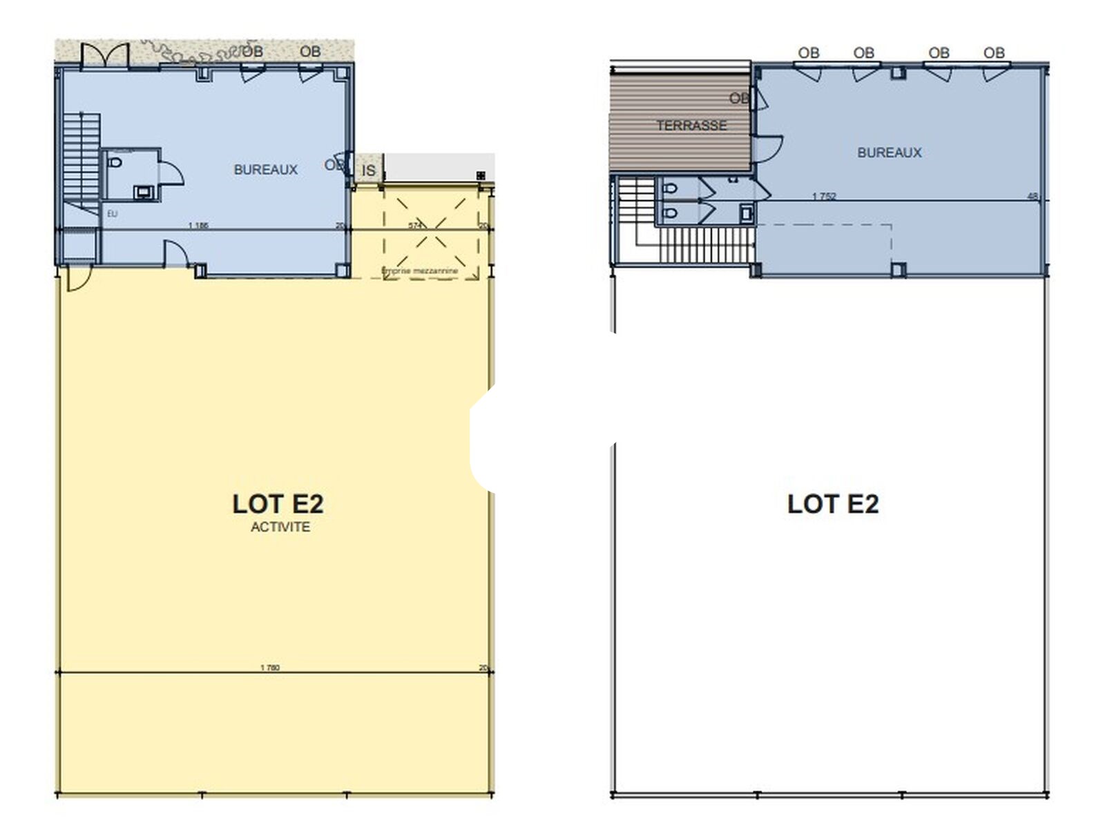
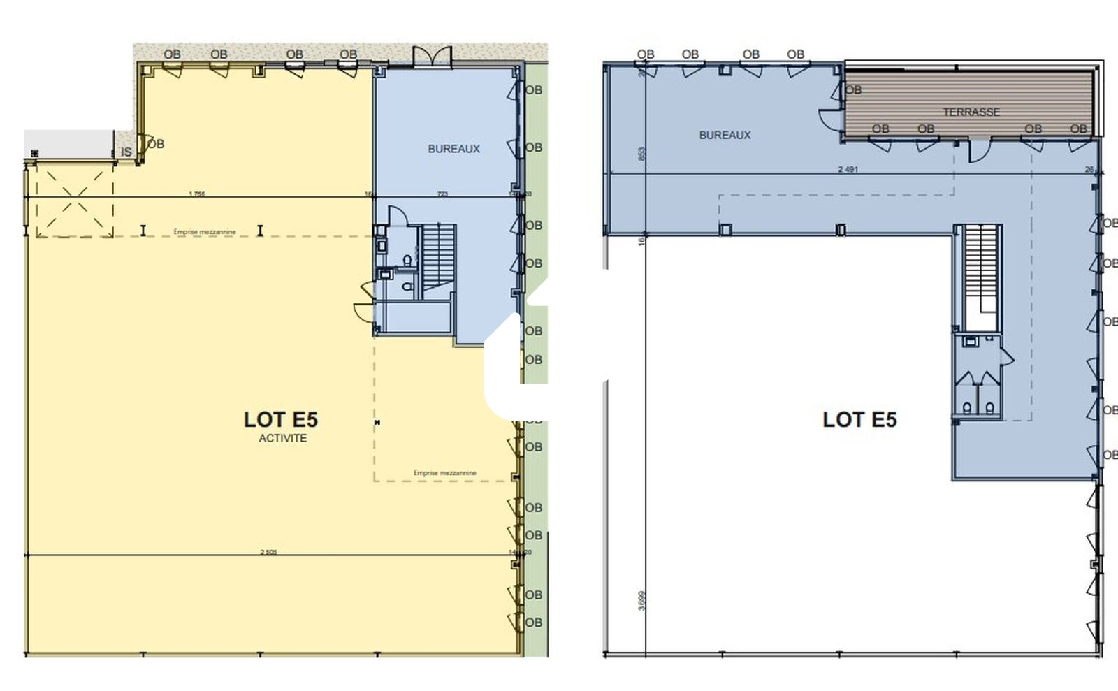
IMMPROVE a le plaisir de vous proposer à la location un ensemble de surfaces d'activités idéalement situés à Décines-Charpieu. Ce local d'une superficie totale de 6 426 m², est modulable et peut être divisé à partir de 449 m², offrant ainsi une flexibilité optimale pour répondre aux besoins spécifiques de votre entreprise.
En savoir plus
. Voirie lourde pour les aires de manœuvre. Labellisé HQE
. Stationnements VL perméables
. Site clôturé
. Terrasse en R+1
. Parc paysagé arboré
. Restaurant
. Eau potable: Distribution commune avec compteur privatif
. Électricité: Distribution par compteur privatif
. Internet: Raccordement fibre . Labellisé HQE
. Voirie lourde pour les aires de manœuvre.
. Stationnements VL perméables
. Site clôturé
. Terrasse en R+1
. Parc paysagé arboré
. Restaurant
. Eau potable: Distribution commune avec compteur privatif
. Électricité: Distribution par compteur privatif
. Raccordement fibre
- ACTIVITES -
. Hauteurs libres: 7,50 m libre
. Hauteur libre sous mezzanine : 4,70 m
. Sol surcharge: Dallage industriel béton 3T/m²
. Façades: Bardage Béton
. Structure, charpente: Structure métallique
. Toiture: Multicouches sur bac acier
. Portes de plain-pied: Portes de 3,90 x 3,90 m
. Eclairage: Luminaires industriels LED
. Chauffage : Aérothermes électriques
- BUREAUX -
. Hauteurs sous faux plafond: 2,70 m libre
. Sols: moquette et carrelage
. Sanitaires: Sol carrelage et revêtement mural en faïence toute hauteur
. Chauffage: Climatisation par système réversible de type VRV
Consommations énergétiques


Informations non contractuelles
Tableau des divisibilités
| Type | Étage | Surface | Loyer (€/m²/an HT HC) |
Charges (€/m²/an HT HC) |
|---|---|---|---|---|
| Activités | 615 m² | 126.83 | Prix sur demande | |
| Activités | 869 m² | 133.49 | Prix sur demande | |
| Activités | 1 270 m² | 130.71 | Prix sur demande | |
| Activités | 635 m² | 130.71 | Prix sur demande | |
| Activités | 1 007 m² | 132.08 | Prix sur demande | |
| Activités | 449 m² | 131.40 | Prix sur demande | |
| Activités | 1 054 m² | 129.03 | Prix sur demande | |
| Activités | 527 m² | 129.03 | Prix sur demande |
Caractéristiques
. Assurance PNO : 1.10 € m²/an
- Surface 6 426 m²
- Etat des locaux Neuf
Adresses
approximatives
Adresses
précises
Nos nouveaux biens qui pourraient vous intéresser
Locaux d'Activités - 2 740.40m² Divisibles à partir de 422 m²
à Louer
DECINES CHARPIEU (69150)
Voir le bien
14 557.50€/mois HT HC
Locaux d'Activités - 2 289m² Divisibles à partir de 363 m²
à Louer
DECINES CHARPIEU (69150)
Voir le bien
4 833.45€/mois HT HC
Les entrepreneurs ayant consulté cette offre ont aussi consulté celles ci
Les services Immprove
Une gamme complète de services qui facilitent vos démarches et destinée à satisfaire vos attentes