Retour
Locaux d'Activités - 830m² à Louer
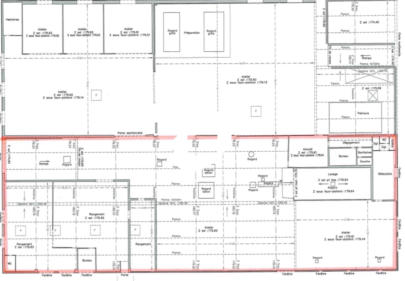
. Charpente métallique, Couverture bac acier isolé shedisol, murs moellons
. Hauteur libre sous gousset : 3.6 m, sous faîtage : 4.5 m
. Dalle béton
. 1 porte sectionnelle 3 x 3m
. Triphasé tarif jaune
. Bureaux cloisonnés
Locaux d'Activités - 830m² à Louer
RUE AMPÈRE VILLEFRANCHE SUR SAONE (69400)
DESCRIPTION
Immprove vous propose, à la location, en bordure de la zone commerciale de Villefranche sur Saône, un bâtiment indépendant de 830 m² avec un accueil et 2 bureaux. Idéal pour petite industrie ou garage. Pas de carrosserie car activité déjà présente sur le site.
En savoir plus
. Site clos . Charpente métallique, Couverture bac acier isolé shedisol, murs moellons
. Hauteur libre sous gousset : 3.6 m, sous faîtage : 4.5 m
. Dalle béton
. 1 porte sectionnelle 3 x 3m
. Triphasé tarif jaune
. Bureaux cloisonnés
Consommations énergétiques


Informations non contractuelles
Tableau des divisibilités
| Type | Étage | Surface | Loyer (€/m²/an HT HC) |
Charges (€/m²/an HT HC) |
|---|---|---|---|---|
| Activités | 830 m² | 72.28 | Prix sur demande |
Caractéristiques
Assurance PNO : 2 740 € /an
- Surface 830 m²
- Etat des locaux Bon état
Adresses
approximatives
Adresses
précises
Nos nouveaux biens qui pourraient vous intéresser
Les entrepreneurs ayant consulté cette offre ont aussi consulté celles ci
Les services Immprove
Une gamme complète de services qui facilitent vos démarches et destinée à satisfaire vos attentes