Retour
Disponibilité Juin 2026
À Louer Locaux d'Activités 1 352 m² PARC DES SABLES ROUTE DES SABLES CHAPONOST (69630)
Ajouter au comparateur
Vous souhaitez faciliter votre recherche ?
Créez un compte
Présentation du bien
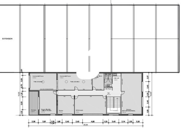
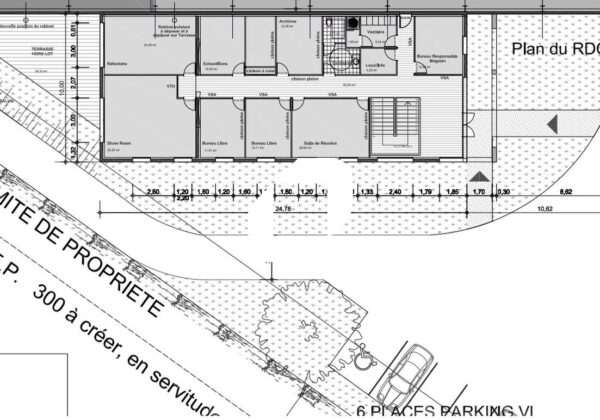
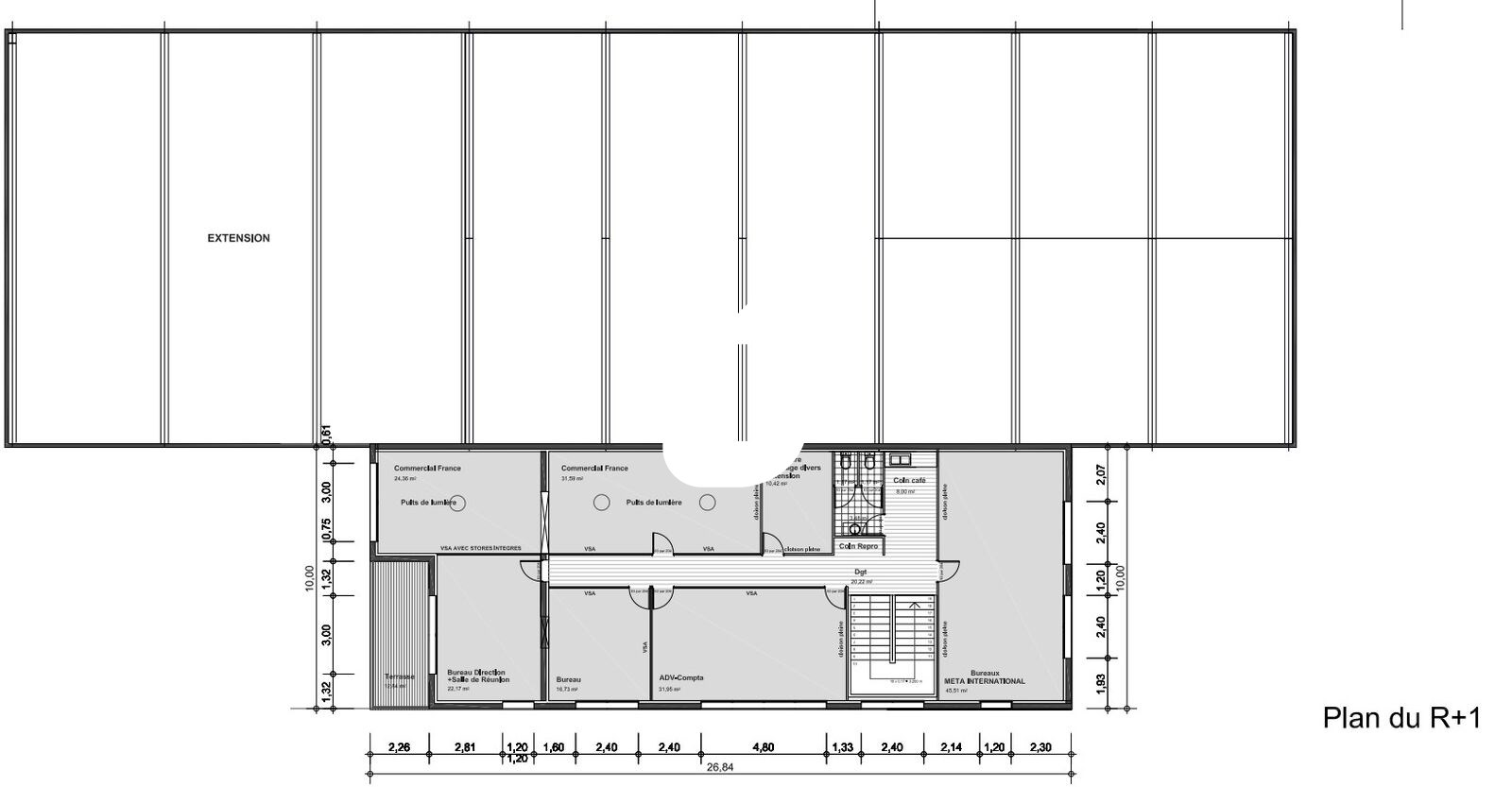
IMMPROVE vous propose sur la commune de Chaponost (69630) une offre rare et exceptionnelle ! Un bâtiment indépendant sur site clos et sécurisé, idéal pour votre PME/PMI. Il allie une vaste zone d'activité/production de 891 m² (avec quai de déchargement et aire de retournement) à des bureaux premium de 220 m² répartis sur deux niveaux.
Surface totale
Nature
Divisibilité
Etat des locaux
1 352 m²
Locaux d'Activités
Non
Bon état
Prix & Conditions
Loyer :
129 € /m²/an (HT/HC)
14 534 € /mois (HT/HC)
174 408 € /an (HT/HC)
Impôt foncier :
8.09
Dépôt de garantie :
3 mois de loyer HT HC
Conditions location :
Compris des charges : entretien clim, VMC, portes sectionnelles, espace vert, toiture, installation électrique, portail, quais
Prestations & équipements du bien
Les espaces de travail
Accueil
Dalle led
Salle de réunion
Cuisine
Le confort au quotidien
Sol PVC
Carrelage
Parquet bois
Climatisation réversible
Les accès
1 quai avec un niveleur à fonctionnement hydraulique
Sécurité du site
Site clos et sécurisé
Prestations spécifiques
2 compteurs - Tarif bleu
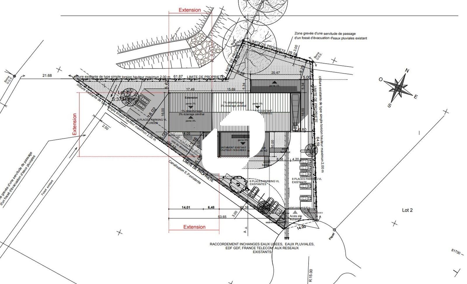
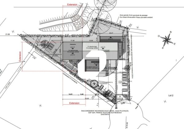
Extérieur
Terrasse extérieure
3 emplacements parkings avec borne de charge
Autres
Charpente métallique
Bardage double peau
Bac acier
3 portes sectionnelles - dimension 3x3,4m
Portance de la dalle 5T/m²
Hauteur utile : 6,4 m
Dalle béton quartz
Triphasé
Air de retournement
Possibilité rack pour 700 palettes Europe
Cloisons amovibles semi vitrées
Compris des charges : entretien clim, VMC, portes sectionnelles, espace vert, toiture, installation électrique, portail, quais
Répartition & surfaces des espaces
Tableau des divisibilités
| Type | Étage | Surface | Loyer (€/m²/an HT HC) |
Charges (€/m²/an HT HC) |
|---|---|---|---|---|
| Activités | 1 352 m² | 129.44 | Prix sur demande |
Performance énergétique du bien (DPE)


Informations non contractuelles
Localisation & accès
Transports en commun à proximité
11
Accès routier
Porte du Moulin à Vent (Périphérique Lyon)
Atelier de l'Aluminium Chanopost (Bornes de recharge)
Adresses
approximatives
Adresses
précises
Nos nouveaux biens qui pourraient vous intéresser
Locaux d'Activités - 6 200m²
BELLEVILLE EN BEAUJOLAIS (69220)
BELLEVILLE EN BEAUJOLAIS (69220)
40 000.33€/mois HT HC
Disponibilité : 2ème trimestre 2027
Surface : 6 200 m²
Locaux d'Activités - 25 338m² Divisibles à partir de 6 309 m²
MARIGNANE (13700)
MARIGNANE (13700)
60 796.67€/mois HT HC
Disponibilité : T3 2027
Surface : divisibles à partir de 6 309 m²
Locaux d'Activités - 8 095m² Divisibles à partir de 1 970 m²
LES MUREAUX (78130)
LES MUREAUX (78130)
19 700.00€/mois HT HC
Disponibilité : Immédiate
Surface : divisibles à partir de 1 970 m²
Locaux d'Activités - 177m²
VENDENHEIM (67550)
VENDENHEIM (67550)
1 100.06€/mois HT HC
Disponibilité : 1er aout 2026
Surface : 177 m²
Les entrepreneurs ayant consulté cette offre ont aussi consulté celles ci
Locaux d'Activités - 6 200m²
BELLEVILLE EN BEAUJOLAIS (69220)
BELLEVILLE EN BEAUJOLAIS (69220)
40 000.33€/mois HT HC
Disponibilité : 2ème trimestre 2027
Surface : 6 200 m²
Locaux d'Activités - 8 095m² Divisibles à partir de 1 970 m²
LES MUREAUX (78130)
LES MUREAUX (78130)
19 700.00€/mois HT HC
Disponibilité : Immédiate
Surface : divisibles à partir de 1 970 m²
Locaux d'Activités - 177m²
VENDENHEIM (67550)
VENDENHEIM (67550)
1 100.06€/mois HT HC
Disponibilité : 1er aout 2026
Surface : 177 m²
Locaux d'Activités - 296m²
VENDENHEIM (67550)
VENDENHEIM (67550)
1 799.93€/mois HT HC
Disponibilité : Juin 2026
Surface : 296 m²