Retour
Locaux d'Activités - 9 003m² à Louer
. Électricité : Distribution par compteur privatif
. Raccordement fibre
. Gaz : Distribution par compteur privatif
. Voirie lourde pour les aires de manœuvre
. Stationnements VL perméables
. Site clôturé et indépendant
. Label HQE
. Toitures végétalisées et terrasses d’agrément privatives accessibles BATIMENT : FARADAY
. Hauteur libre: 7,40 m libre
. Sol surcharge : Dallage industriel béton 3T/m²
. Portes de plain-pied : Portes de 3,80 x 3,80 m
BATIMENT : MAXWELL
-ACTIVITES-
. Hauteurs libres: 7,70 m libre
. Hauteur libre sous mezzanine : 4,20 m
. Sol surcharge: Dallage industriel béton 3T/m²
. Façades: Bardage Béton
. Structure, charpente: Structure métallique
. Toiture: Multicouches sur bac acier
. Portes à quai avec niveleur: Portes de 3 m x 3,50 m
. Niveleur: Capacité dynamique 6T, capacité statique 9T
. Portes de plain-pied: Portes de 3,80 x 3,80 m / 3,50 x 3,50 m
. Eclairage: Luminaires industriels LED
. Chauffage :Aérothermes gaz à détente directe
BATIMENT : GALILEE et COPERNIC
. PC obtenu
. HSP : 5.50 m / 4.80 m sous poutre
. Portes de Plain Pied : 3.80 x 3.80 m
. Quai pour le bâtiment GALILEE
. Résistance au sol : 3T/ m² (Bat G) / 2T/m² (Bat H)
. Aérotherme électrique
. Luminaires Led dans l’activité
. Carrelage
. Faux plafond
. Pavés led suspendus 300 lux
. Elec : Distribution privative
. Eau : Répartition au compteur
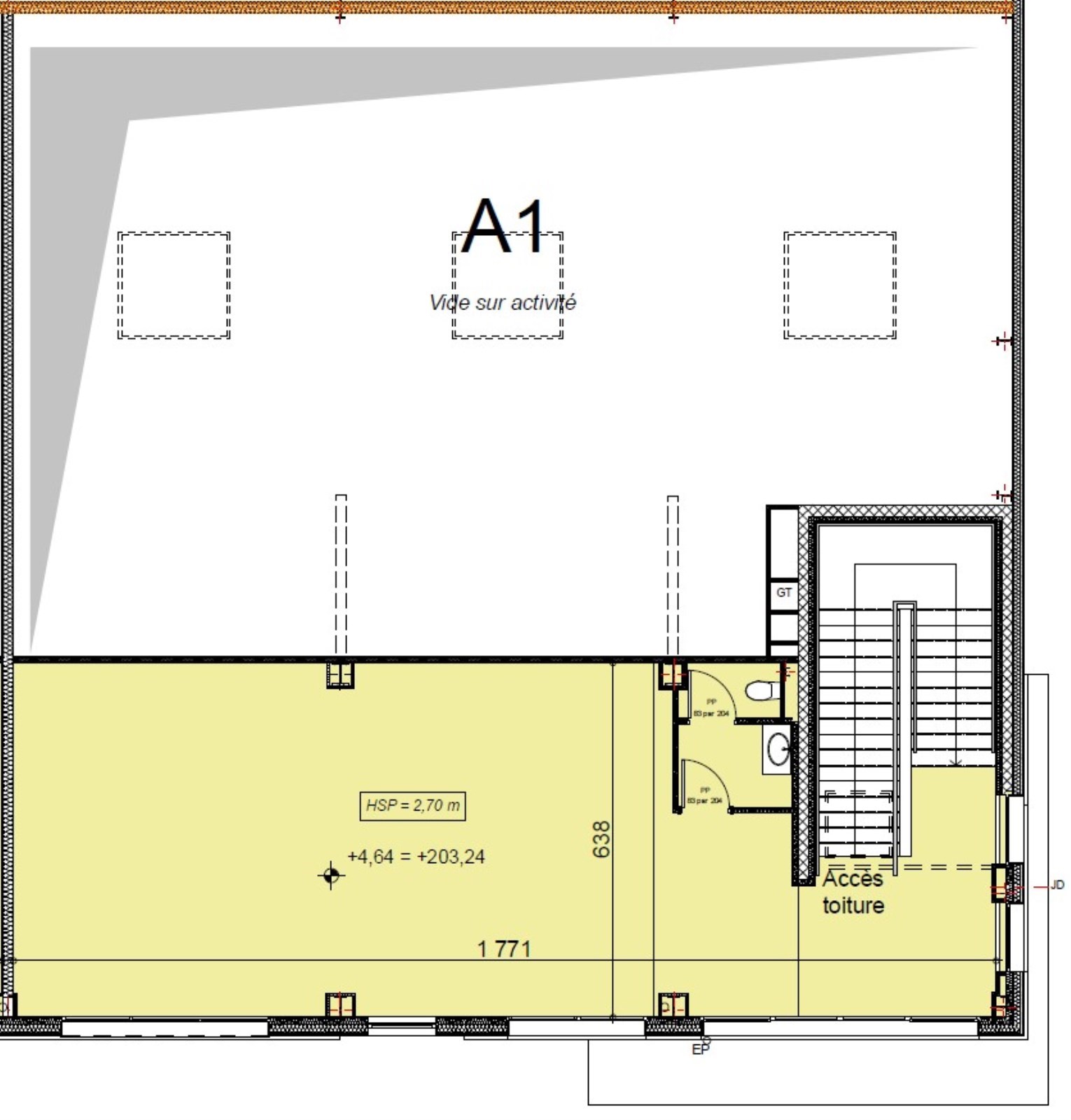
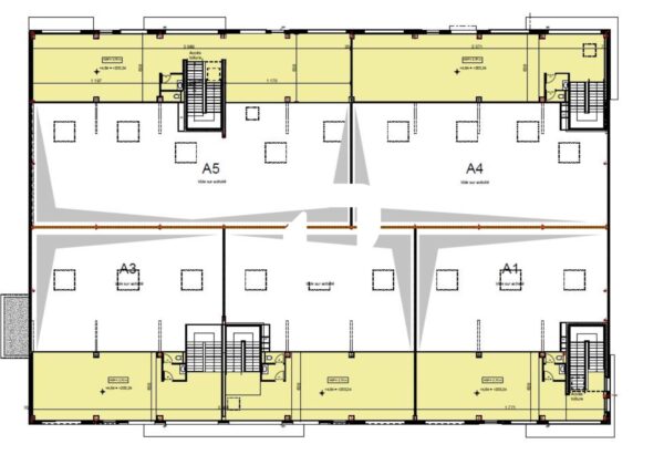
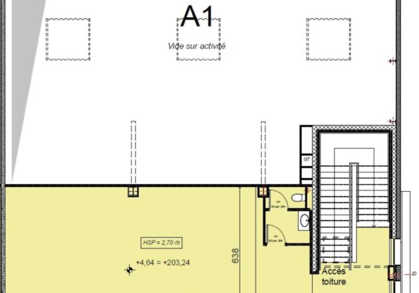
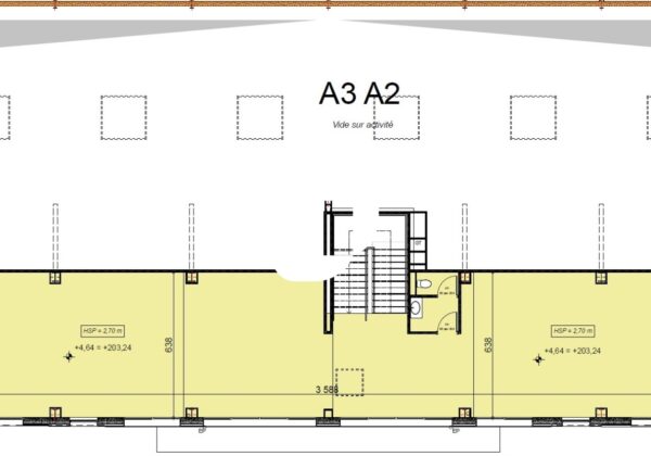
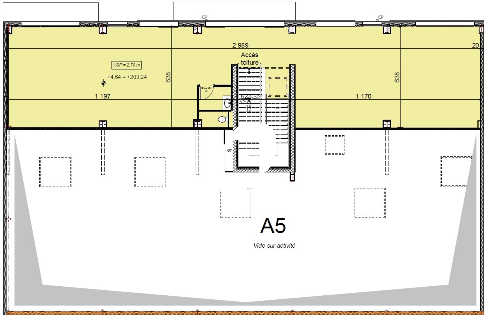
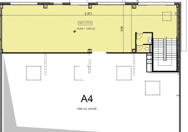
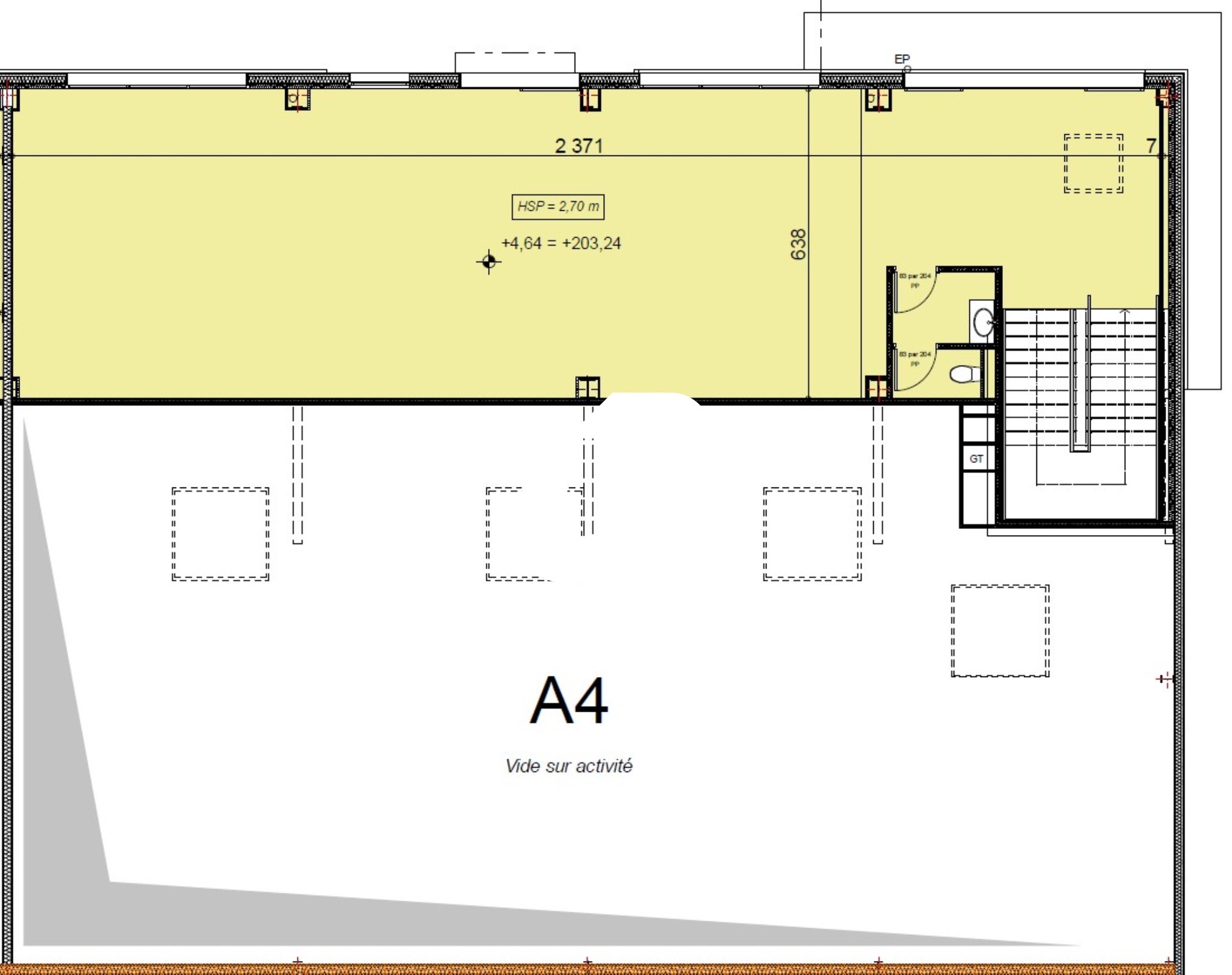
-BUREAUX-
. Hauteurs sous faux plafond: 2,70 m libre
. Sols: moquette et carrelage
. Sanitaires: Sol carrelage et revêtement mural en faïence toute hauteur
. Chauffage: Climatisation par système réversible de type VRV
Possibilité Tarif Jaune sur le site
Locaux d'Activités - 9 003m² à Louer
ECOPARC DU LYONNAIS - 48 RUE DU LYONNAIS SAINT PRIEST (69800)
DESCRIPTION
IMMPROVE vous propose à la location des bâtiments d'activités modulables au cœur de l'ECOPARC du Lyonnais. Idéal industriel, artisanal ou services, ces locaux ultra fonctionnels sont conçus pour combiner productivité et cadre de vie. Performance : Label HQE, toitures végétalisées, terrasses privatives.
En savoir plus
. Eau potable : Distribution commune avec sous compteur privatif. Électricité : Distribution par compteur privatif
. Raccordement fibre
. Gaz : Distribution par compteur privatif
. Voirie lourde pour les aires de manœuvre
. Stationnements VL perméables
. Site clôturé et indépendant
. Label HQE
. Toitures végétalisées et terrasses d’agrément privatives accessibles BATIMENT : FARADAY
. Hauteur libre: 7,40 m libre
. Sol surcharge : Dallage industriel béton 3T/m²
. Portes de plain-pied : Portes de 3,80 x 3,80 m
BATIMENT : MAXWELL
-ACTIVITES-
. Hauteurs libres: 7,70 m libre
. Hauteur libre sous mezzanine : 4,20 m
. Sol surcharge: Dallage industriel béton 3T/m²
. Façades: Bardage Béton
. Structure, charpente: Structure métallique
. Toiture: Multicouches sur bac acier
. Portes à quai avec niveleur: Portes de 3 m x 3,50 m
. Niveleur: Capacité dynamique 6T, capacité statique 9T
. Portes de plain-pied: Portes de 3,80 x 3,80 m / 3,50 x 3,50 m
. Eclairage: Luminaires industriels LED
. Chauffage :Aérothermes gaz à détente directe
BATIMENT : GALILEE et COPERNIC
. PC obtenu
. HSP : 5.50 m / 4.80 m sous poutre
. Portes de Plain Pied : 3.80 x 3.80 m
. Quai pour le bâtiment GALILEE
. Résistance au sol : 3T/ m² (Bat G) / 2T/m² (Bat H)
. Aérotherme électrique
. Luminaires Led dans l’activité
. Carrelage
. Faux plafond
. Pavés led suspendus 300 lux
. Elec : Distribution privative
. Eau : Répartition au compteur
-BUREAUX-
. Hauteurs sous faux plafond: 2,70 m libre
. Sols: moquette et carrelage
. Sanitaires: Sol carrelage et revêtement mural en faïence toute hauteur
. Chauffage: Climatisation par système réversible de type VRV
Possibilité Tarif Jaune sur le site
Consommations énergétiques


Informations non contractuelles
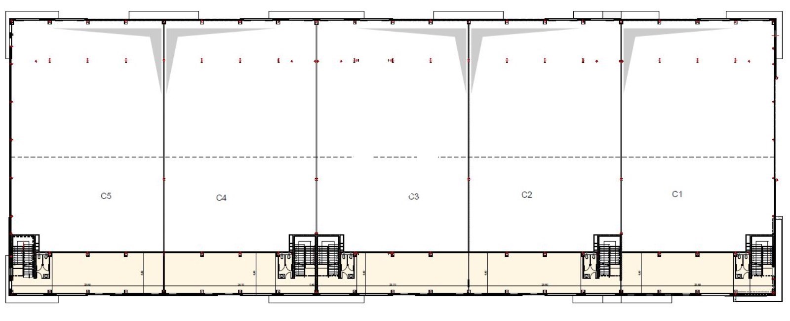
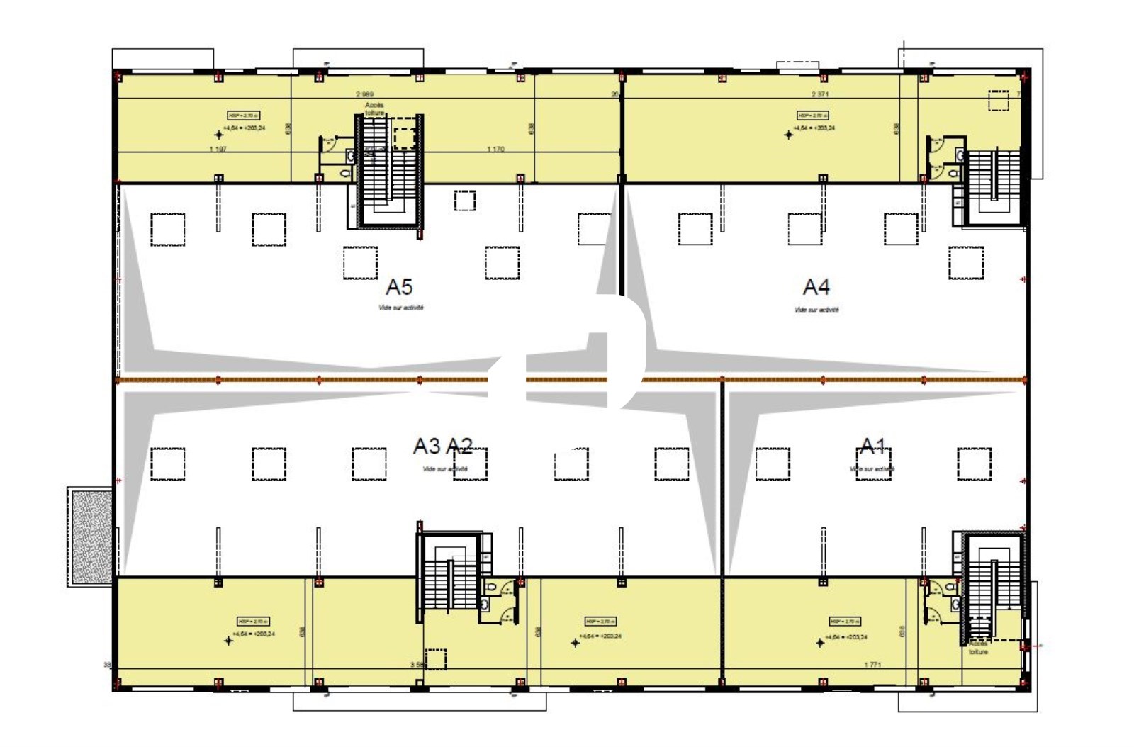
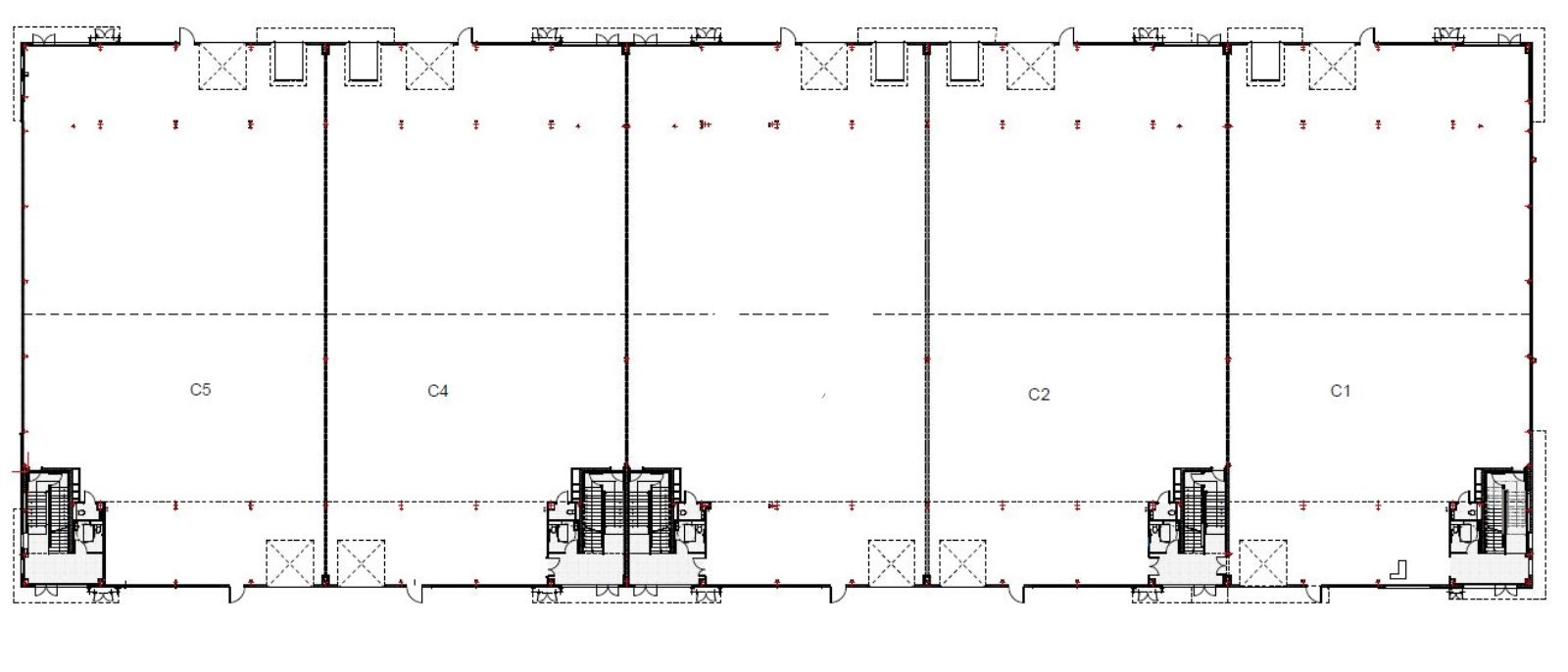
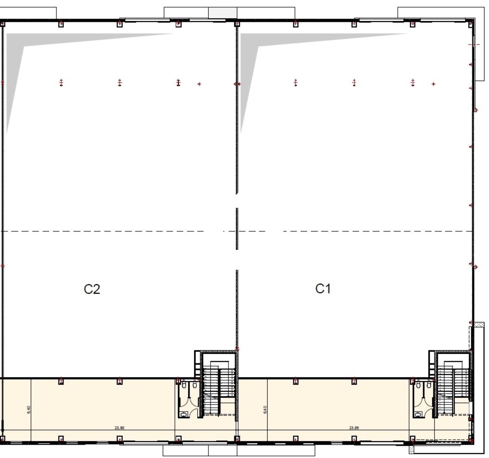
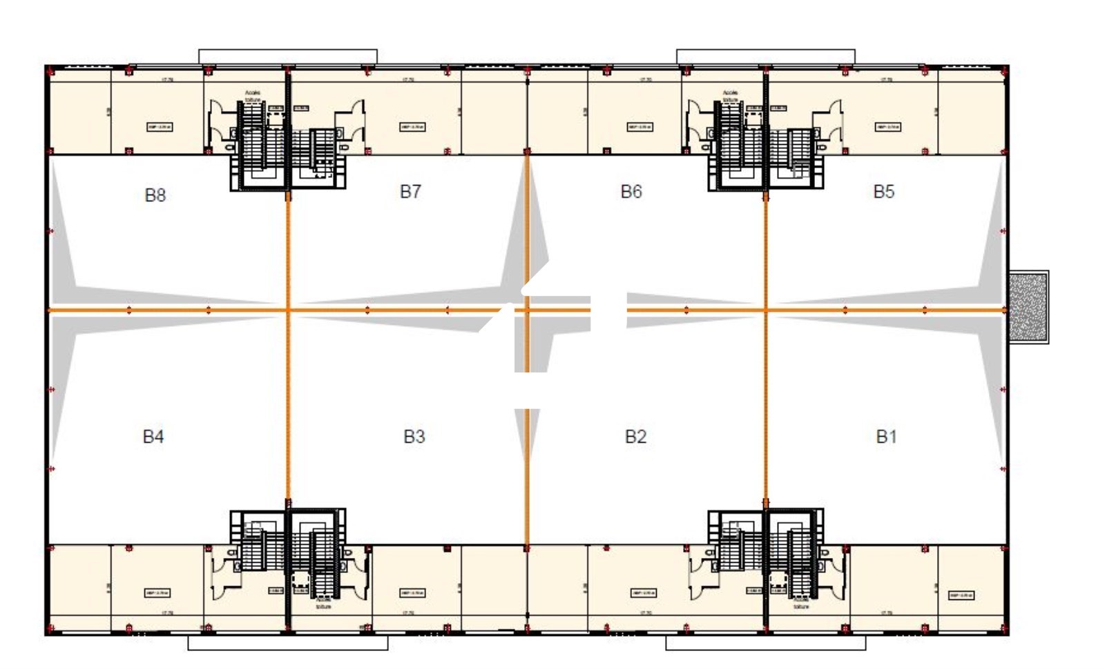
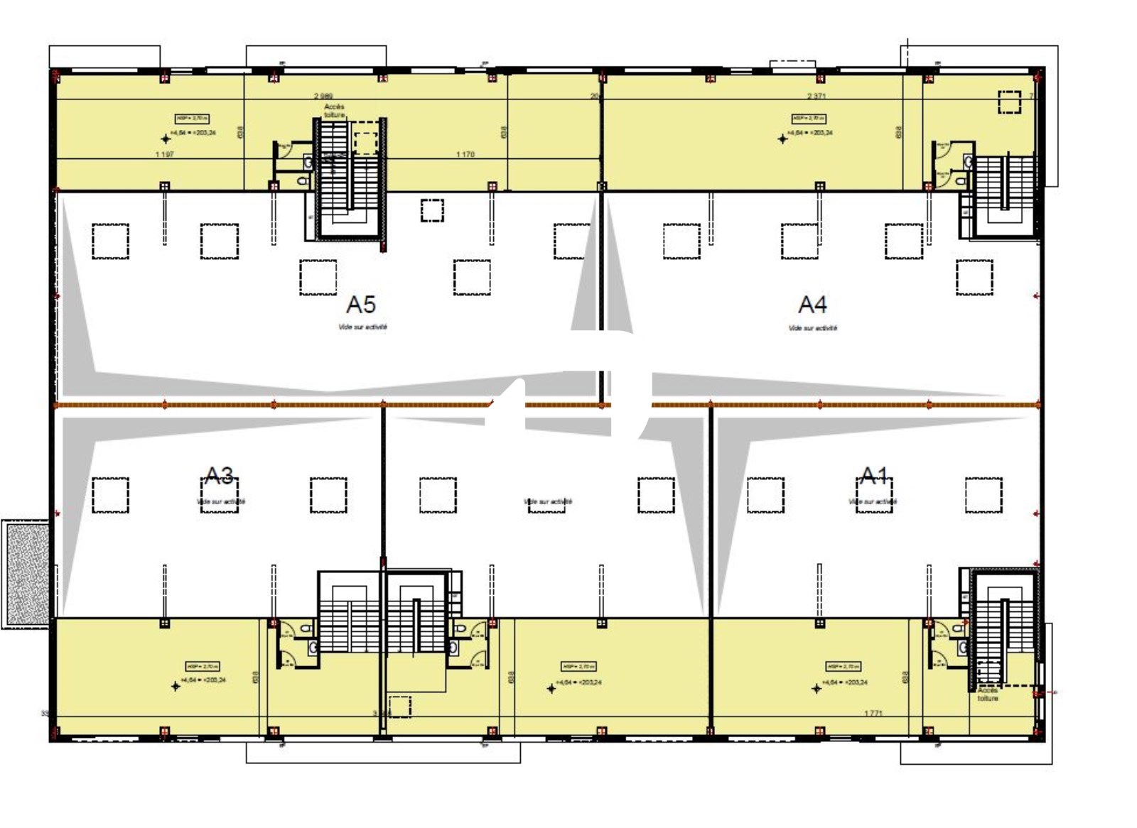
Tableau des divisibilités
| Type | Étage | Surface | Loyer (€/m²/an HT HC) |
Charges (€/m²/an HT HC) |
|---|---|---|---|---|
| Activités | 608 m² | 116.78 | Prix sur demande | |
| Activités | 923 m² | 122.43 | Prix sur demande | |
| Activités | 1 629 m² | 114.79 | Prix sur demande | |
| Activités | 1 002 m² | 120.76 | Prix sur demande | |
| Activités | 783 m² | Prix sur demande | Prix sur demande | |
| Activités | 765 m² | Prix sur demande | Prix sur demande | |
| Activités | 1 547 m² | Prix sur demande | Prix sur demande | |
| Activités | 1 746 m² | Prix sur demande | Prix sur demande |
Caractéristiques
. Charges: 8% du loyer hors taxes
. Terrasse privative : 70€/m²/an HT HC
. Parking extérieur : 200€/m²/an HT HC
. Assurance PNO: 1,30 €/m²
- Surface 9 003 m²
- Etat des locaux Neuf
Adresses
approximatives
Adresses
précises
Nos nouveaux biens qui pourraient vous intéresser
Les entrepreneurs ayant consulté cette offre ont aussi consulté celles ci
Les services Immprove
Une gamme complète de services qui facilitent vos démarches et destinée à satisfaire vos attentes