Retour
Disponibilité Immédiate
À Louer Locaux d'Activités 2 348 m² 8 RUE DU DOCTEUR JEAN CHARCOT MORANGIS (91420)
Ajouter au comparateur
Vous souhaitez faciliter votre recherche ?
Créez un compte
Présentation du bien
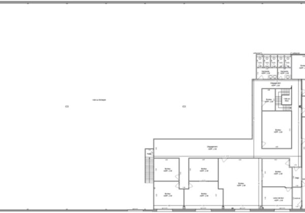
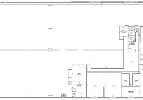
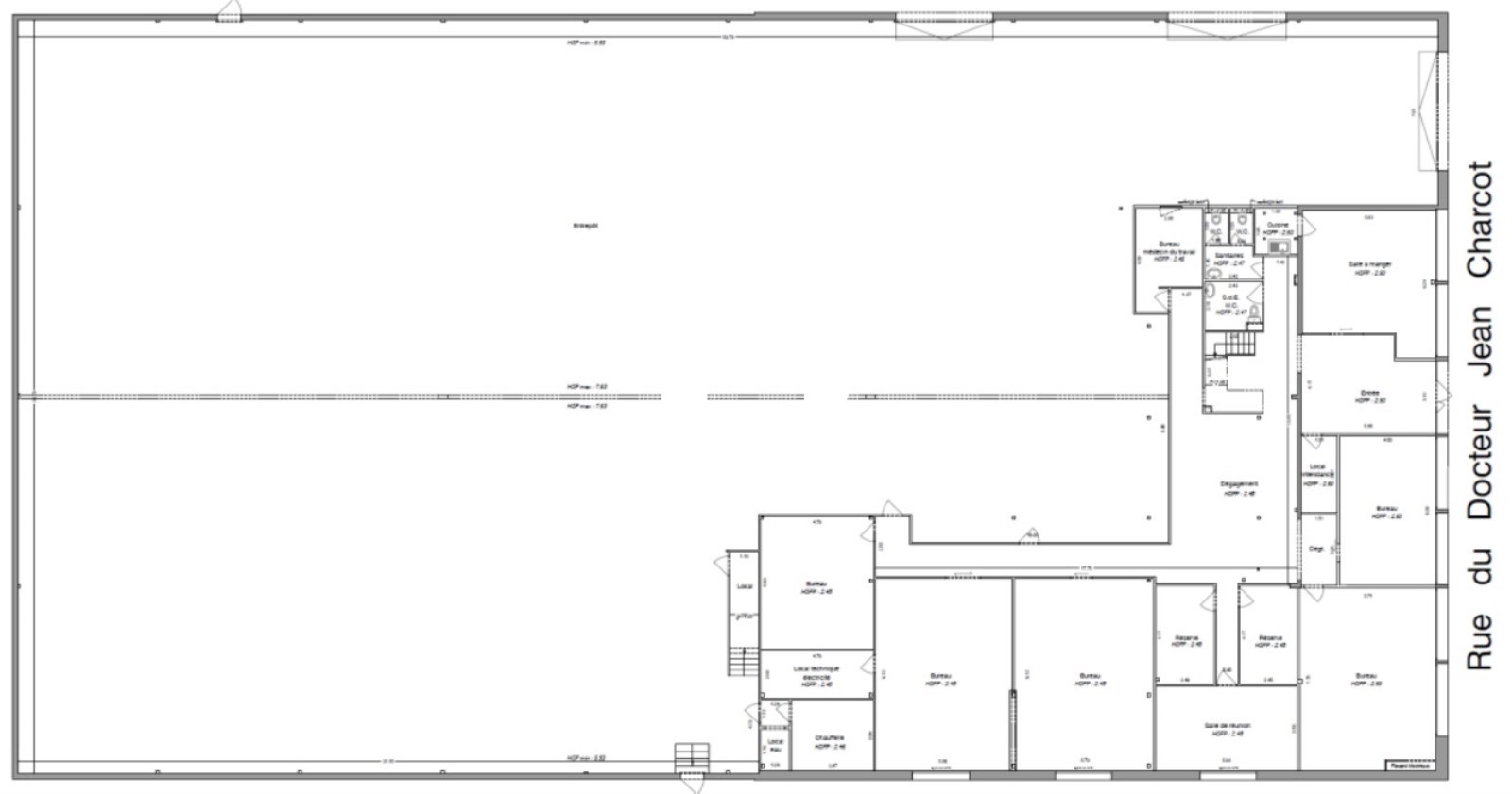
Dans la zone d’activité de Morangis, à proximité entre l’autoroute A6 et la nationale N7, IMMPROVE vous propose à la location un bâtiment d’activité indépendant avec 2 portes à quai et une porte sectionnelle de plain pied et accessible par 3 portails. Les bureaux sont dans un bon état et l’entrepôt sera rénové pour la location. Ce local, sera parfait pour accueillir le siège social de votre entreprise.
Surface totale
Nature
Divisibilité
2 348 m²
Locaux d'Activités
Non
Prix & Conditions
Loyer :
125 € /m²/an (HT/HC)
24 458 € /mois (HT/HC)
293 500 € /an (HT/HC)
Impôt foncier :
31500.00
Taxe bureaux :
15928
Dépôt de garantie :
3 mois de loyer HT HC
Prestations & équipements du bien
Le bâtiment
Bâtiment indépendant
Façade en bardage
Parties communes rénovées récemment
Les espaces de travail
Fibre optique
Accueil
Espace détente
Cuisine
Faux plafonds
Bureaux cloisonnés décloisonnement
Plinthes périphériques
Câblage informatique et téléphonique
Prises RJ45
Sanitaires privatifs
Le confort au quotidien
Moquette
Chauffage par climatisation réversible
Les accès
Double accès
Sécurité du site
Site clos
Autres
possible
Répartition & surfaces des espaces
Tableau des divisibilités
| Type | Étage | Surface | Loyer (€/m²/an HT HC) |
Charges (€/m²/an HT HC) |
|---|---|---|---|---|
| Activités | 2 348 m² | 125.21 | 6 500.00 |
Performance énergétique du bien (DPE)


Informations non contractuelles
Localisation & accès
Adresses
approximatives
Adresses
précises
Nos nouveaux biens qui pourraient vous intéresser
Locaux d'Activités - 1 410m²
MORANGIS (91420)
MORANGIS (91420)
12 690.00€/mois HT HC
Disponibilité : Immédiate
Surface : 1 410 m²
Locaux d'Activités - 607m²
MORANGIS (91420)
MORANGIS (91420)
4 552.50€/mois HT HC
Disponibilité : Immédiate
Surface : 607 m²
Les entrepreneurs ayant consulté cette offre ont aussi consulté celles ci
Locaux d'Activités - 220m²
TREILLIERES (44119)
TREILLIERES (44119)
1 558.33€/mois HT HC
Disponibilité : 1er janvier 2027
Surface : 220 m²
Locaux d'Activités - 200m²
ROUBAIX (59100)
ROUBAIX (59100)
900.00€/mois HT HC
Disponibilité : Immédiate
Surface : 200 m²
Locaux d'Activités - 288m²
SAINT JEAN DE VEDAS (34430)
SAINT JEAN DE VEDAS (34430)
2 448.00€/mois HT HC
Disponibilité : Immédiate
Surface : 288 m²
Locaux d'Activités - 110.82m²
SAINT GEORGES D'ORQUES (34680)
SAINT GEORGES D'ORQUES (34680)
1 017.50€/mois HT HC
Disponibilité : 8 mai 2026
Surface : 110.82 m²