Retour
Disponibilité Fin 2026
À Acheter Locaux d'Activités 4 227.33 m² divisibles à partir de 184.81 m² NEUILLY EN THELLE (60530)
Ajouter au comparateur
Vous souhaitez faciliter votre recherche ?
Créez un compte
Présentation du bien
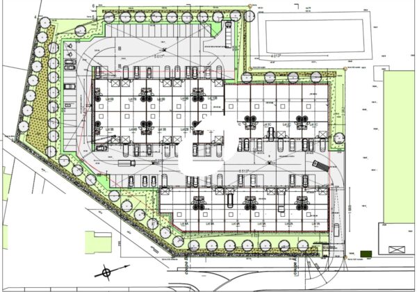
Immprove est ravi de mettre à votre disposition un programme neuf de 20 cellules d’activités à partir de 184 m² situées dans la commune de Neuilly En Thelle avec une grande zone de stockages. Elles disposent également de bureaux séparés et de sanitaires privatifs. Situé dans une zone industrielle dynamique et bien desservie.
Surface totale
Nature
Divisibilité
Etat des locaux
4 227.33 m²
Locaux d'Activités
Oui à partir de 184.81 m²
Neuf
Prix & Conditions
Vente :
7 293 000.00 € (HD)
1 650.00 € /m² (HD)
Divisibles à partir de 184.81 m²
Impôt foncier :
10.87
Conditions vente :
Loi Carrez et affectation juridique en cours de détermination
Prestations & équipements du bien
Le bâtiment
Façade en bardage
Les espaces de travail
Accueil
Espace ouvert
Bureaux cloisonnés
Faux plafonds
Câblage informatique et téléphonique
Prises RJ45
Sanitaires privatifs
Le confort au quotidien
Portail d'accès Locaux lumineux, rationnels et modulables aménagés en :
Carrelage
Les accès
Accès véhicules légers et poids lourds
Double accès
Aire de manœuvre et de chargement
Porte sectionnelle de plain-pied
Dimensions porte : 3(H) x3m5 (L) m
Prestations spécifiques
Chauffage électrique
Charge au sol : 2.5 tonnes / m²
Hauteur libre : 6,5 m
Extérieur
Parkings extérieurs
Autres
Programme VEFA 20 cellules d’activités
Loi Carrez et affectation juridique en cours de détermination
Répartition & surfaces des espaces
Tableau des divisibilités
| Type | Étage | Surface | Prix achat (€/m² HT HC) |
Charges (achat) (€/m² HT HC) |
|---|---|---|---|---|
| Activités | 231 m² | 1 650.00 | Prix sur demande | |
| Activités | 230 m² | 1 650.00 | Prix sur demande | |
| Activités | 230 m² | 1 650.00 | Prix sur demande | |
| Activités | 230 m² | 1 650.00 | Prix sur demande | |
| Activités | 230 m² | 1 650.00 | Prix sur demande | |
| Activités | 323 m² | 1 650.00 | Prix sur demande | |
| Activités | 185 m² | 1 650.00 | Prix sur demande | |
| Activités | 185 m² | 1 650.00 | Prix sur demande | |
| Activités | 185 m² | 1 650.00 | Prix sur demande | |
| Activités | 185 m² | 1 650.00 | Prix sur demande | |
| Activités | 185 m² | 1 650.00 | Prix sur demande | |
| Activités | 188 m² | 1 650.00 | Prix sur demande | |
| Activités | 188 m² | 1 650.00 | Prix sur demande | |
| Activités | 185 m² | 1 650.00 | Prix sur demande | |
| Activités | 185 m² | 1 650.00 | Prix sur demande | |
| Activités | 273 m² | 1 650.00 | Prix sur demande | |
| Activités | 269 m² | 1 650.00 | Prix sur demande | |
| Activités | 269 m² | 1 650.00 | Prix sur demande | |
| Activités | 272 m² | 1 650.00 | Prix sur demande |
Performance énergétique du bien (DPE)


Informations non contractuelles
Localisation & accès
Accès routier
N184
A16
Adresses
approximatives
Adresses
précises
Nos nouveaux biens qui pourraient vous intéresser
Locaux d'Activités - 300m²
NEUILLY EN THELLE (60530)
NEUILLY EN THELLE (60530)
679 998.00€ HT HC
Disponibilité : Immédiate
Surface : 300 m²
Les entrepreneurs ayant consulté cette offre ont aussi consulté celles ci
Locaux d'Activités - 201.60m²
REIMS (51100)
REIMS (51100)
50 904 000.00€ HT HC
Disponibilité : Immédiate
Surface : 201.60 m²
Locaux d'Activités - 1 794m²
SAINT PRIEST (69800)
SAINT PRIEST (69800)
Prix sur demande
Disponibilité : Octobre 2027
Surface : 1 794 m²
Locaux d'Activités - 1 980m²
FLEURIEUX SUR L'ARBRESLE (69210)
FLEURIEUX SUR L'ARBRESLE (69210)
Prix sur demande
Disponibilité : Immédiate
Surface : 1 980 m²
Locaux d'Activités - 743m²
CESTAS (33610)
CESTAS (33610)
870 000.99€ HT HC
Disponibilité : Immédiate
Surface : 743 m²