Retour
Locaux d'Activités - 1 970m² à Acheter
. Toiture bac acier isolé
. Bardage double peau
. Hauteur utile : 4.5 mètres
. 2 portes sectionnelles 4x4 mètres
. Option : Bureaux et locaux sociaux à rénovés
. Accès poids lourds
. Possibilité de créer un 2ème portail au Sud de
la parcelle
. Portail électrique
Locaux d'Activités - 1 970m² à Acheter
7 ALLEE DU GENERAL BENOIT BRON (69500)
DESCRIPTION
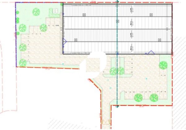
Rare. Immprove vous propose à la vente, sur la ZAC du Chêne de Bron, avec un accès direct au Tram, un bâtiment d’activité de 1 970 m² dont 200 m² de bureaux sur un terrain indépendant de 4 800 m², 2 portes sectionnelles et 30 places de parkings véhicules.
En savoir plus
. Structure métallique. Toiture bac acier isolé
. Bardage double peau
. Hauteur utile : 4.5 mètres
. 2 portes sectionnelles 4x4 mètres
. Option : Bureaux et locaux sociaux à rénovés
. Accès poids lourds
. Possibilité de créer un 2ème portail au Sud de
la parcelle
. Portail électrique
Consommations énergétiques


Informations non contractuelles
Tableau des divisibilités
| Type | Étage | Surface | Prix achat (€/m² HT HC) |
Charges (achat) (€/m² HT HC) |
|---|---|---|---|---|
| Activités | 1 970 m² | 1 218.27 | Prix sur demande |
Caractéristiques
offre bâtiment en l’état
- Surface 1 970 m²
- Etat des locaux Bon état
Adresses
approximatives
Adresses
précises
Les entrepreneurs ayant consulté cette offre ont aussi consulté celles ci
Les services Immprove
Une gamme complète de services qui facilitent vos démarches et destinée à satisfaire vos attentes