Retour
Disponibilité Immédiate
À Acheter Activités et Bureaux 3 630 m² RAMBOUILLET (78120)
Ajouter au comparateur
Vous souhaitez faciliter votre recherche ?
Créez un compte
Présentation du bien
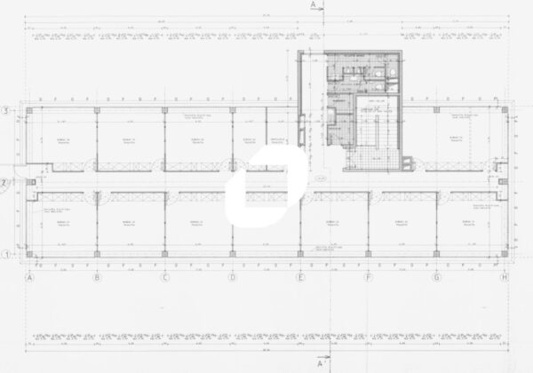
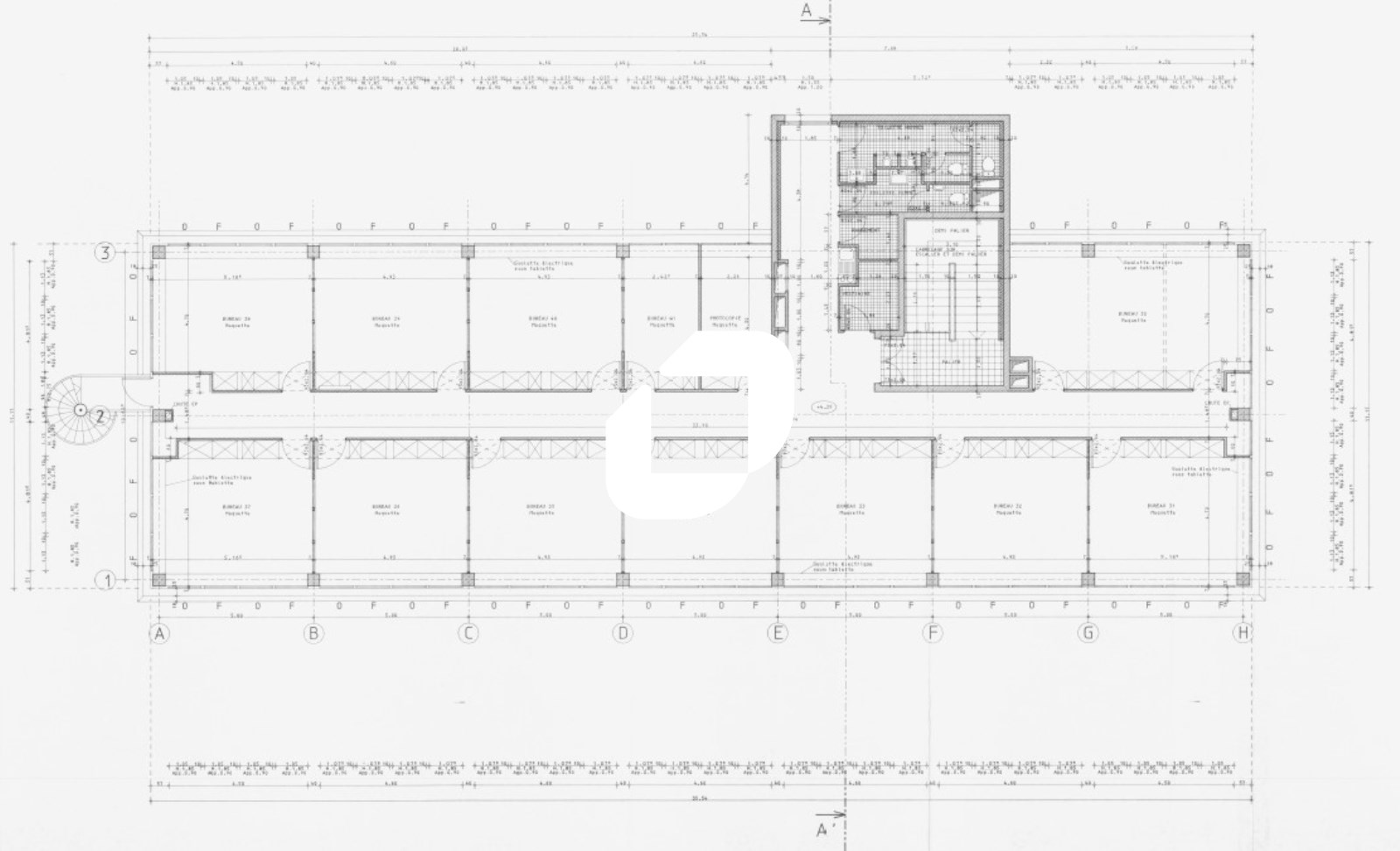
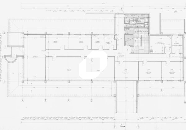
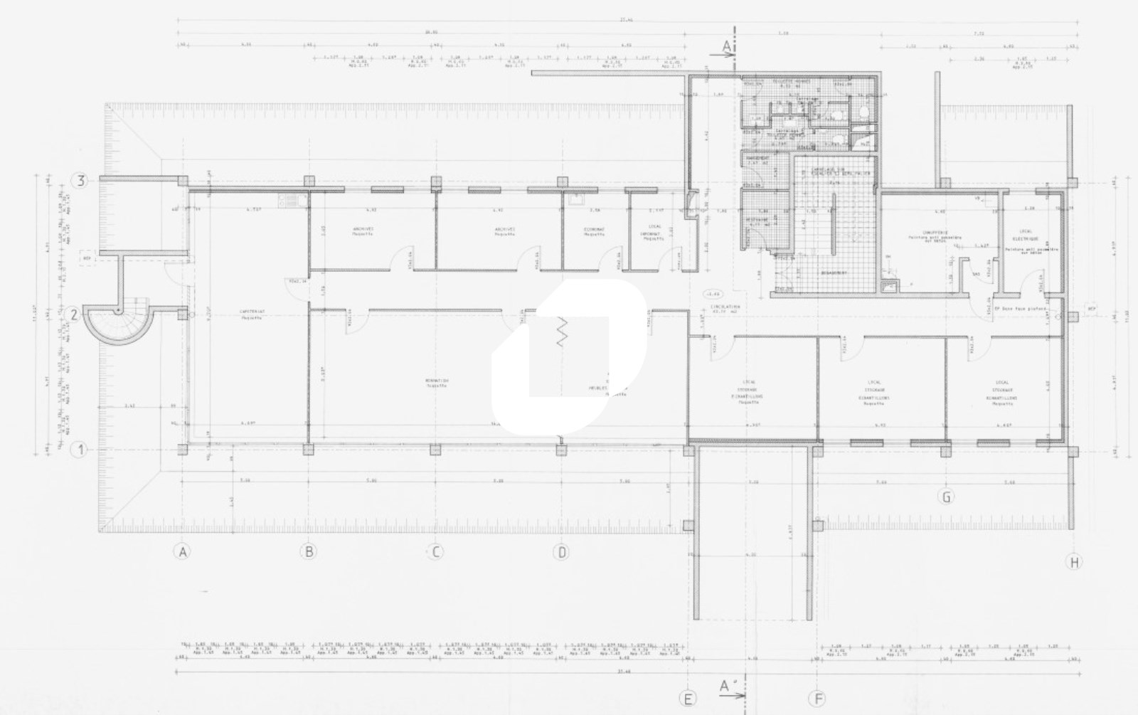
Immprove vous propose à la vente un bâtiment mixte indépendant de 3 630 m² sur un terrain clos de 16 830 m² à Rambouillet à proximité immédiate des accès N10 et proche des accès autoroutes A10 / A11.
L’immeuble se compose de 1 630 m² de bureaux répartis sur 4 niveaux et d’un espace d’activité/stockage de 2 000 m² avec deux portes sectionnelles.
Surface totale
Nature
Divisibilité
Etat des locaux
3 630 m²
Activités et Bureaux
Non
Travaux à prévoir
Prix & Conditions
Vente :
4 519 000.00 € (HD)
1 244.90 € /m² (HD)
Impôt foncier :
42980.00
Taxe bureaux :
12.03
Conditions vente :
Loi Carrez et affectation juridique en cours de détermination
Prestations & équipements du bien
Le bâtiment
Immeuble moderne
Les espaces de travail
Travaux à prévoir
Accueil
Bureaux cloisonnés
Décloisonnement possible
Locaux rationnels et modulables
Salle de réunion
Espace détente
Faux plafonds
Cloisonnement amovible
Câblage informatique et téléphonique
Le confort au quotidien
Chauffage immeuble gaz . Locaux lumineux et traversants
Moquette
Les accès
Accès véhicules légers
Accès poids lourds
Accès privatif sur rue
Aire de manœuvre
Aire de chargement
Portail d'accès
Porte sectionnelle de plain-pied : 2
Sécurité du site
Site clos
Services & espaces partagés
Réfectoire / Cafétéria
Prestations spécifiques
Chauffage individuel au gaz
Chauffage au sol
Autres
Format des portes sectionnelles : 5x5m
Douche
Vestiaire
Sanitaires
Loi Carrez et affectation juridique en cours de détermination
Répartition & surfaces des espaces
Tableau des divisibilités
| Type | Étage | Surface | Prix achat (€/m² HT HC) |
Charges (achat) (€/m² HT HC) |
|---|---|---|---|---|
| Parkings | Prix sur demande | Prix sur demande | ||
| Activités | Rez-de-Chaussée | 2 000 m² | 1 244.90 | Prix sur demande |
| Bureaux | 4ème étage | 1 630 m² | 1 244.90 | Prix sur demande |
Performance énergétique du bien (DPE)


Informations non contractuelles
Localisation & accès
Transports en commun à proximité
Gare de Rambouillet ligne N via liaison bus
Ligne 5302
Accès routier
Nationale N10
Adresses
approximatives
Adresses
précises
Nos nouveaux biens qui pourraient vous intéresser
Activités et Bureaux - 524m²
HOUILLES (78800)
HOUILLES (78800)
730 456.00€ HT HC
Disponibilité : Immédiate
Surface : 524 m²
Activités et Bureaux - 2 125m²
SAINT OUEN L'AUMONE (95310)
SAINT OUEN L'AUMONE (95310)
1 549 996.25€ HT HC
Disponibilité : Immédiate
Surface : 2 125 m²
Activités et Bureaux - 1 187m²
TRAPPES (78190)
TRAPPES (78190)
1 420 008.10€ HT HC
Disponibilité : Immédiate
Surface : 1 187 m²
Activités et Bureaux - 1 580m²
TRAPPES (78190)
TRAPPES (78190)
1 748 996.80€ HT HC
Disponibilité : 1er septembre 2026
Surface : 1 580 m²
Les entrepreneurs ayant consulté cette offre ont aussi consulté celles ci
Activités et Bureaux - 1 187m²
TRAPPES (78190)
TRAPPES (78190)
1 420 008.10€ HT HC
Disponibilité : Immédiate
Surface : 1 187 m²
Activités et Bureaux - 357m²
NANTERRE (92000)
NANTERRE (92000)
Prix sur demande
Disponibilité : Immédiate
Surface : 357 m²
Activités et Bureaux - 148m²
LES MUREAUX (78130)
LES MUREAUX (78130)
279 999.72€ HT HC
Disponibilité : Immédiate
Surface : 148 m²