Retour
Disponibilité Immédiate
À Acheter Bureaux 1 678 m² MARCQ EN BAROEUL (59700)
Ajouter au comparateur
Vous souhaitez faciliter votre recherche ?
Créez un compte
Présentation du bien
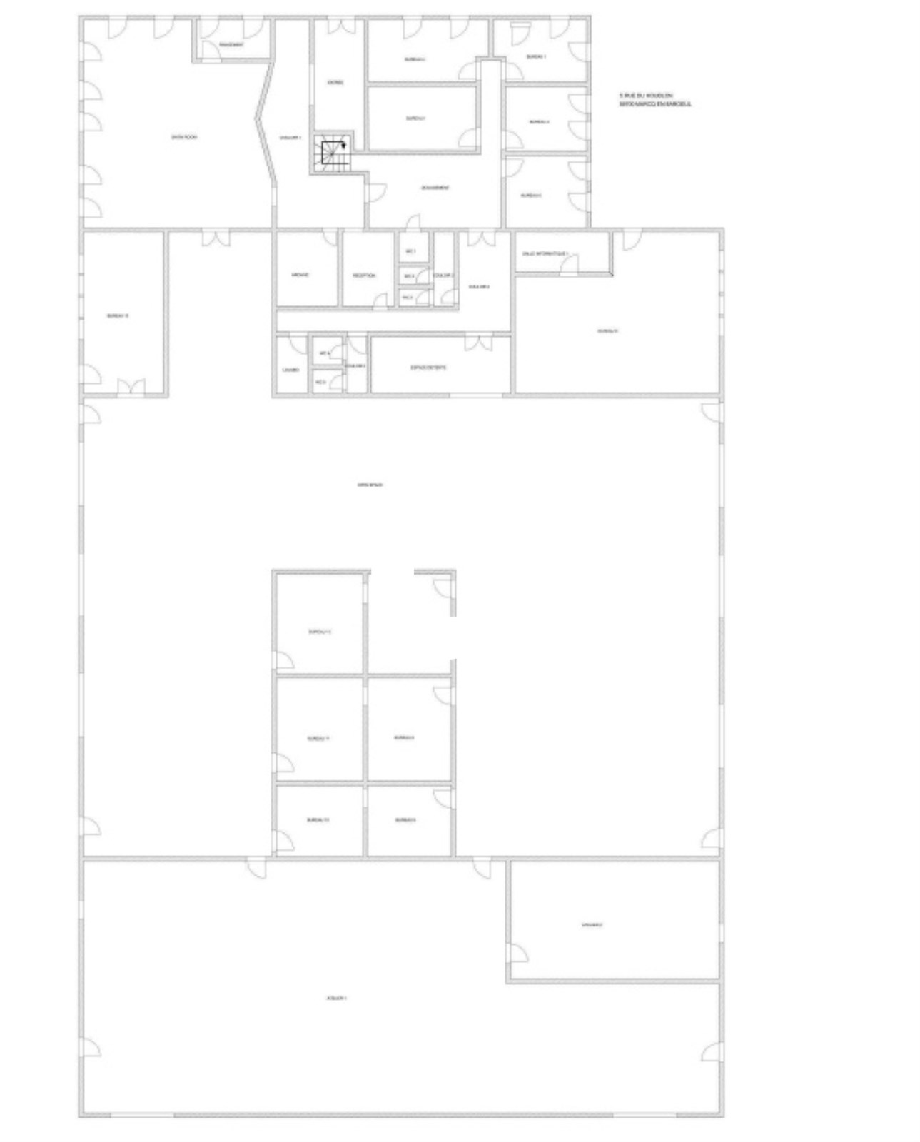
Immprove vous propose un bâtiment de bureaux indépendant d’environ 1.600 m² sur un terrain de 3.066 m² à vendre, idéalement situé dans le secteur de la Pilaterie. Emplacement stratégique, à proximité immédiate de la Voie Rapide Urbaine et des autoroutes A22, A1 et A23. Gare Lille Flandres en 10 min. Les bureaux, d’environ 1.318 m², disposent de 2 portes sectionnelles, ainsi que d’un entrepôt de 360 m² doté d’une 3ème porte sectionnelle. L’ensemble est situé sur un terrain clôturé de 3.066 m². 32 places de parking. Idéal pour implanter votre showroom dans un secteur regroupant de nombreuses entreprises du bâtiment, très prisé pour le B2B. Disponibilité immédiate.
Surface totale
Nature
Divisibilité
Etat des locaux
1 678 m²
Bureaux
Non
Bon état
Prix & Conditions
Vente :
2 000 000.00 € (HD)
1 191.90 € /m² (HD)
Impôt foncier :
10.41
Prestations & équipements du bien
Les espaces de travail
Fibre optique . Accueil
Bureaux cloisonnés
Salle de réunion
Espace détente
Cuisine
Locaux rationnels et modulables
Décloisonnement possible
Plinthes périphériques
Câblage informatique et téléphonique
Le confort au quotidien
Climatisation réversible
Locaux lumineux
Moquette
Les accès
Accès PMR
Portail d'accès
Porte sectionnelle
Sécurité du site
Site clos
Interphone
Accès sécurisé par badge
SAS d'entrée
Visiophone
Prestations spécifiques
Chauffage gaz et électrique
Autres
Sanitaires
Possibilités de normes E.R.P.
Répartition & surfaces des espaces
Tableau des divisibilités
| Type | Étage | Surface | Prix achat (€/m² HT HC) |
Charges (achat) (€/m² HT HC) |
|---|---|---|---|---|
| Bureaux | 1 678 m² | 1 191.90 | Prix sur demande |
Performance énergétique du bien (DPE)


Informations non contractuelles
Localisation & accès
Transports en commun à proximité
Gare Lille Flandres à 10 minutes en voiture
15
Accès routier
A22 à proximité immédiate
[@logo439]
Adresses
approximatives
Adresses
précises
Nos nouveaux biens qui pourraient vous intéresser
Bureaux - 282m²
MARCQ EN BAROEUL (59700)
MARCQ EN BAROEUL (59700)
860 001.30€ HT HC
Disponibilité : Immédiate
Surface : 282 m²
Bureaux - 334m²
MARCQ EN BAROEUL (59700)
MARCQ EN BAROEUL (59700)
815 000.08€ HT HC
Disponibilité : Immédiate
Surface : 334 m²
Bureaux - 111m²
MARCQ EN BAROEUL (59700)
MARCQ EN BAROEUL (59700)
349 983.00€ HT HC
Disponibilité : Immédiate
Surface : 111 m²
Bureaux - 2 834.67m² Divisibles à partir de 371.75 m²
MARCQ EN BAROEUL (59700)
MARCQ EN BAROEUL (59700)
1 078 800.00€ HT HC
Disponibilité : Immédiate
Surface : divisibles à partir de 371.75 m²
Les entrepreneurs ayant consulté cette offre ont aussi consulté celles ci
Bureaux - 1 845m² Divisibles à partir de 285 m²
NANTES (44300)
NANTES (44300)
Prix sur demande
Disponibilité : Immédiate
Surface : divisibles à partir de 285 m²
Bureaux - 3 639m² Divisibles à partir de 578 m²
NOISY LE GRAND (93160)
NOISY LE GRAND (93160)
1 069 300.00€ HT HC
Disponibilité : Immédiate
Surface : divisibles à partir de 578 m²
Bureaux et Activités - 435m²
VILLIERS SUR MARNE (94350)
VILLIERS SUR MARNE (94350)
639 998.10€ HT HC
Disponibilité : Immédiate
Surface : 435 m²