Retour
Disponibilité Immédiate
À Acheter Bureaux 329 m² NANTERRE (92000)
Ajouter au comparateur
Vous souhaitez faciliter votre recherche ?
Créez un compte
Présentation du bien
Au sein d'un immeuble moderne et de bon standing, situé en plein coeur du quartier d'affaires de Champs Pierreux, Immprove vous propose de très beaux bureaux à la vente
Surface totale
Nature
Divisibilité
Etat des locaux
329 m²
Bureaux
Non
Bon état
Prix & Conditions
Vente :
806 050.00 € (HD)
2 450.00 € /m² (HD)
Impôt foncier :
116.36
Taxe bureaux :
21.99
Conditions vente :
Loi Carrez et affectation juridique en cours de détermination
Taxe foncière : 38 282 €/an
Taxe bureaux & stationnement : 45 126 €/an
Taxe foncière : 38 282 €/an
Taxe bureaux & stationnement : 45 126 €/an
Prestations & équipements du bien
Les espaces de travail
Parties communes rénové récemment
Bureaux cloisonnés
Câblage informatique
Le confort au quotidien
Climatisation
Sécurité du site
Accès sécurisé par badge
Accessibilité
Ascenseur PMR
Autres
Accès P.M.R.
Fibre
Sanitaires
Loi Carrez et affectation juridique en cours de détermination
Taxe foncière : 38 282 €/an
Taxe bureaux & stationnement : 45 126 €/an
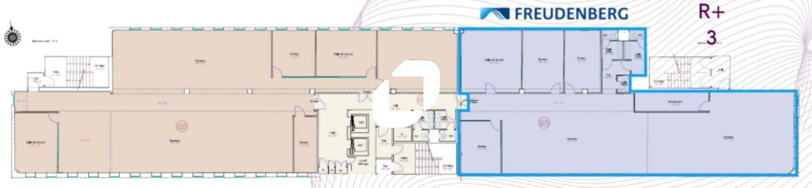
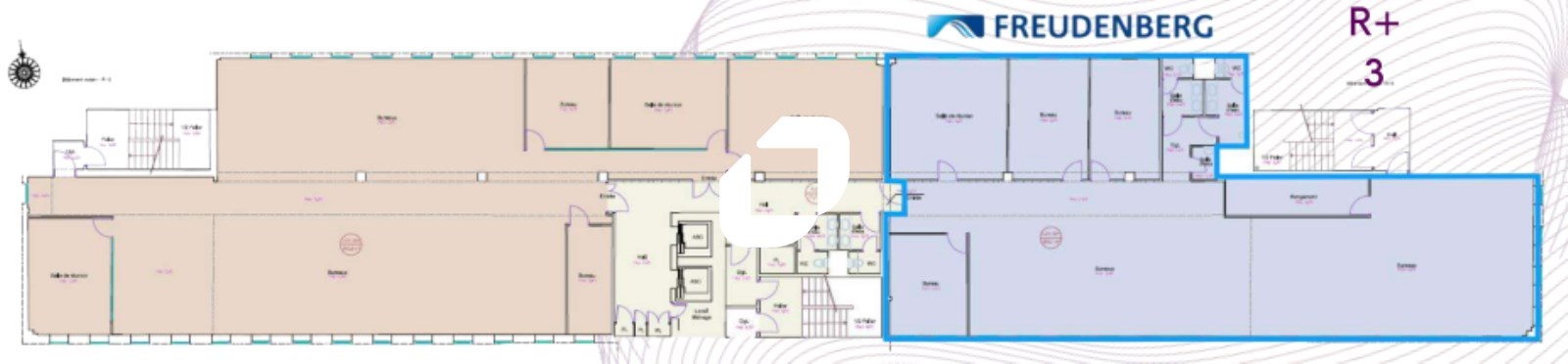
Répartition & surfaces des espaces
Tableau des divisibilités
| Type | Étage | Surface | Prix achat (€/m² HT HC) |
Charges (achat) (€/m² HT HC) |
|---|---|---|---|---|
| Parkings | Sous-Sol | 10 000.00 | Prix sur demande | |
| Bureaux | 3ème étage | 329 m² | 2 450.00 | 10.43 |
Performance énergétique du bien (DPE)


Informations non contractuelles
Localisation & accès
Transports en commun à proximité
Gare de Puteaux (Ligne L et U)
15
157
Accès routier
T 1
Adresses
approximatives
Adresses
précises
Nos nouveaux biens qui pourraient vous intéresser
Les entrepreneurs ayant consulté cette offre ont aussi consulté celles ci
Bureaux et Activités - 1 002m²
SAINT PATHUS (77178)
SAINT PATHUS (77178)
1 549 993.80€ HT HC
Disponibilité : Immédiate
Surface : 1 002 m²
Bureaux - 113.06m² Divisibles à partir de 37.51 m²
TRAPPES (78190)
TRAPPES (78190)
121 600.00€ HT HC
Disponibilité : Immédiate
Surface : divisibles à partir de 37.51 m²
Bureaux - 1 595.20m² Divisibles à partir de 95.10 m²
MONTOIR DE BRETAGNE (44550)
MONTOIR DE BRETAGNE (44550)
0.00€ HT HC
Disponibilité : Juin 2028
Surface : divisibles à partir de 95.10 m²