Retour
Disponibilité 12 mois après SIGNATURE
À Acheter Locaux d'Activités 2 200 m² ZAC DE MONTFRAY FAREINS (01480)
Ajouter au comparateur
Vous souhaitez faciliter votre recherche ?
Créez un compte
Présentation du bien
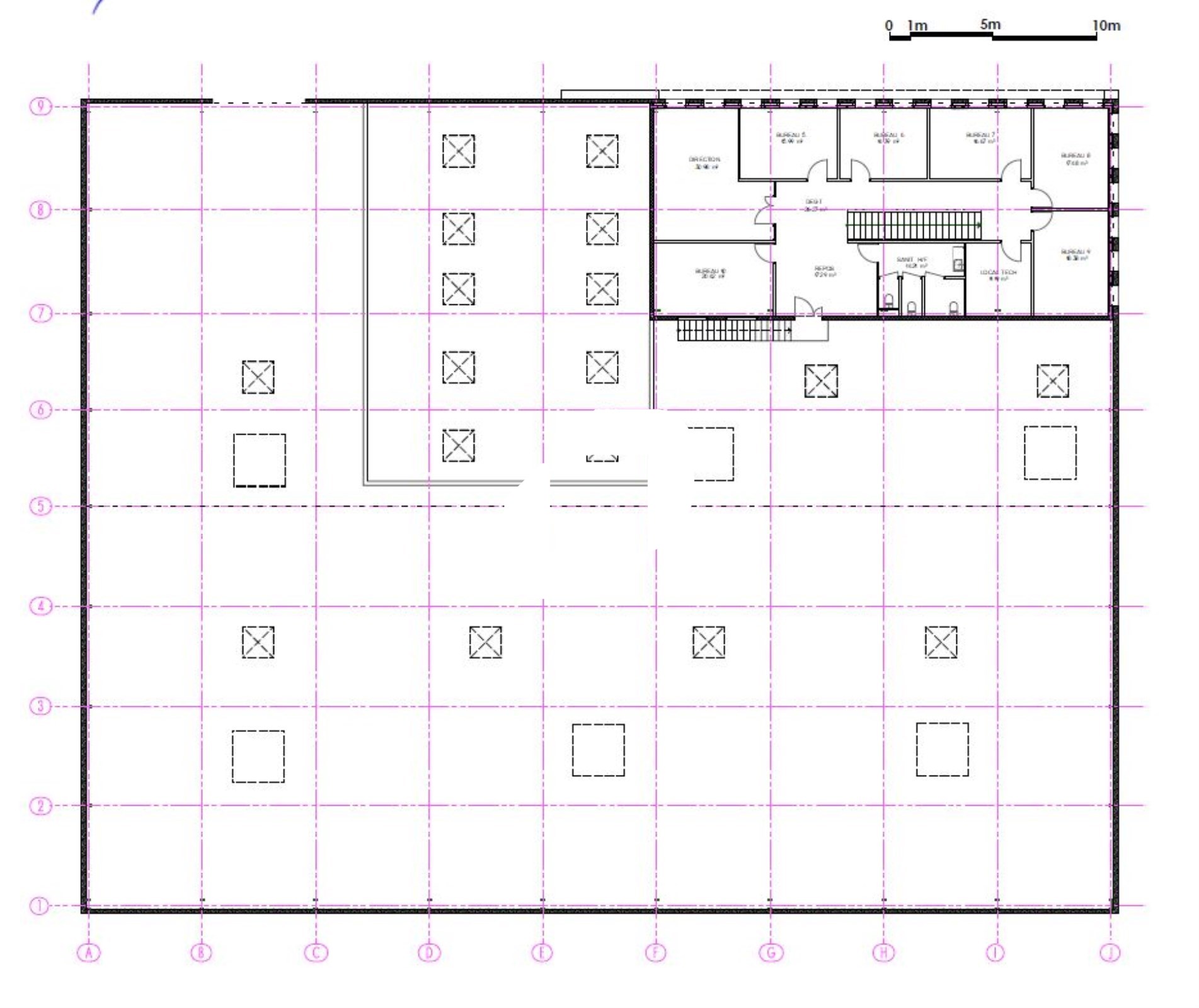
Evolis vous propose à la vente, dans la ZAC Monfray de Fareins, sur un terrain indépendant de 3 945 m², un bâtiment d’activité clé en main de 2 200 m² dont 400 m² de bureaux sur deux niveaux, une portes sectionnelle 3 x 3 mètres et une 4 x 4 mètres ainsi que 15 parkings véhicules.
Surface totale
Nature
Divisibilité
Etat des locaux
2 200 m²
Locaux d'Activités
Non
Bon état
Prix & Conditions
Vente :
Prix sur demande
Prestations & équipements du bien
Les accès
Accès poids lourds
Site clos Portail électrique
Autres
Structure métallique,
Toiture bac acier isolé,
Bardage double peau isolé,
Lanterneaux et panneaux photovoltaïques en
toiture
Hauteur utile : 7 mètres
Dalle béton quartzée
1 portes sectionnelle 4 x 4 m et une 3 x 3 m
Bureaux sur 2 niveaux
Répartition & surfaces des espaces
Tableau des divisibilités
| Type | Étage | Surface | Prix achat (€/m² HT HC) |
Charges (achat) (€/m² HT HC) |
|---|---|---|---|---|
| Activités | 2 200 m² | Prix sur demande | Prix sur demande |
Performance énergétique du bien (DPE)


Informations non contractuelles
Localisation & accès
Transports en commun à proximité
Gare TER de Villefranche à 10 min (liaison gare Part-Dieu)
Accès routier
A6, sortie Villefranche Sud à 7.5kms ( 14mn)
Adresses
approximatives
Adresses
précises
Nos nouveaux biens qui pourraient vous intéresser
Locaux d'Activités - 201.60m²
REIMS (51100)
REIMS (51100)
50 904 000.00€ HT HC
Disponibilité : Immédiate
Surface : 201.60 m²
Locaux d'Activités - 743m²
CESTAS (33610)
CESTAS (33610)
870 000.99€ HT HC
Disponibilité : Immédiate
Surface : 743 m²
Locaux d'Activités - 3 659m²
AIZENAY (85190)
AIZENAY (85190)
3 191 928.65€ HT HC
Disponibilité : Immédiate
Surface : 3 659 m²
Locaux d'Activités - 4 000m²
SAINT PATHUS (77178)
SAINT PATHUS (77178)
3 375 000.00€ HT HC
Disponibilité : Immédiate
Surface : 4 000 m²
Les entrepreneurs ayant consulté cette offre ont aussi consulté celles ci
Locaux d'Activités - 201.60m²
REIMS (51100)
REIMS (51100)
50 904 000.00€ HT HC
Disponibilité : Immédiate
Surface : 201.60 m²
Locaux d'Activités - 1 794m²
SAINT PRIEST (69800)
SAINT PRIEST (69800)
Prix sur demande
Disponibilité : Octobre 2027
Surface : 1 794 m²
Locaux d'Activités - 1 980m²
FLEURIEUX SUR L'ARBRESLE (69210)
FLEURIEUX SUR L'ARBRESLE (69210)
Prix sur demande
Disponibilité : Immédiate
Surface : 1 980 m²
Locaux d'Activités - 743m²
CESTAS (33610)
CESTAS (33610)
870 000.99€ HT HC
Disponibilité : Immédiate
Surface : 743 m²