Retour
Disponibilité 1er trimestre 2026
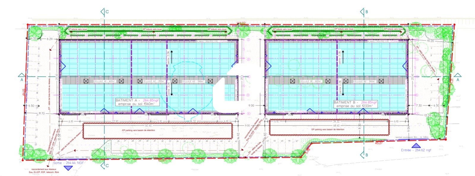
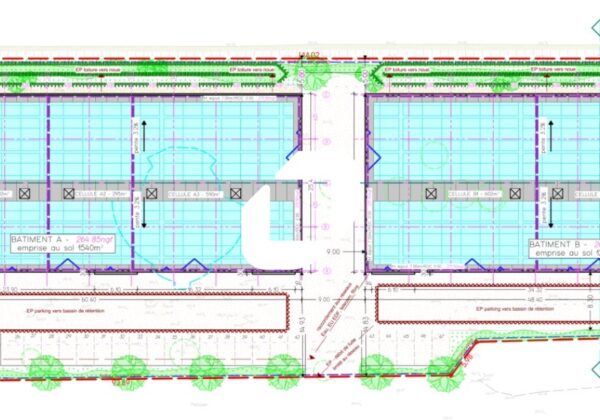
À Acheter ou à Louer Locaux d'Activités 1 466 m² divisibles à partir de 714 m² PERONNAS (01960)
Ajouter au comparateur
Vous souhaitez faciliter votre recherche ?
Créez un compte
Présentation du bien
Situé stratégiquement entre Bourg-en-Bresse et la sortie n°7 de l'A40, à Bourg Sud, avec une visibilité exceptionnelle sur la RN75, IMMPROVE vous présente une opportunité rare d'acquisition ou de location d'un parc d'activités neuf.
Surface totale
Nature
Divisibilité
Etat des locaux
1 466 m²
Locaux d'Activités
Oui à partir de 714 m²
Neuf
Prix & Conditions
Loyer :
90 € /m²/an (HT/HC)
5 355 € /mois (HT/HC)
64 260 € /an (HT/HC)
Divisibles à partir de 714 m²
Vente :
1 035 000 € (HD)
706.00 € /m² (HD)
Divisibles à partir de 714 m²
Dépôt de garantie :
3 mois de loyer HT HC
Conditions vente :
Les parkings sont inclus dans le prix de vente
Prestations & équipements du bien
Les accès
Proximité autoroute et accès poids lourds . Hauteur libre : 6 mètres
Autres
Disponibilité 2e semestre 2024
Stationnement pré-équipé IRVE
Toiture préconçue centrale photovoltaïque
Portes vitrées pour l’accès piéton
Livraison : locaux bruts / fluides en attente
Les parkings sont inclus dans le prix de vente
Répartition & surfaces des espaces
Tableau des divisibilités
| Type | Étage | Surface | Loyer (€/m²/an HT HC) |
Charges (€/m²/an HT HC) |
Prix achat (€/m² HT HC) |
Charges (achat) (€/m² HT HC) |
|---|---|---|---|---|---|---|
| Activités | 752 m² | 90.00 | Prix sur demande | 1 376.33 | Prix sur demande | |
| Activités | 714 m² | 90.00 | Prix sur demande | 1 337.54 | Prix sur demande |
Performance énergétique du bien (DPE)


Informations non contractuelles
Localisation & accès
Accès routier
N°7 Bourg-Sud à 5 min
Adresses
approximatives
Adresses
précises
Nos nouveaux biens qui pourraient vous intéresser
Locaux d'Activités - 1 794m²
SAINT PRIEST (69800)
SAINT PRIEST (69800)
Prix sur demande
Disponibilité : Octobre 2027
Surface : 1 794 m²
Locaux d'Activités - 1 980m²
FLEURIEUX SUR L'ARBRESLE (69210)
FLEURIEUX SUR L'ARBRESLE (69210)
Prix sur demande
Disponibilité : Immédiate
Surface : 1 980 m²
Locaux d'Activités - 507.70m²
SCHWEIGHOUSE SUR MODER (67590)
SCHWEIGHOUSE SUR MODER (67590)
Prix sur demande
Disponibilité : Immédiate
Surface : 507.70 m²
Locaux d'Activités - 253.85m²
SCHWEIGHOUSE SUR MODER (67590)
SCHWEIGHOUSE SUR MODER (67590)
Prix sur demande
Disponibilité : Immédiate
Surface : 253.85 m²
Les entrepreneurs ayant consulté cette offre ont aussi consulté celles ci
Locaux d'Activités - 1 794m²
SAINT PRIEST (69800)
SAINT PRIEST (69800)
Prix sur demande
Disponibilité : Octobre 2027
Surface : 1 794 m²
Locaux d'Activités - 1 980m²
FLEURIEUX SUR L'ARBRESLE (69210)
FLEURIEUX SUR L'ARBRESLE (69210)
Prix sur demande
Disponibilité : Immédiate
Surface : 1 980 m²
Locaux d'Activités - 507.70m²
SCHWEIGHOUSE SUR MODER (67590)
SCHWEIGHOUSE SUR MODER (67590)
Prix sur demande
Disponibilité : Immédiate
Surface : 507.70 m²
Locaux d'Activités - 253.85m²
SCHWEIGHOUSE SUR MODER (67590)
SCHWEIGHOUSE SUR MODER (67590)
Prix sur demande
Disponibilité : Immédiate
Surface : 253.85 m²