Retour
Disponibilité Selon les lots – nous consulter
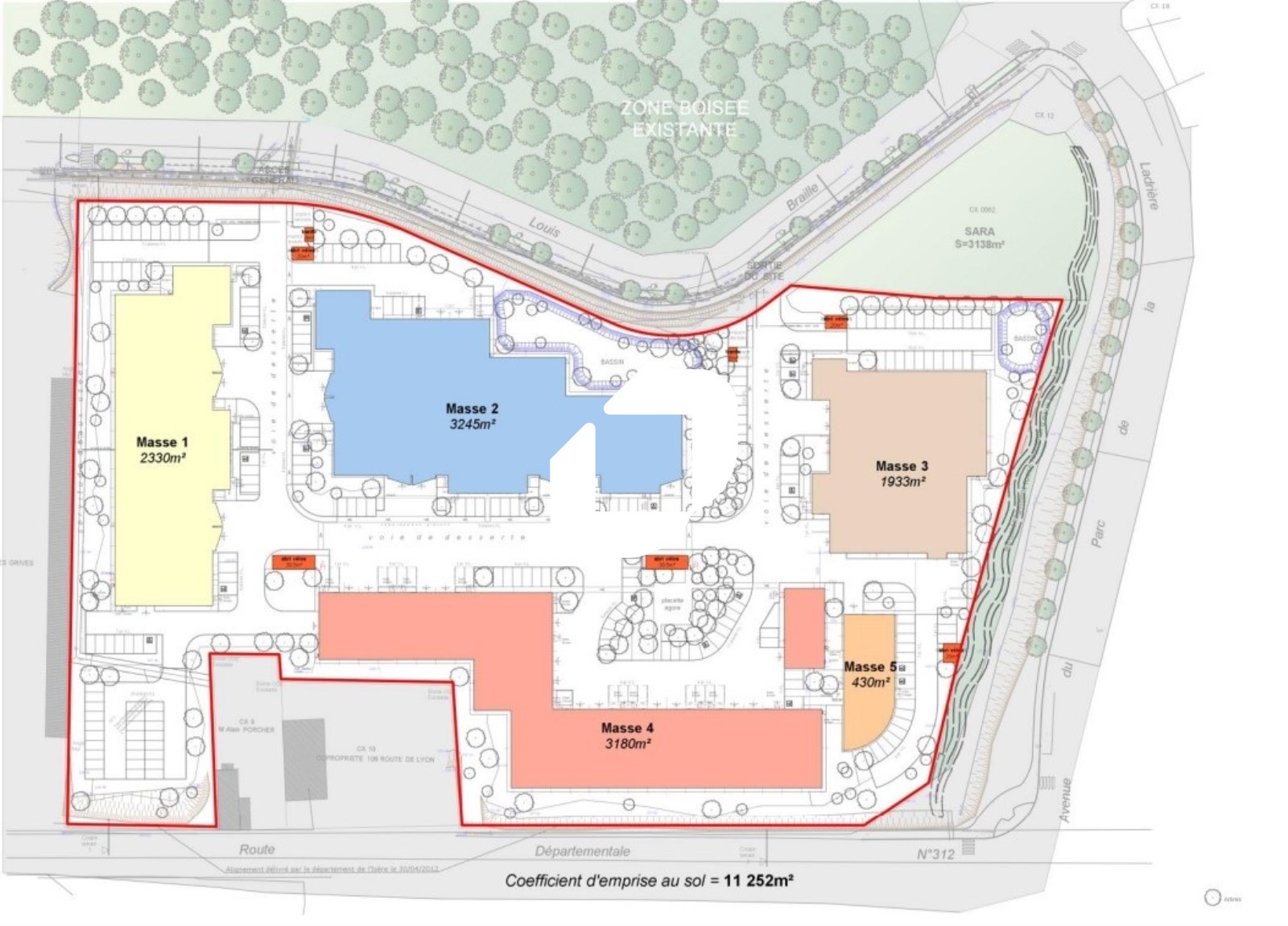
À Acheter Locaux d'Activités 6 302.69 m² divisibles à partir de 187.50 m² PARC DES OLIVIERS RUE LOUIS BRAILLE / ROUTE DE LYON BOURGOIN JALLIEU (38300)
Ajouter au comparateur
Vous souhaitez faciliter votre recherche ?
Créez un compte
Présentation du bien
IMMPROVE commercialise des locaux d'activités neufs et modulables au sein d'un nouveau parc artisanal/industriel à Bourgoin-Jallieu (38). Opportunité : 6 302 m² divisibles à partir de 188 m². Idéal PME/PMI et Artisanat.
Prestations : Charpente métallique, isolation haute performance (bac acier), lumière zénithale.
Surface totale
Nature
Divisibilité
Etat des locaux
6 302.69 m²
Locaux d'Activités
Oui à partir de 187.50 m²
Neuf
Prix & Conditions
Vente :
1 308.31 € (HD)
1 308.31 € /m² (HD)
Divisibles à partir de 187.50 m²
Prestations & équipements du bien
Les accès
Parc clos, portail d’accès programmé avec code ou badge en dehors des horaires d’ouverture . 191 places de parking V.L (1 place pour 70 m²)
Prestations spécifiques
Hauteur libre : 7m, sauf Masse 4 : 6m (sauf lot 4N : 6.70m)
Charge au sol activité : 3t/m²
Electricité : Possibilité de tarif jaune sur les lots de plus de 300 m²
Autres
Portes sectionnelles : 3 x 3,5 m ou 4 x 4,5m selon les lots
Bureaux bruts avec possibilité d’aménagement en option
Répartition & surfaces des espaces
Tableau des divisibilités
| Type | Étage | Surface | Prix achat (€/m² HT HC) |
Charges (achat) (€/m² HT HC) |
|---|---|---|---|---|
| Activités | 625 m² | 1 507.70 | Prix sur demande | |
| Activités | 217 m² | 1 507.87 | Prix sur demande | |
| Activités | 222 m² | 1 505.14 | Prix sur demande | |
| Activités | 217 m² | 1 524.65 | Prix sur demande | |
| Activités | 219 m² | 1 523.82 | Prix sur demande | |
| Activités | 503 m² | 1 473.05 | Prix sur demande | |
| Activités | 704 m² | 1 431.93 | Prix sur demande | |
| Activités | 504 m² | 1 472.28 | Prix sur demande | |
| Activités | 266 m² | 1 511.57 | Prix sur demande | |
| Activités | 188 m² | 1 514.00 | Prix sur demande | |
| Activités | 188 m² | 1 514.00 | Prix sur demande | |
| Activités | 189 m² | 1 517.56 | Prix sur demande | |
| Activités | 218 m² | 1 505.17 | Prix sur demande | |
| Activités | 218 m² | 1 505.08 | Prix sur demande | |
| Activités | 481 m² | 1 308.31 | Prix sur demande | |
| Activités | 214 m² | 1 524.94 | Prix sur demande | |
| Activités | 220 m² | 1 522.63 | Prix sur demande | |
| Activités | 220 m² | 1 522.63 | Prix sur demande | |
| Activités | 214 m² | 1 524.94 | Prix sur demande | |
| Activités | 479 m² | 1 419.53 | Prix sur demande |
Performance énergétique du bien (DPE)


Informations non contractuelles
Localisation & accès
Transports en commun à proximité
ligne M : Bourgoin Gare – Triforum l’Isle d’Abeau à 200 m
Accès routier
A proximité immédiate de la départementale D1006 et de l'autroute A43
Adresses
approximatives
Adresses
précises
Nos nouveaux biens qui pourraient vous intéresser
Locaux d'Activités - 201.60m²
REIMS (51100)
REIMS (51100)
50 904 000.00€ HT HC
Disponibilité : Immédiate
Surface : 201.60 m²
Locaux d'Activités - 743m²
CESTAS (33610)
CESTAS (33610)
870 000.99€ HT HC
Disponibilité : Immédiate
Surface : 743 m²
Locaux d'Activités - 3 659m²
AIZENAY (85190)
AIZENAY (85190)
3 191 928.65€ HT HC
Disponibilité : Immédiate
Surface : 3 659 m²
Locaux d'Activités - 4 000m²
SAINT PATHUS (77178)
SAINT PATHUS (77178)
3 375 000.00€ HT HC
Disponibilité : Immédiate
Surface : 4 000 m²
Les entrepreneurs ayant consulté cette offre ont aussi consulté celles ci
Locaux d'Activités - 201.60m²
REIMS (51100)
REIMS (51100)
50 904 000.00€ HT HC
Disponibilité : Immédiate
Surface : 201.60 m²
Locaux d'Activités - 1 794m²
SAINT PRIEST (69800)
SAINT PRIEST (69800)
Prix sur demande
Disponibilité : Octobre 2027
Surface : 1 794 m²
Locaux d'Activités - 1 980m²
FLEURIEUX SUR L'ARBRESLE (69210)
FLEURIEUX SUR L'ARBRESLE (69210)
Prix sur demande
Disponibilité : Immédiate
Surface : 1 980 m²
Locaux d'Activités - 743m²
CESTAS (33610)
CESTAS (33610)
870 000.99€ HT HC
Disponibilité : Immédiate
Surface : 743 m²