Retour
Disponibilité Nous consulter
À Acheter Locaux d'Activités 1 750 m² divisibles à partir de 250 m² RUE NEUVE LABOISSIERE EN THELLE (60570)
Ajouter au comparateur
Vous souhaitez faciliter votre recherche ?
Créez un compte
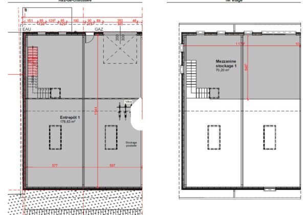
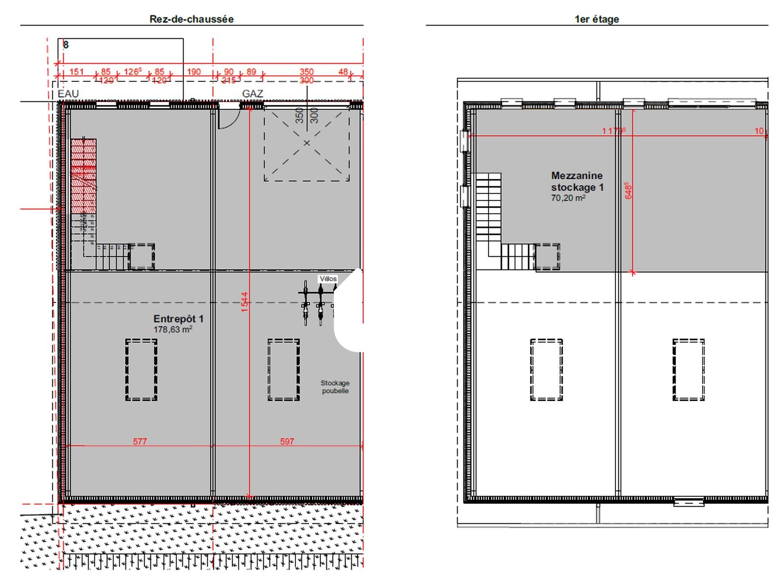
Présentation du bien
VENTE EN VEFA.
IMMPROVE sous propose plusieurs cellules d'activités neuves de 250 m² chacune, à la vente à Laboissière en Thelle, Idéalement situé, ces espaces offrent une grande flexibilité d'aménagement, une accessibilité optimale et un potentiel de développement exceptionnel pour votre entreprise.
Surface totale
Nature
Divisibilité
Etat des locaux
1 750 m²
Locaux d'Activités
Oui à partir de 250 m²
Neuf
Prix & Conditions
Vente :
1 383.75 € (HD)
1 383.75 € /m² (HD)
Divisibles à partir de 250 m²
Conditions vente :
Loi Carrez et affectation juridique en cours de détermination
Prestations & équipements du bien
Les espaces de travail
Dallage en béton quartz . Locaux neufs en VEFA
Les accès
Accès poids lourds
Extérieur
Places de parking privatives
Autres
Ossature charpente
Bardage métallique
Claire voie en bois naturel
Environnement Paysager
Bâtiment basse consommation énergétique
Flexibilité d’aménagement
Espace de stockage lumineux
Fonctionnels et polyvalents
Très grande hauteur sous plafond
Hauteur sous plafond : 6 m
Loi Carrez et affectation juridique en cours de détermination
Répartition & surfaces des espaces
Tableau des divisibilités
| Type | Étage | Surface | Prix achat (€/m² HT HC) |
Charges (achat) (€/m² HT HC) |
|---|---|---|---|---|
| Activités | 250 m² | 1 383.75 | Prix sur demande | |
| Activités | 250 m² | 1 383.75 | Prix sur demande | |
| Activités | 250 m² | 1 383.75 | Prix sur demande | |
| Activités | 250 m² | 1 383.75 | Prix sur demande | |
| Activités | 250 m² | 1 383.75 | Prix sur demande | |
| Activités | 250 m² | 1 383.75 | Prix sur demande | |
| Activités | 250 m² | 1 383.75 | Prix sur demande |
Performance énergétique du bien (DPE)


Informations non contractuelles
Localisation & accès
Transports en commun à proximité
TER - Gare Laboissière - Le Déluge
Accès routier
A proximité de l’autoroute A16
D46
Beauvais en 25 min
Roissy en 30 min
Cergy Pontoise en 35 min
Amiens en 1 h
Adresses
approximatives
Adresses
précises
Nos nouveaux biens qui pourraient vous intéresser
Locaux d'Activités - 201.60m²
REIMS (51100)
REIMS (51100)
50 904 000.00€ HT HC
Disponibilité : Immédiate
Surface : 201.60 m²
Locaux d'Activités - 743m²
CESTAS (33610)
CESTAS (33610)
870 000.99€ HT HC
Disponibilité : Immédiate
Surface : 743 m²
Locaux d'Activités - 3 659m²
AIZENAY (85190)
AIZENAY (85190)
3 191 928.65€ HT HC
Disponibilité : Immédiate
Surface : 3 659 m²
Locaux d'Activités - 4 000m²
SAINT PATHUS (77178)
SAINT PATHUS (77178)
3 375 000.00€ HT HC
Disponibilité : Immédiate
Surface : 4 000 m²
Les entrepreneurs ayant consulté cette offre ont aussi consulté celles ci
Locaux d'Activités - 201.60m²
REIMS (51100)
REIMS (51100)
50 904 000.00€ HT HC
Disponibilité : Immédiate
Surface : 201.60 m²
Locaux d'Activités - 1 794m²
SAINT PRIEST (69800)
SAINT PRIEST (69800)
Prix sur demande
Disponibilité : Octobre 2027
Surface : 1 794 m²
Locaux d'Activités - 1 980m²
FLEURIEUX SUR L'ARBRESLE (69210)
FLEURIEUX SUR L'ARBRESLE (69210)
Prix sur demande
Disponibilité : Immédiate
Surface : 1 980 m²
Locaux d'Activités - 743m²
CESTAS (33610)
CESTAS (33610)
870 000.99€ HT HC
Disponibilité : Immédiate
Surface : 743 m²