Retour
Disponibilité Immédiate
À Acheter Locaux d'Activités 552 m² 4 RUE AMPERE GEISPOLSHEIM (67118)
Ajouter au comparateur
Vous souhaitez faciliter votre recherche ?
Créez un compte
Présentation du bien
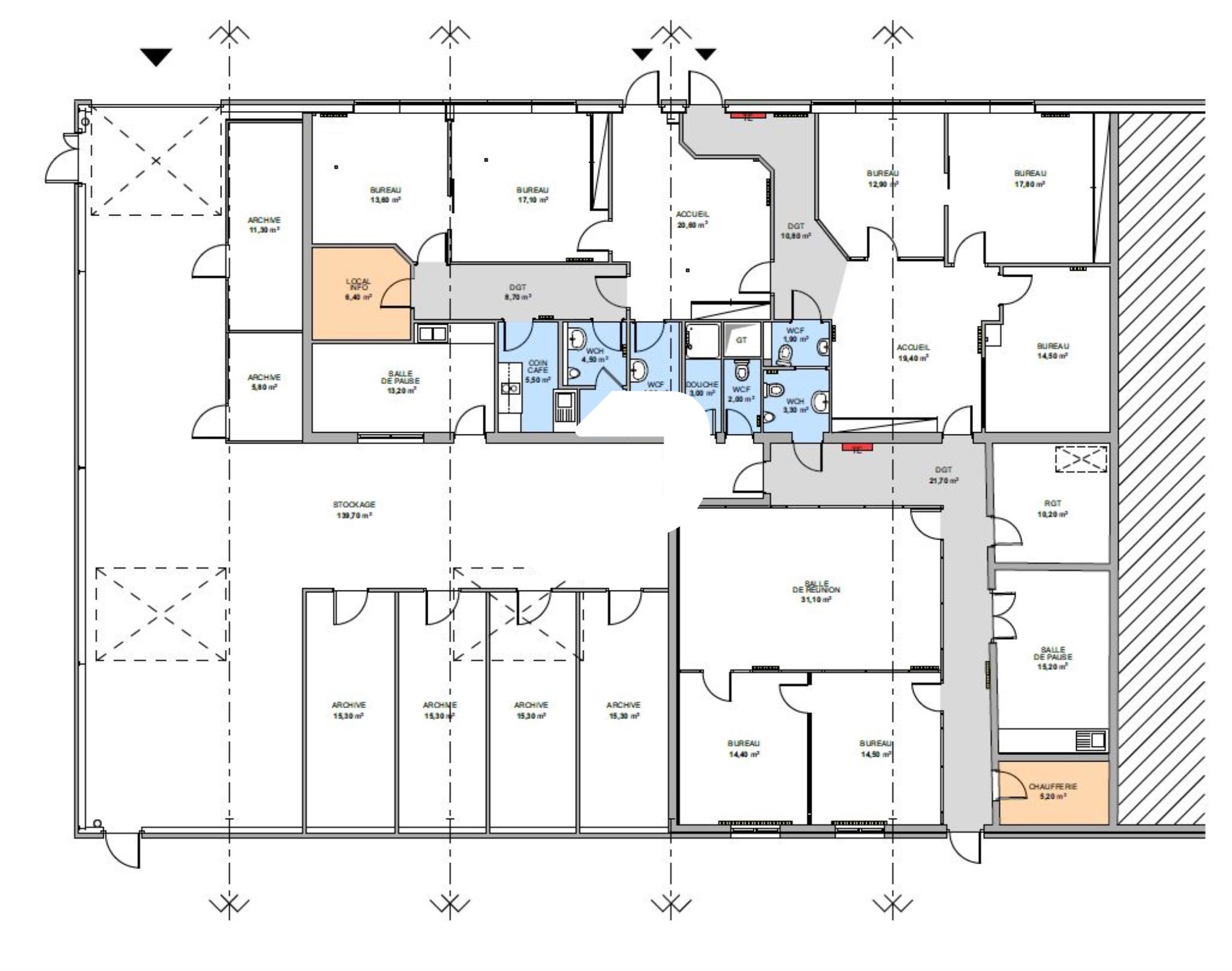
IMMPROVE vous propose à la vente 550 m² de locaux d’activité accompagnés de bureaux situés le long de la route de Lingolsheim, ZI FORLEN, à Geispolsheim. Ce lot dispose de 2 entrées distinctes permettant de diviser le lots pour implanter son activité dans une partie et faire de l'investissement locatif sur la seconde. Les bureaux sont cloisonnés et climatisés et le hall est accessible par une porte sectionnelle de plain-pied. 14 places de parking privatives complètent l'offre.
Surface totale
Nature
Divisibilité
Etat des locaux
552 m²
Locaux d'Activités
Non
Bon état
Prix & Conditions
Vente :
699 000.00 € (HD)
1 266.30 € /m² (HD)
Impôt foncier :
5520.00
Conditions vente :
Surfaces carrez 519 m²
Prestations & équipements du bien
Les espaces de travail
14 emplacements de parking . 7 bureaux cloisonnés
1 grande salle de réunion
2 espaces cuisine dont un avec réfectoire
Le confort au quotidien
Climatisation partielle
Sol bureaux : Moquette et parquet
Les accès
Aire de manœuvre
Prestations spécifiques
Hauteur libre 4 m
Chauffage au gaz
Autres
Ossature métallique
Toiture bac acier isolé
Murs bardage double peau
Sol béton
1 porte électrique accès plain-pied
Éclairage intérieur : Néon
1 réfectoire et 1 douche
Faux plafond
Fenêtres : double vitrage et stores
4 sanitaires
Surfaces carrez 519 m²
Répartition & surfaces des espaces
Tableau des divisibilités
| Type | Étage | Surface | Prix achat (€/m² HT HC) |
Charges (achat) (€/m² HT HC) |
|---|---|---|---|---|
| Activités | 552 m² | 1 266.30 | Prix sur demande |
Performance énergétique du bien (DPE)


Informations non contractuelles
Localisation & accès
Transports en commun à proximité
64
350
Accès routier
A35 sortie Geispolsheim 1km
Adresses
approximatives
Adresses
précises
Nos nouveaux biens qui pourraient vous intéresser
Locaux d'Activités - 740m²
GEISPOLSHEIM (67118)
GEISPOLSHEIM (67118)
840 003.60€ HT HC
Disponibilité : Immédiate
Surface : 740 m²
Les entrepreneurs ayant consulté cette offre ont aussi consulté celles ci
Locaux d'Activités - 201.60m²
REIMS (51100)
REIMS (51100)
50 904 000.00€ HT HC
Disponibilité : Immédiate
Surface : 201.60 m²
Locaux d'Activités - 1 794m²
SAINT PRIEST (69800)
SAINT PRIEST (69800)
Prix sur demande
Disponibilité : Octobre 2027
Surface : 1 794 m²
Locaux d'Activités - 1 980m²
FLEURIEUX SUR L'ARBRESLE (69210)
FLEURIEUX SUR L'ARBRESLE (69210)
Prix sur demande
Disponibilité : Immédiate
Surface : 1 980 m²
Locaux d'Activités - 743m²
CESTAS (33610)
CESTAS (33610)
870 000.99€ HT HC
Disponibilité : Immédiate
Surface : 743 m²