Retour
Disponibilité Immédiate
À Acheter Locaux d'Activités 436.10 m² 4 RUE DE L ATOME BISCHHEIM (67800)
Ajouter au comparateur
Vous souhaitez faciliter votre recherche ?
Créez un compte
Présentation du bien
IMMPROVE vous propose à la vente une cellule d’activités dans la zone d’activité de Bischheim / Hœnheim. Le lot est disponible à la vente. Les bureaux, en très bon état, sont équipés de la climatisation. Il dispose de places de stationnement.
Surface totale
Nature
Divisibilité
Etat des locaux
436.10 m²
Locaux d'Activités
Non
Bon état
Prix & Conditions
Vente :
410 000.00 € (HD)
940.15 € /m² (HD)
Conditions vente :
Loi Carrez et affectation juridique en cours de détermination
Prestations & équipements du bien
Les espaces de travail
2 bureaux cloisonnés
1 open space
Le confort au quotidien
Climatisation réversible
Sol pvc
Prestations spécifiques
Hauteur libre : 6 m environ
Autres
Ossature béton
Toiture bac acier isolé
Murs bardage double peau
Sol béton
2 portes sectionnelles et 1 porte arrière
DEPOT
1 espace extérieur
2 ponts roulants de 3.2 tonnes chacun
3 portes sectionnelles
2 portes piéton
1 bureau modulaire
1 sanitaire et vestiaire
BUREAUX RDC
1 réserve et 1 local serveur
1 sanitaire
Loi Carrez et affectation juridique en cours de détermination
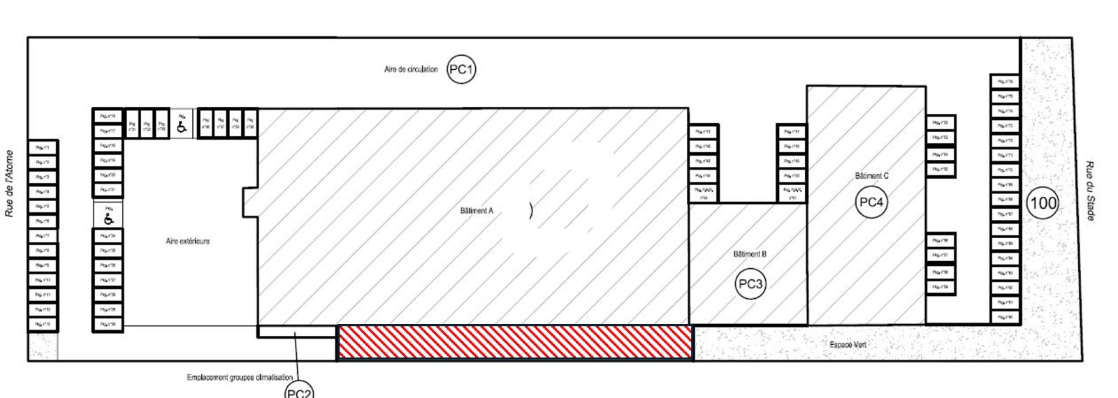
Répartition & surfaces des espaces
Tableau des divisibilités
| Type | Étage | Surface | Prix achat (€/m² HT HC) |
Charges (achat) (€/m² HT HC) |
|---|---|---|---|---|
| Activités | Rez-de-Chaussée | 436 m² | 940.15 | Prix sur demande |
Performance énergétique du bien (DPE)


Informations non contractuelles
Localisation & accès
Transports en commun à proximité
Ligne C3
Accès routier
A4 - Sortie 49.1 Hœnheim
Ligne B
Adresses
approximatives
Adresses
précises
Nos nouveaux biens qui pourraient vous intéresser
Locaux d'Activités - 967.10m² Divisibles à partir de 101.70 m²
BISCHHEIM (67800)
BISCHHEIM (67800)
799 631.95€ HT HC
Disponibilité : Immédiate
Surface : divisibles à partir de 101.70 m²
Les entrepreneurs ayant consulté cette offre ont aussi consulté celles ci
Locaux d'Activités - 201.60m²
REIMS (51100)
REIMS (51100)
50 904 000.00€ HT HC
Disponibilité : Immédiate
Surface : 201.60 m²
Locaux d'Activités - 1 794m²
SAINT PRIEST (69800)
SAINT PRIEST (69800)
Prix sur demande
Disponibilité : Octobre 2027
Surface : 1 794 m²
Locaux d'Activités - 1 980m²
FLEURIEUX SUR L'ARBRESLE (69210)
FLEURIEUX SUR L'ARBRESLE (69210)
Prix sur demande
Disponibilité : Immédiate
Surface : 1 980 m²
Locaux d'Activités - 743m²
CESTAS (33610)
CESTAS (33610)
870 000.99€ HT HC
Disponibilité : Immédiate
Surface : 743 m²