Retour
Disponibilité Immédiate
À Acheter Locaux d'Activités 940 m² 23 ROUTE DE LA WANTZENAU HOENHEIM (67800)
Ajouter au comparateur
Vous souhaitez faciliter votre recherche ?
Créez un compte
Présentation du bien
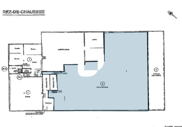
IMMPROVE vous propose à la vente des locaux d'activités et de stockage dans la zone d'activité de Bischheim / Hoenheim d'une superficie totale de presque 1 000 m² environ accompagnés de ses bureaux. Le lot en question dispose également de 10 emplacement de parking.
Un lot mitoyen de 170 m² environ peut compléter les surfaces pour atteindre près de 1200 m² si besoin, à des conditions à déterminer.
Surface totale
Nature
Divisibilité
Etat des locaux
940 m²
Locaux d'Activités
Non
Bon état
Prix & Conditions
Vente :
887 000.00 € (HD)
943.62 € /m² (HD)
Impôt foncier :
6500.00
Prestations & équipements du bien
Les accès
1 porte sectionnelle de plain pied électrique
Prestations spécifiques
Chauffage par aérothermes au gaz + ventilation
Chauffage électrique
Autres
Ossature métallique
Toiture bac acier isolée
Murs bardage double peaux
Sol béton quartz
Hauteur : 5 mètres environ . Trappes de désenfumage
Eclairage néons
Réseau d’air comprimé
Prises triphasées
Boitiers canalis
Bureaux en R+1 en structure bois
Sanitaires / vestiaires
2 petites mezzanines
Répartition & surfaces des espaces
Tableau des divisibilités
| Type | Étage | Surface | Prix achat (€/m² HT HC) |
Charges (achat) (€/m² HT HC) |
|---|---|---|---|---|
| Activités | 940 m² | 943.62 | Prix sur demande |
Performance énergétique du bien (DPE)


Informations non contractuelles
Localisation & accès
Transports en commun à proximité
Ligne C3
Accès routier
A4 - Sortie 50 Hœnheim
Ligne B
Adresses
approximatives
Adresses
précises
Nos nouveaux biens qui pourraient vous intéresser
Locaux d'Activités - 201.60m²
REIMS (51100)
REIMS (51100)
50 904 000.00€ HT HC
Disponibilité : Immédiate
Surface : 201.60 m²
Locaux d'Activités - 743m²
CESTAS (33610)
CESTAS (33610)
870 000.99€ HT HC
Disponibilité : Immédiate
Surface : 743 m²
Locaux d'Activités - 3 659m²
AIZENAY (85190)
AIZENAY (85190)
3 191 928.65€ HT HC
Disponibilité : Immédiate
Surface : 3 659 m²
Locaux d'Activités - 4 000m²
SAINT PATHUS (77178)
SAINT PATHUS (77178)
3 375 000.00€ HT HC
Disponibilité : Immédiate
Surface : 4 000 m²
Les entrepreneurs ayant consulté cette offre ont aussi consulté celles ci
Locaux d'Activités - 201.60m²
REIMS (51100)
REIMS (51100)
50 904 000.00€ HT HC
Disponibilité : Immédiate
Surface : 201.60 m²
Locaux d'Activités - 1 794m²
SAINT PRIEST (69800)
SAINT PRIEST (69800)
Prix sur demande
Disponibilité : Octobre 2027
Surface : 1 794 m²
Locaux d'Activités - 1 980m²
FLEURIEUX SUR L'ARBRESLE (69210)
FLEURIEUX SUR L'ARBRESLE (69210)
Prix sur demande
Disponibilité : Immédiate
Surface : 1 980 m²
Locaux d'Activités - 743m²
CESTAS (33610)
CESTAS (33610)
870 000.99€ HT HC
Disponibilité : Immédiate
Surface : 743 m²